Preferiti

Sponsorizza

Stampa

Ufficio in vendita nuovo a Massarosa - quiesa

  • 115.000€
  • zona quiesa
  • 86 mq
  • Vendesi

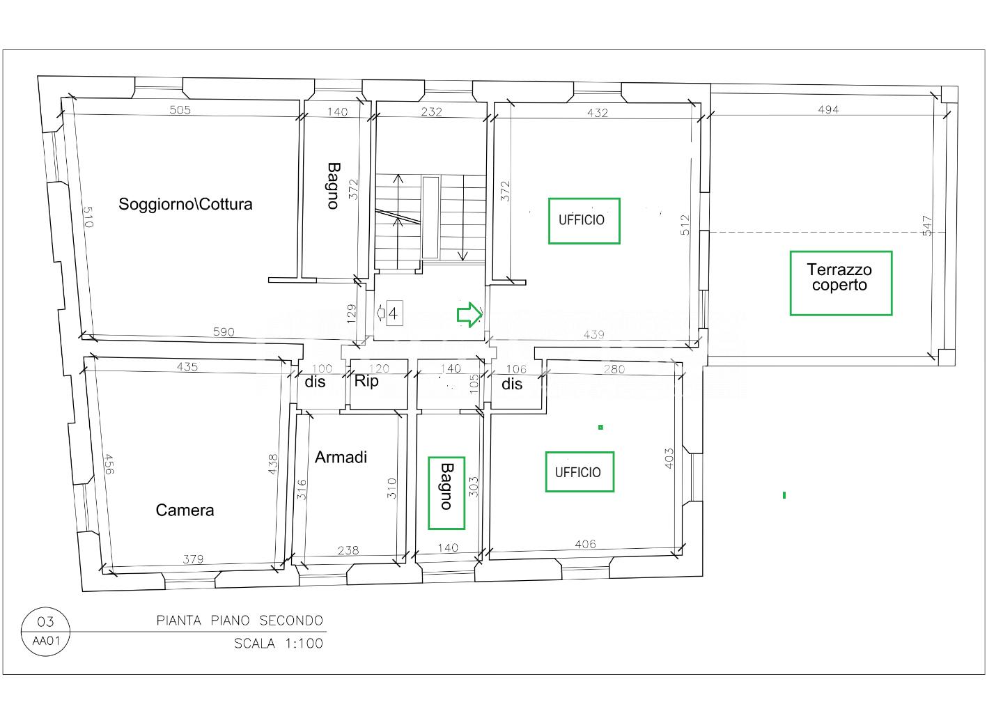
***.*******.** N233K - N233K - SEI ALLA RICERCA DEL TUO UFFICIO O VUOI FARE UN INVESTIMENTO ? COMUNE DI MASSAROSA ( Lucca) nel cuore della frazione di Quiesa, dove a due passi hai mezzi e negozi di prima necessità Ti propongo al piano secondo ed ultimo di palazzina anni 30 interamente ed esternamente ristrutturata e di pochissime unità immobiliari un ufficio di mq commerciale 56 corredato da bellissima ed esclusiva terrazza coperta di mq .30. Si accede allo stesso dalla doppia loggia condominiale, curatissima, è composto da due vani, e servizio igienico con doccia finestrato.
Gli ambienti, dalla tripla esposizione (nord/sud/est) sono luminosi Possibilità di posto auto esclusivo (il cui prezzo è di Euro 8.000) collocato sul lato sud nel fabbricato al quale si acese tramite sbarra elettrica Lufficio è dotato di split caldo/freddo in entrambi gli ambienti FINITURE: Portoncino dingresso blindato, infissi con doppi vetri pavimento in gres effetto legno, persiane in alluminio.
Edificio in classe energetica A/1 KhW/mq annuo 20, 25. La disponibilità è immediata Si precisa che il prezzo indicato NON comprende il posto auto ( da considerarsi a parte) Contatta l'inserzionista

LuccaCase Agenzia ImmobiliareLuccaCase Agenzia Immobiliare
Viale Europa, 474
, Lucca (Lucca)
Visualizza Telefono

INFORMAZIONI SULL'IMMOBILE

  • Riferimento: 1372234/1299/N233K
  • Tipologia: Ufficio in Vendita
  • Piano: Secondo
  • Stato: Nuovo
  • Bagni: 1
  • Prezzo: 115.000 €
  • Prezzo al mq: 1.337 €
  • Modificato il: 31/03/2026
  • Scheda: SC9514683

Stabile

  • Piano: 2 su 3 totali
  • Classe Energetica: n.d.

Mappa e indirizzo

55054 Massarosa (Lucca), zona quiesa
mappa mostra l'annuncio su mappa

Contatta l'inserzionista

LuccaCase Agenzia Immobiliare

LuccaCase Agenzia Immobiliare di Lucca propone in vendita questo immobile, contattali subito!

Annunci simili

Annunci immobiliari a Massarosa (LU)

Copyright Š 2026 PCase.it. All rights reserved. Sede operativa MILANO. P.IVA 08508420968 - Condizioni d'uso e privacy