Preferiti

Sponsorizza

Stampa

Ufficio in vendita nuovo a Massarosa - quiesa

  • 120.000€
  • zona quiesa
  • 79 mq
  • Vendesi

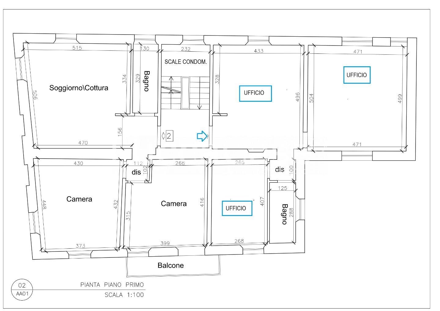
***.*******.** N232K - N232K - SEI ALLA RICERCA DEL TUO UFFICIO O VUOI FARE UN INVESTIMENTO ? COMUNE DI MASSAROSA ( Lucca) nel cuore della frazione di Quiesa, dove a due passi hai mezzi e negozi di prima necessità Ti propongo al piano primo di palazzina anni 30 interamente ristrutturata sia interamente che esternamete e di pochissime unità immobiliari, un ufficio di 79 mq commerciali.
Ci accede allo stesso dalla doppia loggia condominiale, curatissima, è composto da tre vani, e servizio igienico con doccia finestrato.
Gli ambienti, dalla tripla esposizione ( nord/sud/est) sono luminosi Possibilità di posto auto esclusivo ( il cui prezzo è di Euro 8.000) collocato sul lato sud nel fabbricato al quale si acese tramite sbarra elettrica Lufficio è dotato di split caldo/freddo in entrambi gli ambienti FINITURE : Portoncino dingresso blindato, infissi con doppi vetri pavimento in gres effetto legno, persiane in alluminio.
Edificio in classe energetica B KhW/mq annuo 34, 51 La disponibilità è immediata - Si precsa che in prezzo indicato è relativi al solo ufficio - Per motivi di riservatezza, la geolocalizzazione dell'immobile indica la zona in particolare, ma non l'indirizzo esatto dell'immobile. Contatta l'inserzionista

LuccaCase Agenzia ImmobiliareLuccaCase Agenzia Immobiliare
Viale Europa, 474
, Lucca (Lucca)
Visualizza Telefono

INFORMAZIONI SULL'IMMOBILE

  • Riferimento: 1372233/1299/N232K
  • Tipologia: Ufficio in Vendita
  • Piano: Primo
  • Stato: Nuovo
  • Bagni: 1
  • Prezzo: 120.000 €
  • Prezzo al mq: 1.519 €
  • Modificato il: 31/03/2026
  • Scheda: SC9514682

Stabile

  • Piano: 1 su 3 totali
  • Classe Energetica: n.d.

Mappa e indirizzo

55054 Massarosa (Lucca), zona quiesa
mappa mostra l'annuncio su mappa

Galleria Fotografica

Contatta l'inserzionista

LuccaCase Agenzia Immobiliare

LuccaCase Agenzia Immobiliare di Lucca propone in vendita questo immobile, contattali subito!

Annunci simili

Annunci immobiliari a Massarosa (LU)

Copyright Š 2026 PCase.it. All rights reserved. Sede operativa MILANO. P.IVA 08508420968 - Condizioni d'uso e privacy