Preferiti

Sponsorizza

Stampa

Ufficio in vendita da ristrutturare a Capannori - guamo

  • 190.000€
  • zona guamo
  • 290 mq
  • Vendesi

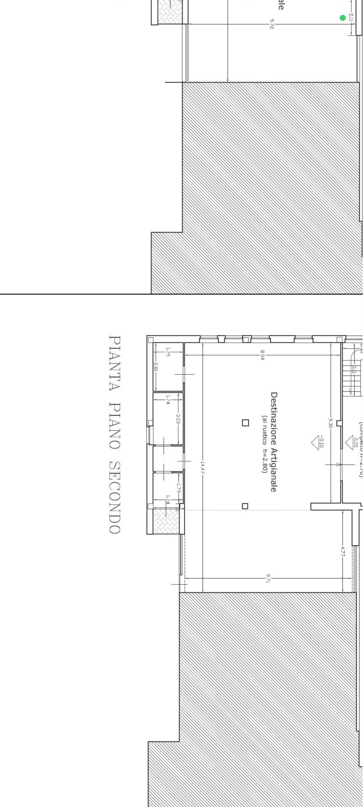
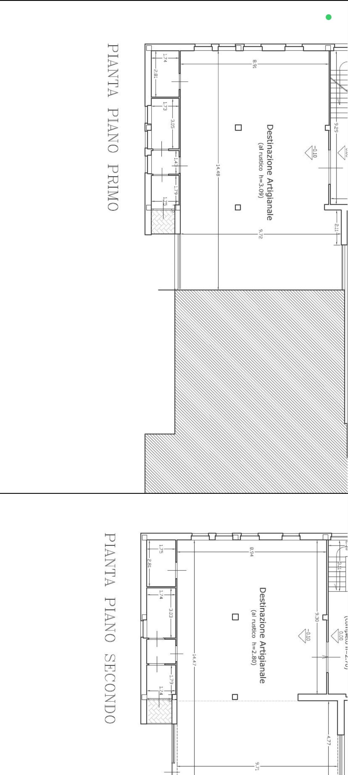
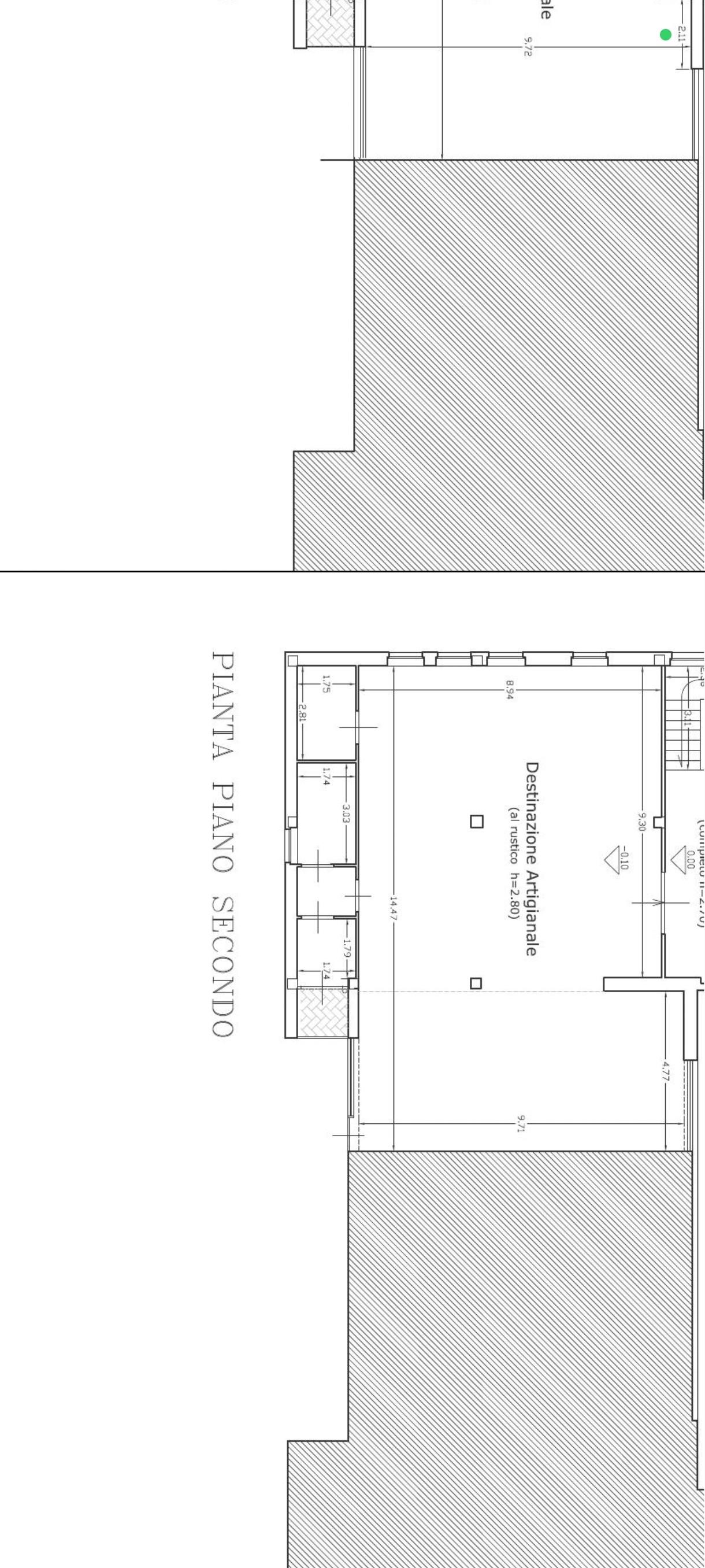
***.*******.** CF44 - GUAMO, ufficio di circa 300 mq posto su 2 livelli, piano primo e secondo/ultimo ( 150 mq a piano) attualmente al grezzo divisi ciascuno in unico vano con predisposizione per ricavare 1/2 bagni, corredato da 4 posti auto esclusivi, con possibilita' di realizzare ascensore.
Situato in una posizione strategica, questo ufficio rappresenta un'opportunità unica per chi cerca uno spazio funzionale e versatile sia per uso lavorativo sia per investimento, esente al momento da classe energetica non avendo ancora impianto di luce e acqua, Si precisa che l'indirizzo pubblicato nell'annuncio non corrisponde all'esatta geolocalizzazione dell'immobile, preghiamo quindi di contattarci telefonicamente o via email per avere informazioni più dettagliate.
Riferimento CF44 Contatta l'inserzionista

CasaInRealEstateCasaInRealEstate
Via Pesciatina, 42
, Capannori (Lucca)
Visualizza Telefono

INFORMAZIONI SULL'IMMOBILE

  • Riferimento: 1386125/2118/CF44
  • Tipologia: Ufficio in Vendita
  • Stato: da Ristrutturare
  • Bagni: 4
  • Prezzo: 190.000 €
  • Prezzo al mq: 655 €
  • Modificato il: 25/01/2026
  • Scheda: SC9588713

Stabile

  • Piani Totali: 3
  • Classe Energetica: n.d.

Mappa e indirizzo

55012 Capannori (Lucca), zona guamo
mappa mostra l'annuncio su mappa

Galleria Fotografica

Contatta l'inserzionista

CasaInRealEstate

CasaInRealEstate di Capannori propone in vendita questo immobile, contattali subito!

Annunci simili

Annunci immobiliari a Capannori (LU)

Copyright Š 2026 PCase.it. All rights reserved. Sede operativa MILANO. P.IVA 08508420968 - Condizioni d'uso e privacy