Preferiti

Sponsorizza

Stampa

Ufficio in vendita da ristrutturare a Capannori - guamo

  • 190.000€
  • zona guamo
  • 290 mq
  • Vendesi

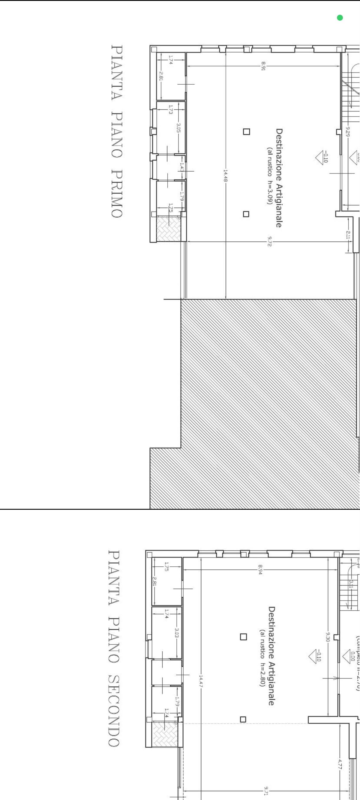
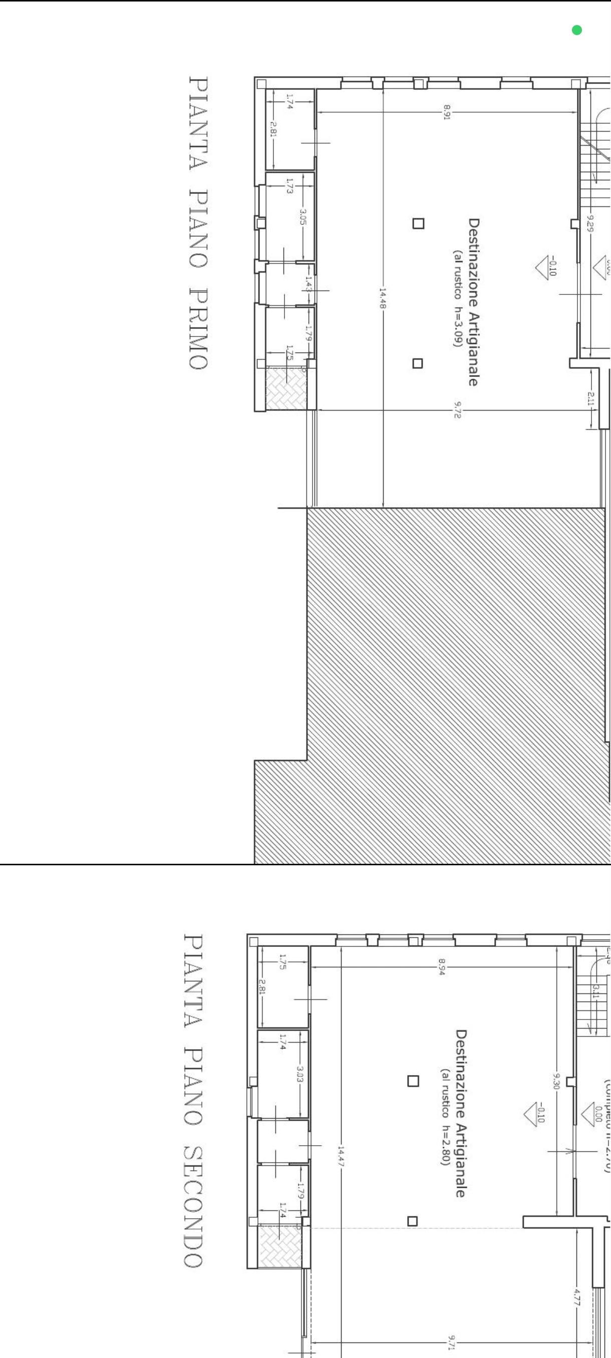
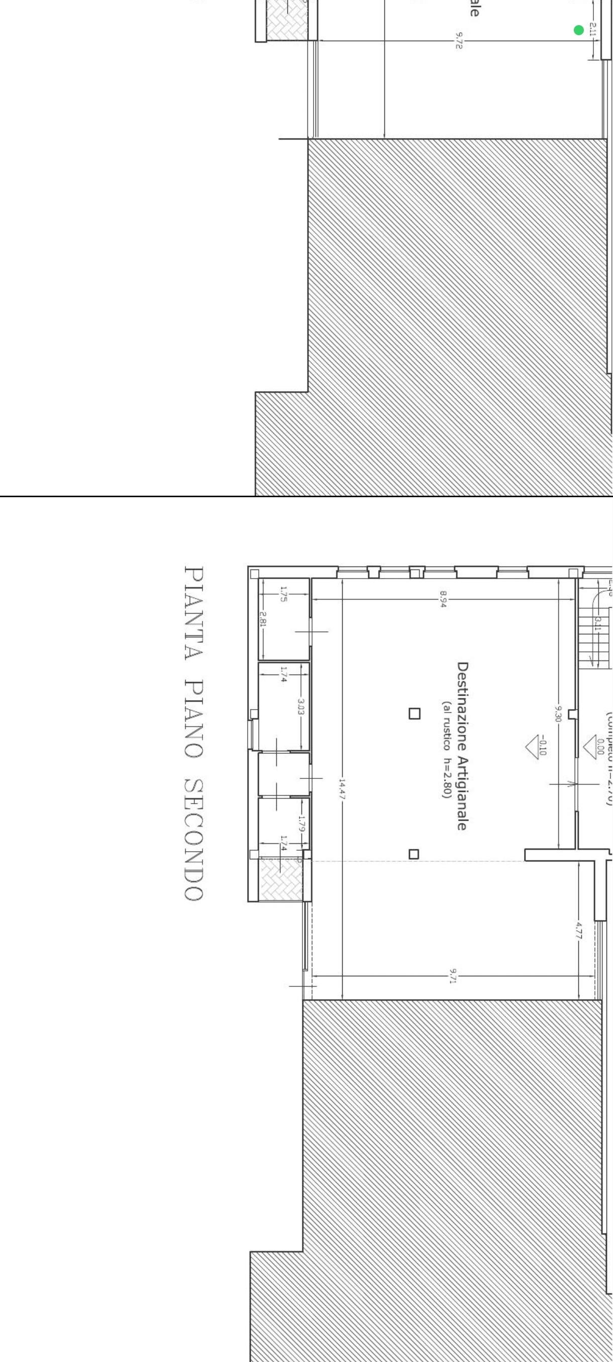
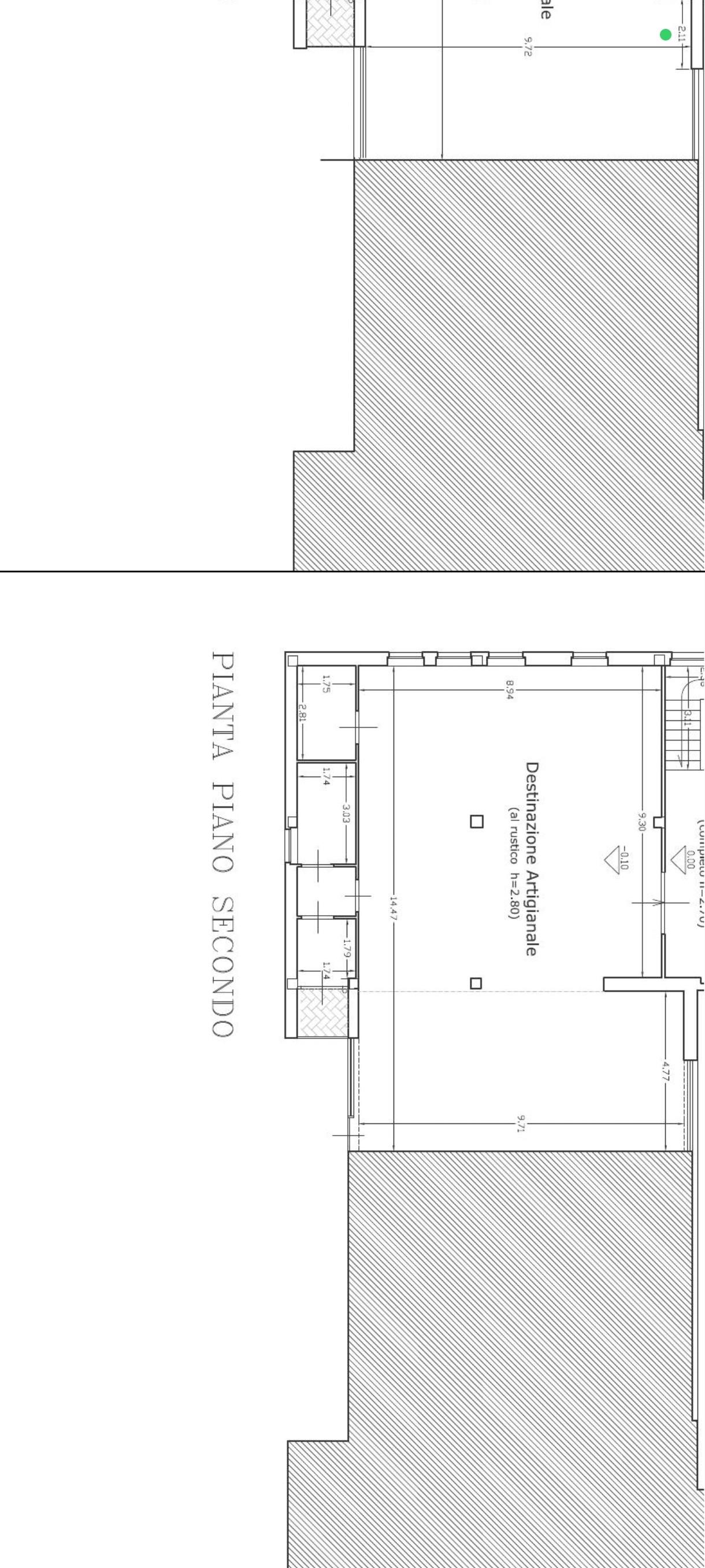
***.*******.** CF44 - GUAMO, ufficio di circa 300 mq posto su 2 livelli, piano primo e secondo/ultimo ( 150 mq a piano) attualmente al grezzo divisi ciascuno in unico vano con predisposizione per ricavare 1/2 bagni, corredato da 4 posti auto esclusivi, con possibilita' di realizzare ascensore.
Situato in una posizione strategica, questo ufficio rappresenta un'opportunità unica per chi cerca uno spazio funzionale e versatile sia per uso lavorativo sia per investimento, esente al momento da classe energetica non avendo ancora impianto di luce e acqua, Si precisa che l'indirizzo pubblicato nell'annuncio non corrisponde all'esatta geolocalizzazione dell'immobile, preghiamo quindi di contattarci telefonicamente o via email per avere informazioni più dettagliate.
Riferimento CF44 Contatta l'inserzionista

ERREA ImmobiliareERREA Immobiliare
Via Borgo Giannotti, 651
, Lucca (Lucca)
Visualizza Telefono

INFORMAZIONI SULL'IMMOBILE

  • Riferimento: 1352269/1150/CF44
  • Tipologia: Ufficio in Vendita
  • Stato: da Ristrutturare
  • Bagni: 4
  • Prezzo: 190.000 €
  • Prezzo al mq: 655 €
  • Modificato il: 14/10/2025
  • Scheda: SC9476610

Stabile

  • Piani Totali: 3
  • Classe Energetica: n.d.

Mappa e indirizzo

55012 Capannori (Lucca), zona guamo
mappa mostra l'annuncio su mappa

Galleria Fotografica

Contatta l'inserzionista

ERREA Immobiliare

ERREA Immobiliare di Lucca propone in vendita questo immobile, contattali subito!

Annunci simili

Annunci immobiliari a Capannori (LU)

Copyright Š 2026 PCase.it. All rights reserved. Sede operativa MILANO. P.IVA 08508420968 - Condizioni d'uso e privacy