Preferiti

Sponsorizza

Stampa

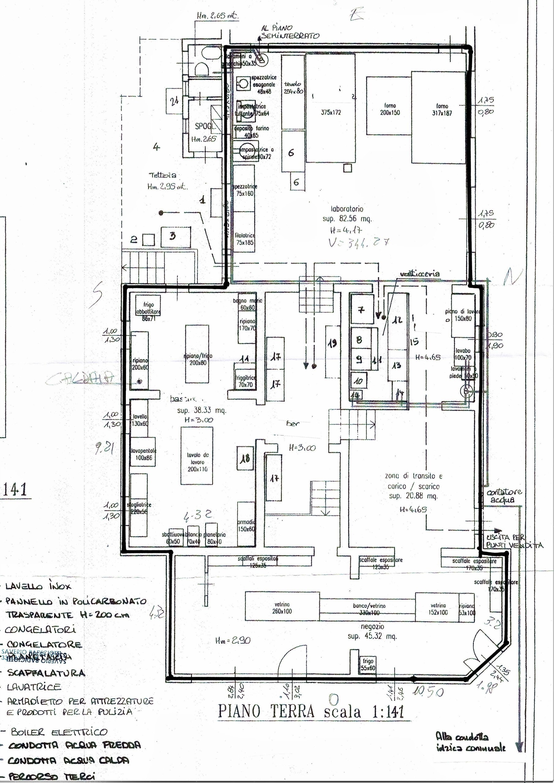
Locale commerciale in vendita da ristrutturare a Senigallia

  • 270.000€
  • 5 locali
  • 220 mq
  • Vendesi

SENIGALLIA - Rif. NE219 - - Zona centro, su strada di grande transito, VENDIAMO un NEGOZIO/LABORATORIO posto al piano terra, ottimo per attività di PANIFICIO, OFFICINA e VENDITA bici e moto, ecc. di mq 200 (150 mq artigianale + 50 mq commerciale), 2/3 posti auto) Disponibile canna fumaria.
Due bagni di cui uno per disabili.
Telefonare per informazioni al 351/7543337 VERDENELLI IMMOBILIARE SENIGALLIA. Contatta l'inserzionista

Verdenelli Alessandro D.I.Verdenelli Alessandro D.I.
Viale Leopardi 61
60019, Senigallia (Ancona)
Visualizza Telefono

INFORMAZIONI SULL'IMMOBILE

  • Riferimento: NE219
  • Tipologia: Locale commerciale in Vendita
  • Locali: 5 Locali
  • Piano: Terra
  • Stato: da Ristrutturare
  • Bagni: 3
  • Prezzo: 270.000 €
  • Prezzo al mq: 1.227 €
  • Modificato il: 09/02/2026
  • Scheda: SC9597667

Stabile

  • Anno: 1960
  • Piano: Terra
  • Classe Energetica: n.d.

Mappa e indirizzo

60019 Senigallia (Ancona)
mappa mostra l'annuncio su mappa

Galleria Fotografica

Contatta l'inserzionista

Verdenelli Alessandro D.I.

Verdenelli Alessandro D.I. di Senigallia propone in vendita questo immobile, contattali subito!

Annunci immobiliari a Senigallia (AN)

Copyright Š 2026 PCase.it. All rights reserved. Sede operativa MILANO. P.IVA 08508420968 - Condizioni d'uso e privacy