Preferiti

Sponsorizza

Stampa

Locale commerciale in affitto a Udine

  • Prezzo ribassato -16%
  • € 3.000 2.500€
  • 6 locali
  • 300 mq
  • Affittasi

Locale commerciale nei pressi del Duomo di Udine.
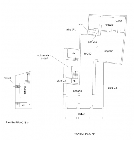
Si propone in locazione locale commerciale di circa 350mq con fronte vetrinato con tre grandi vetrine.
Attualmente l'immobile è al grezzo avanzato ed è possibile personalizzarlo in base alle proprie necessità. Spese condominiali Euro 50/mese. Il locale è usufruibile da subito.
Metrature: Piano terra 340mq, cantina 10mq. Altezza interna 2,90m Certificazione energetica Classe E. Ulteriori informazioni presso i nostri uffici.
Vorresti lavorare in Agenzia Immobiliare? - Ti piacerebbe diventare un Agente Immobiliare? Guarda le nostre offerte di lavoro nella sezione del nostro sito Lavora con Noi Compila subito il format nella pagina oppure invia la tua candidatura direttamente al nostro indirizzo mail. Sarai ricontattato entro 2gg Contatta l'inserzionista

Immobigo srlImmobigo srl
Via Nazionale )
33010, Tavagnacco (Udine)
Visualizza Telefono

INFORMAZIONI SULL'IMMOBILE

  • Riferimento: 9842_1091746
  • Tipologia: Locale commerciale in Affitto
  • Locali: 6 Locali
  • Stato: Buono
  • Prezzo: 2.500 €
  • Prezzo al mq: 8 €
  • Spese: 600,00 € (annuali)
  • Riscaldamento: Centralizzato
  • Cantina: Si
  • Modificato il: 23/04/2026
  • Scheda: SC9508312

Stabile

  • Piani Totali: 2
  • Portineria: No
E

Galleria Fotografica

Contatta l'inserzionista

Immobigo srl

Immobigo srl di Tavagnacco propone in affitto questo immobile, contattali subito!

Annunci immobiliari a Udine (UD)

Copyright Š 2026 PCase.it. All rights reserved. Sede operativa MILANO. P.IVA 08508420968 - Condizioni d'uso e privacy