Locale commerciale con doppi servizi. Spese condominiali comprensive di riscaldamento e raffreddamento. Impianto di ricircola aria già istallato. Possibilità di canna fumaria ( autorizzazioni...
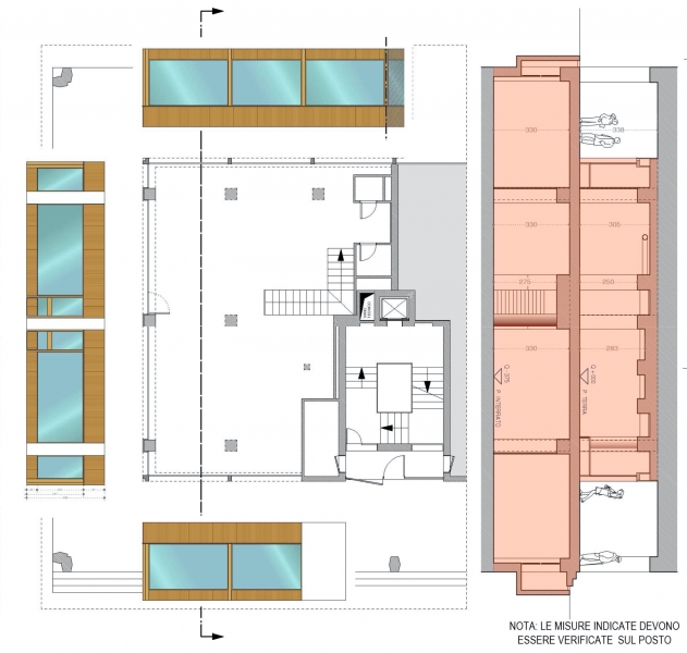
Ribassato -16% Locale commerciale nei pressi del Duomo di Udine. Si propone in locazione locale commerciale di circa 350mq con fronte vetrinato con tre grandi vetrine. Attualmente l'immobile è al grezzo avanzato ed...
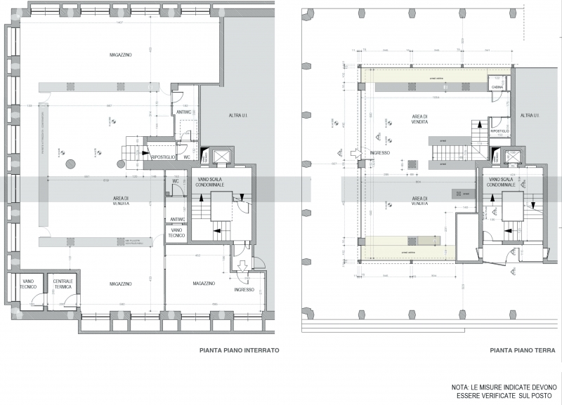
Locale commerciale al Terminal Nord di 415mq ( possibilità di canna fumaria ) inserito nell'AREA FOOD del Parco Commerciale. Affitto di ramo d'azienda di 5 anni. Ulteriori info su appuntamento presso...

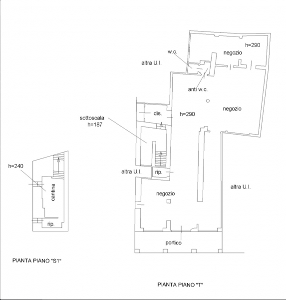
Nel cuore più autentico della città, a pochi passi dal Duomo di Udine, proponiamo in locazione locale commerciale di 49mq situato in posizione di assoluto prestigio e fortissimo passaggio pedonale....
inserito il 05 mar 2026 in Locali commerciali in affitto ad Udine
Nel cuore più autentico della città, a pochi passi dal Duomo di Udine, proponiamo in locazione locale commerciale di 49mq situato in posizione di assoluto prestigio e fortissimo passaggio pedonale....
inserito il 05 mar 2026 in Locali commerciali in affitto ad UdineStai cercando Locali commerciali in affitto ad Udine? Su PCase.it puoi trovare diversi annunci immobiliari di Locali commerciali in affitto ad Udine affini alla tua ricerca, ogni giorno tanti nuovi inserimenti e abbassamenti di prezzo da agenzie immobiliari di fiducia, costruttori esperti e privati che offrono i migliori locali commerciali in affitto ad udine corredati da descrizioni complete, foto, video e mappe. Scopri com'è facile trovare subito il tuo nuovo immobile commerciale online in affitto a Udine.