Preferiti

Sponsorizza

Stampa

Capannone in affitto nuovo a Capannori

  • 2.500€
  • 500 mq
  • Affittasi

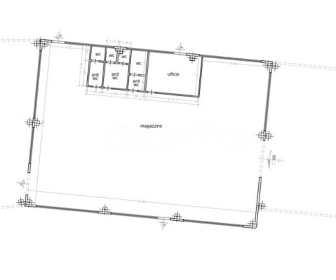
***.*******.** F420K - F420K - COMUNE DI CAPANNORI zona sud - In complesso commerciale con accesso indipendente proponiamo in affitto capannone attualmente ad artigianale ( ma ideale anche per farne un uos magazzino /deposito) allo stato grezzo avanzato ma già dotato di impianto elettrico di base , l'immobile a pianta quadrata misura 500 mq è composto da unico vano open space con portellone elettrico e secondo accesso tramite porta per entrare a piedi , antibagno, quattro servizi igienici, vano uso ufficio e la possibilità data la conformazione dellimmobile di poterne realizzare un altro.
L'altezza interna sotto trave è di mt 5.00 - La porzione di callare che lo divide da unaltra unità immobiliare, è idonea ad uso di parcheggio, sosta per il carico e lo scarico dei mezzi anche pesanti è da considerarsi pertinenza esclusiva - Non è presente l'impianto di risaldamento Ape in fase di rilascio.
La struttura è stata realizzata in cemento armato.
Attualmente l'ape è esente perché trattasi da immobile da completare - Sono richieste referenze documentabili - Al canone va aggiunta l'iva - Contatta l'inserzionista

LuccaCase Agenzia ImmobiliareLuccaCase Agenzia Immobiliare
Viale Europa, 474
, Lucca (Lucca)
Visualizza Telefono

INFORMAZIONI SULL'IMMOBILE

  • Riferimento: 1276572/1299/F420K
  • Tipologia: Capannone artigianale in Affitto
  • Piano: Terra
  • Stato: Nuovo
  • Bagni: 1
  • Prezzo: 2.500 €
  • Prezzo al mq: 5 €
  • Modificato il: 11/12/2025
  • Scheda: SC9491408

Stabile

  • Piano: Terra su 2 totali
  • Classe Energetica: n.d.

Mappa e indirizzo

55012 Capannori (Lucca)
mappa mostra l'annuncio su mappa

Contatta l'inserzionista

LuccaCase Agenzia Immobiliare

LuccaCase Agenzia Immobiliare di Lucca propone in affitto questo immobile, contattali subito!

Annunci simili

Annunci immobiliari a Capannori (LU)

Copyright Š 2026 PCase.it. All rights reserved. Sede operativa MILANO. P.IVA 08508420968 - Condizioni d'uso e privacy