Preferiti

Sponsorizza

Stampa

Capannone in affitto a Capannori

  • Prezzo ribassato -28%
  • € 3.500 2.500€
  • 400 mq
  • Affittasi

***.*******.** F650K - F650K - COMUNE DI CAPANNORI In ottima posizione, proponiamo in affitto un interessante porzione di capannone risalente agli anni '70, ben conservato e funzionale.
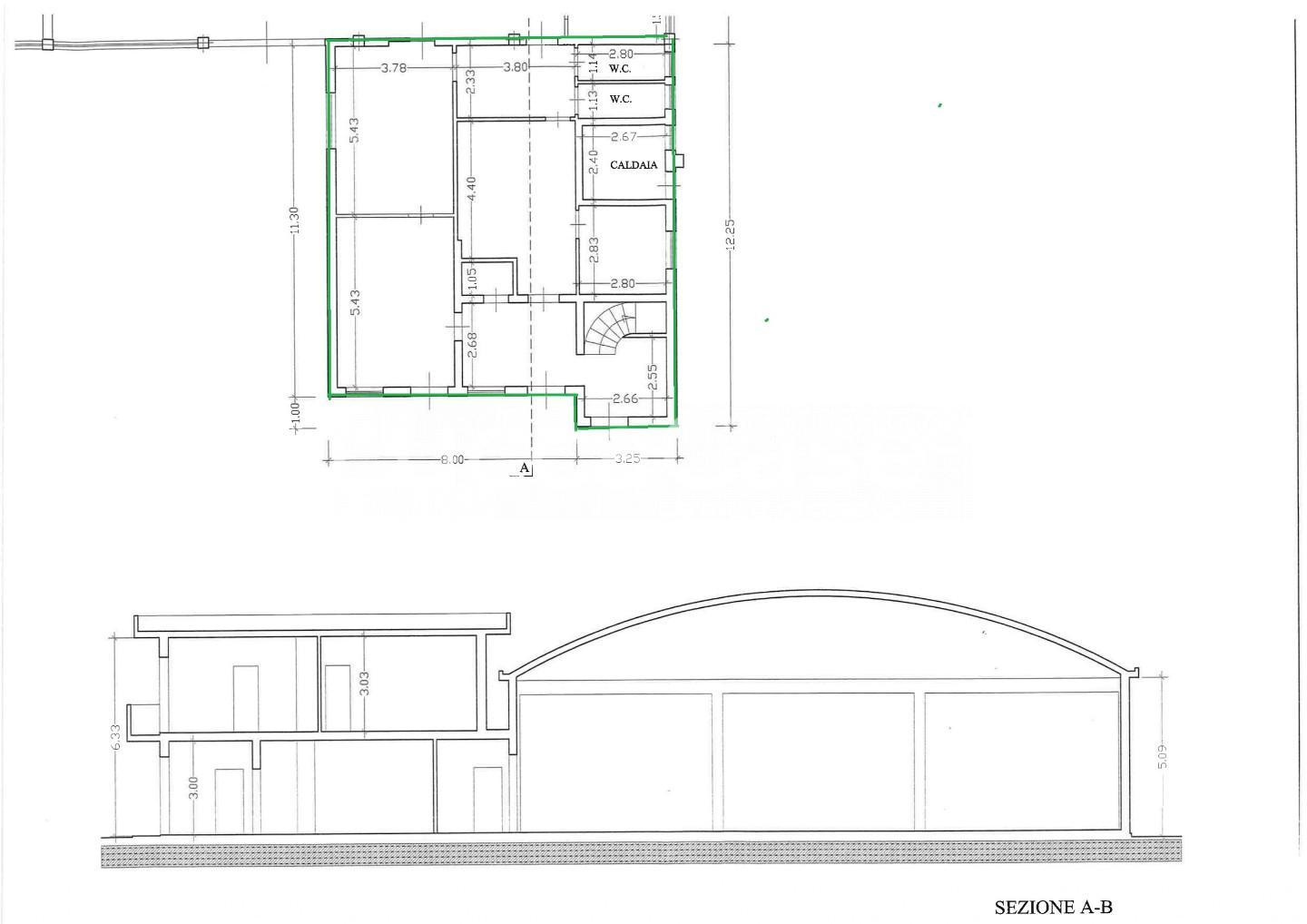
La proprietà è composta da: Porzione di capannone ad uso industriale (categoria D/1), a pianta rettangolare, perfetto anche come magazzino o deposito, costituito da un ampio ambiente open space con servizi igienici, per una superficie complessiva di circa 400 mq - Il capannone ha la copertura a volta e l'altezza ainterna sottotrave è di ml. 5,10 - E' dotato al suo interno i n°2 vani utilizzati come uffici, due docce - Il capannone è dotato di impianto di riscaldamento, gli uffici al suo interno da split caldo/ freddo Il tutto è dettagliatamente rappresentato nella planimetria allegata.
La proprietà perimetralmente recintata è dotata di cancello scorrevole elettrico dove un ampio piazzale accessibile da strada a doppio senso di marcia, garantisce facilità di manovra anche ai mezzi pesanti.
Efidicio in classe energetica G - Kwh/mq annuo 246,80 Sono richieste referenze dimostrabili.
Il capannone è subito disponibile Contatta l'inserzionista

LuccaCase Agenzia ImmobiliareLuccaCase Agenzia Immobiliare
Viale Europa, 474
, Lucca (Lucca)
Visualizza Telefono

INFORMAZIONI SULL'IMMOBILE

  • Riferimento: 1339990/1299/F650K
  • Tipologia: Capannone industriale in Affitto
  • Piano: Terra
  • Stato: Buono
  • Prezzo: 2.500 €
  • Prezzo al mq: 6 €
  • Modificato il: 31/03/2026
  • Scheda: SC9471004

Stabile

  • Piano: Terra su 1 totali
  • Classe Energetica: n.d.

Mappa e indirizzo

55012 Capannori (Lucca)
mappa mostra l'annuncio su mappa

Galleria Fotografica

Contatta l'inserzionista

LuccaCase Agenzia Immobiliare

LuccaCase Agenzia Immobiliare di Lucca propone in affitto questo immobile, contattali subito!

Annunci simili

Annunci immobiliari a Capannori (LU)

Copyright Š 2026 PCase.it. All rights reserved. Sede operativa MILANO. P.IVA 08508420968 - Condizioni d'uso e privacy