Preferiti

Sponsorizza

Stampa

Appartamento in vendita con terrazzo a Senigallia in loc. cesano strada ii

  • 494.000€
  • 3 locali
  • 95 mq
  • Vendesi

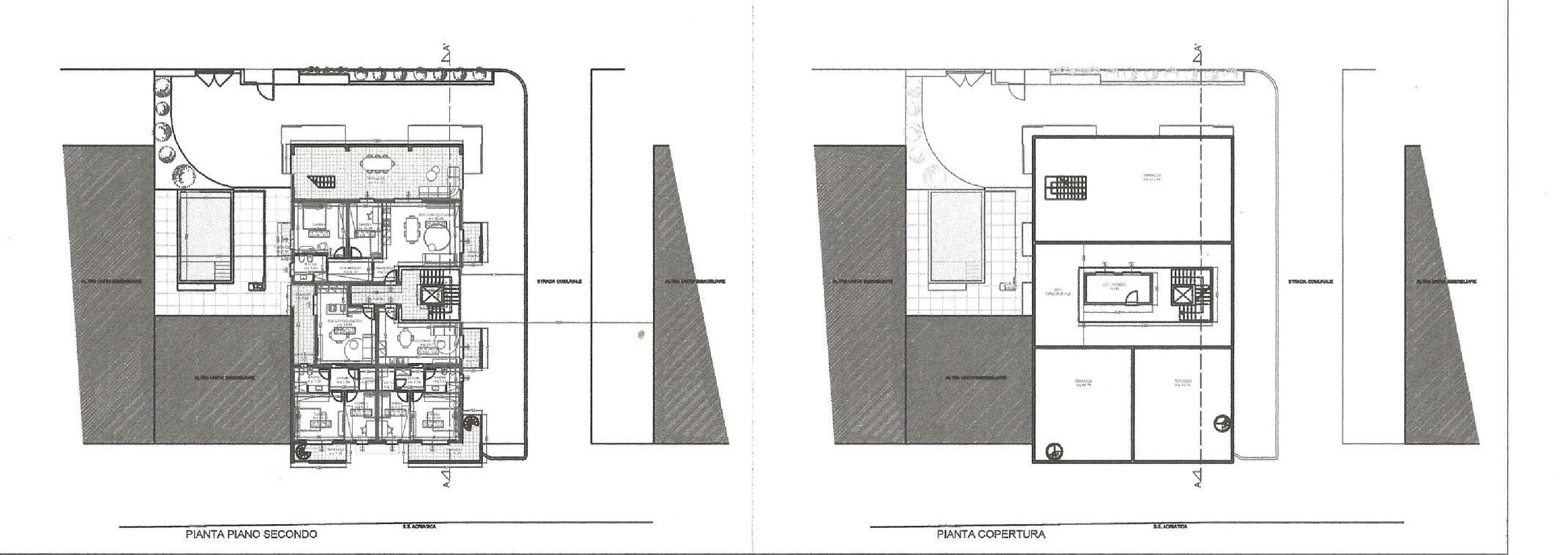
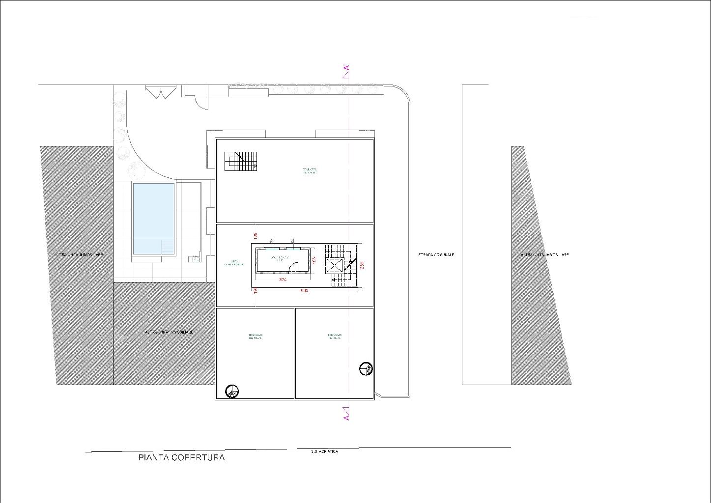
LOC. CESANO di SENIGALLIA, a 5 minuti dal MARE e in posizione ottimamente collegata al CENTRO e ai servizi: PROSSIMA REALIZZAZIONE di una piccola palazzina dotata di piscina privata e composta da appartamenti in classe A4 con vista mare, ampi balconi e solarium, garage e cantina di proprietà. Finiture di livello e impianti di ultima tecnologia.
Questo annuncio si riferisce ad un appartamento attico al piano 2o ed ultimo: mq. 95 ca ( salone con cucina a vista, due camere ,due bagni, cabina armadio) completato da due balconi e dal terrazzo coperto mq.45ca ( con vista mare) e dal soprastante solarium ( sempre privato) mq.120 ca. Garage e ampia cantina privati al PT. PER INFORMAZIONI: telefonare in AGENZIA. Contatta l'inserzionista

BOLDRINI MR IMMOBILIAREBOLDRINI MR IMMOBILIARE
LUNGOMARE MARCONI, 25
60019, Senigallia (Ancona)
Visualizza Telefono

INFORMAZIONI SULL'IMMOBILE

  • Riferimento: RMCCA121
  • Tipologia: Appartamento in Vendita
  • Locali: 3 Locali (2 camere, cucina a vista con doppi servizi)
  • Stato: Nuovo
  • Prezzo: 494.000 €
  • Prezzo al mq: 5.200 €
  • Balconi: 2
  • Terrazzi: 1
  • Riscaldamento: Autonomo
  • Cantina: Si
  • Vista mare: Si
  • Modificato il: 07/04/2026
  • Scheda: SC9610836

Stabile

  • Anno: 2026
  • Piani Totali: 2
  • Ascensore: Si
A4

Mappa e indirizzo

Appartamento sito in loc. cesano strada ii
60019 Senigallia (Ancona)
mappa mostra l'annuncio su mappa

Galleria Fotografica

Contatta l'inserzionista

BOLDRINI MR IMMOBILIARE

BOLDRINI MR IMMOBILIARE di Senigallia propone in vendita questo immobile, contattali subito!

Annunci simili

Annunci immobiliari a Senigallia (AN)

Copyright Š 2026 PCase.it. All rights reserved. Sede operativa MILANO. P.IVA 08508420968 - Condizioni d'uso e privacy