Preferiti

Sponsorizza

Stampa

Casa indipendente in vendita a Lucca in via montegrappa

  • 350.000€
  • 4 locali
  • 100 mq
  • Vendesi

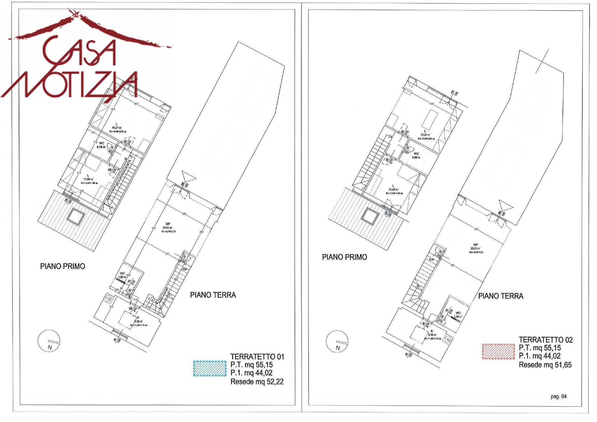
Terratetto in fase di costruzione in vendita a Lucca, zona Circonvallazione.
In zona strategica, a due passi dalle Mura Urbane, l'agenzia immobiliare Casanotizia lieta di presentare terratetto centrale sito all'interno di bel contesto residenziale fronte mura. L'immobile viene venduto completamente ristrutturato "chiavi in mano", con materiali di ottima qualit.
Corredato da resede privata per due posti auto. L'immobile di circa 100 mq e si sviluppa su due livelli.
Al piano terra troviamo una grande zona giorno, cucina abitabile, bagno e ripostiglio sottoscala.
Al piano superiore si sviluppa la zona notte composta da due ampie camere e un ulteriore bagno.
Ottima soluzione per chi cerca un immobile nuovo con la possibilit di raggiungere a piedi la citt. I terratetti disponibili sono due, come si vede in planimetria e sono complementari.
La vendita soggetta ad Iva. Contatta l'inserzionista

Casanotizia Del Geom. Gabriele AlessandroCasanotizia Del Geom. Gabriele Alessandro
Viale San Concordio n. 537
55100, Lucca (Lucca)
Visualizza Telefono

INFORMAZIONI SULL'IMMOBILE

  • Riferimento: 66271
  • Tipologia: Casa indipendente in Vendita
  • Locali: 4 Locali (3 camere con doppi servizi)
  • Prezzo: 350.000 €
  • Prezzo al mq: 3.500 €
  • Modificato il: 02/02/2024
  • Scheda: SC9571339

Stabile

  • Anno: 2023
  • Piani Totali: 2
  • Classe Energetica: n.d.

Mappa e indirizzo

Casa indipendente sito in via montegrappa
55100 Lucca (Lucca)
Europa, Mugnano, Pontetetto, Stazione, Via Formica
mappa mostra l'annuncio su mappa

Contatta l'inserzionista

Casanotizia Del Geom. Gabriele Alessandro

Casanotizia Del Geom. Gabriele Alessandro di Lucca propone in vendita questo immobile, contattali subito!

Annunci simili

Annunci immobiliari a Lucca (LU)

Copyright Š 2026 PCase.it. All rights reserved. Sede operativa MILANO. P.IVA 08508420968 - Condizioni d'uso e privacy