locale commerciale di circa mq 30 con bagno buono lo stato abitativo ideale per commercio al dettaglio la zona e' facilmente raggiungibile da asse mediano parcheggio auto in zona gratuito.per info...
inserito il 30 dic 2025Appartamento bilocale o trilocali con terrazzo condiviso VIA ROMA con ascensore buono stato abitativo la zona centrale facilmente raggiungibile da asse mediano contesto tranquillo con vari studi...
inserito il 30 dic 2025Appartamento bilocale in zona industriale uso ufficio o professionale composto da 2 ampi vani e un bagno lato esterno servito da terrazzino ottimo stato abitativo facilita' di parcheggio con...
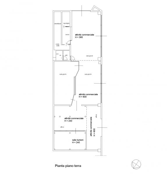
inserito il 30 dic 2025Locale deposito di circa mq 400 con relatici servizi igienici a norma sala conferenza e una ufficio direzionale con ingresso indipendente per carico e scarico i locali sono ideali per sala...
inserito il 30 dic 2025Ampio locale uso magazzino o deposito di circa mq 250 e ufficio direzionale interno ottimo per deposito o centro distribuzione ideale per grossisti .Il locale si trova in posizione strategica a pochi...
inserito il 30 dic 2025Appartamento in affitto a SANT'ANTIMO-NA- in zona centrale al secondo piano composto da salone living con angolo cottura una camera da letto matrimoniale una cameretta per ragazzi un bagno con vasca...
inserito il 30 dic 2025Locale commerciale di mq 320 con certificato di agibilit e documentazione tecnica urbanistica in regola ideale per attivit produttive, negozi, ingrosso, e altro la superficie utilizzabile di mq 320...
inserito il 30 dic 2025Appartamento bilocale con bagno totalmente ristrutturato al primo piano con posto auto in Carpot l'appartamento con aria condizionata ed gi predisposto per essere utilizzato per uso ufficio o...
inserito il 30 dic 2025
Cerchi Case e Immobili in affitto ma non hai trovato nulla di tuo interesse?
Utilizza il nostro modulo di richiesta generica ed invia una email di richiesta alle nostra agenzie affiliate!
Codice ITI 027: Locale commerciale di circa mq 30 con ampia vetrina direttamente su strada principale ad alta visibilit ideale per qualsiasi attivit commerciale al dettaglio documentazione tecnico...
inserito il 30 dic 2025Locale commerciale circa mq 25 con due vetrine su strada e bagno a norma buono stato abitativo in zona centrale a pochi metri dalla piazza principale in zona con alta visibilit ideale per commercio...
inserito il 30 dic 2025ampio locale con ingresso indipendente e cancello automatico circa mq 900 per uso deposito zona facilmente raggiungibile da asse mediano ideale per deposito merce ottima sicurezza dotato di bagno e...
inserito il 30 dic 2025Locale commerciale con due vetrine totali mq 60 in pieno centro urbano con ottima visibilit ideale per attivit commerciali al dettaglio i locali si trovano presso la piazza principale buono lo stato...
inserito il 30 dic 2025Sant'Antimo in zona centrale a pochi metri dalla piazza principale del paese proponiamo un bilocale in affitto uso ufficio al piano rialzato con ingresso indipendente composto da due vani con bagno a...
inserito il 30 dic 2025Sant'Antimo zona centrale affitto locale commerciale di circa mq 60 con bagno ottimo stato abitativo necessita solo di allestimento arredo per qualsiasi tipo di attivit commerciale la posizione...
inserito il 30 dic 2025ampio locale commerciale con due vetrine su strada e due vetrine su area corilizia condominiale luminoso ideale per qualsiasi attivita' commerciale o mega store ottima logistica in prossimita'...
inserito il 30 dic 2025Appartamento in affitto a SANT'ANTIMO zona centrale composto da salone living con angolo cottura una camera da letto matrimoniale una cameretta un bagno con vasca ampio balcone l'appartamento gode di...
inserito il 30 dic 2025Appartamento in affitto a SANT'ANTIMO composto da salone living con angolo cottura 1 camera da letto matrimoniale una cameretta un bagno ripostiglio esterno ampio balcone utilizzabile l'appartamento...
inserito il 30 dic 2025Locali commerciali in zona centrale Via Roma Locali da ristrutturare con spese a carico del proprietario con tutte le autorizzazioni ideali per qualsiasi attivit commerciale la zona facilmente...
inserito il 30 dic 2025Ampio locale di circa mq 200 interrato in zona centrale di CASANDRINO ideale per deposito merci con ingresso indipendente e custodito in zona sorvegliata vicino a asse mediano il locale da completare...
inserito il 30 dic 2025terreno di circa mq 800 composto da casetta direzionale di mq 70 circa da adibire ad ufficio mq 220 di capannone coperto e mq 500 circa di area scoperta il tutto ideale per deposito e logistica merci...
inserito il 30 dic 2025CAMERA ARREDATA IN APPARTAMENTO RISTRUTTURATO"ZONA UNIVERSITARIA" La Capital House di Caserta con sede in viale Lincoln n°233,propone in locazione camere arredate con tutti i comfort in un ampio...
inserito il 30 dic 2025GRAZIOSO LOCALE COMMERCIALE IN CENTRO L a Capital House con sede in Caserta in viale Lincoln N°233,propone in locazione grazioso locale commerciale, fronte strada , di circa mq 40,composto da unico...
inserito il 30 dic 2025CAMERE PER STUDENTI ARREDATE"EX NOVO" IN ZONA UNIVERSITA' La Capital house di Caserta con sede in viale Lincoln N°233,propone in locazione camere arredate totalmente nuove in luminoso appartamento...
inserito il 30 dic 2025CAMERA PER STUDENTESSA EX NOVO ZONA UNIVERSITARIA La Capital House di Caserta con sede in viale Lincoln n°233,propone in fitto luminosissima camera matrimoniale ,arredata nei minimi dettagli ideale...
inserito il 30 dic 2025locale commerciale in zona centralissima e vicino asse mediano con spazio antistante il locale e' composto da un locale e piccolo retrobottega e bagno di servizio ottimo stato d'uso tutto a norma e...
inserito il 30 dic 2025Stanza arredata con bagno privato per studenti zona Universita'/Stazione La Capital House di Caserta con sede in viale Lincoln 233 propone in fitto stanze singole con bagno privato in meraviglioso...
inserito il 30 dic 2025Camere per studentesse in via Renella La CapitalHouse di Caserta con sede in Viale Lincoln, 233 propone in affitto due camere matrimoniali all'interno di un appartamento ubicato al quarto piano...
inserito il 30 dic 2025LOCALE COMMERCIALE DI AMPIA METRATURA CON SPAZIO ESTERNO PRIVATO!! La Capital House di Caserta con sede in viale Lincoln n233,propone in fitto locale commerciale di ampia metratura con annessa canna...
inserito il 30 dic 2025DEPOSITO CON DOPPIO ACCESSO IN CENTRO!!! La Capita House di Caserta con sede in viale Lincoln n:233,propone in fitto deposito di circa 20 mq soppalcabile ,posto al piano terra in palazzo d'epoca e...
inserito il 30 dic 2025LOCALE COMMERCIALE IN VIA DON BOSCO La Capitalhouse di Caserta, con sede in Viale Lincoln 233, propone in locazione locale commerciale ubicato in pieno centro. La soluzione ,di circa 35 Mq, e'...
inserito il 30 dic 2025UFFICIO ARREDATO E RISTRUTTURATO IN STUDIO ASSOCIATO La Capital House di Caserta con sede in Viale Lincoln 233, propone in fitto ufficio arredato con ingresso indipendente, bagno e sala d'attesa...
inserito il 30 dic 2025
BOX AUTO NUOVA COSTRUZIONE La capital house di caserta con sede in viale lincoln 233 propone in ftto ampio box auto in condominio con porta basculante Capital House Caserta Viale Lincoln N°233 Tel:...
inserito il 30 dic 2025Ostia Via Federico Paolini: zona Asl, proponiamo la locazione di un locale commerciale di 80 mq con 4 vetrine su strada con serrande elettriche e canna fumaria. L'immobile composto da primo ampio...
inserito il 30 dic 2025Affitto a Cisterna di Latina STANZA USO STUDIO/ UFFICIO COMPLETAMENTE ARREDATA per chi cerca uno spazio professionale funzionale e confortevole. Situato in una zona strategica e ben collegata, questo...
inserito il 30 dic 2025Affitto a Cisterna di Latina STANZA ARREDATA per chi cerca uno spazio professionale funzionale e confortevole. Situato in una zona strategica e ben collegata, questo immobile perfetto per svolgere...
inserito il 30 dic 2025Proponiamo in AFFITTO uno studio/ufficio situato a Cisterna di Latina, in una zona strategica e di forte passaggio. L'immobile pronto per essere personalizzato e adattato alle proprie esigenze per...
inserito il 30 dic 2025Questo studio/ufficio in affitto a Cisterna di Latina un'ottima opportunit per chi cerca uno spazio professionale funzionale e confortevole. Situato in una zona strategica e ben collegata, questo...
inserito il 30 dic 2025Affittasi a Pisa due fondi comunicanti uso magazzino siti in pieno centro storico nelle adiacenze del Lungarno Galilei ; gli immobili , affittabili anche singolarmente, sviluppano rispettivamente 28...
inserito il 30 dic 2025Proponiamo locale di ampia metratura e rifinitissimo! Ottimo anche per attivit' inerenti a room poker, burraco e varie attivit ricreative, feste di compleanno, anniversari e vari eventi! PRENOTA UNA...
inserito il 30 dic 2025
CISTERNA DI LATINA: in zona residenziale, pi precisamente Collina dei Pini, a due passi dai supermercati Conad ed Orizzonte, proponiamo in AFFITTO locale ad uso deposito della consistenza di circa...
inserito il 30 dic 2025CISTERNA DI LATINA: in zona periferica, pi precisamente in zona Franceschetti, proponiamo in AFFITTO capannone artigianale di mq 700 circa, con entrata indipendente carrabile. Il capannone sito su un...
inserito il 30 dic 2025CISTERNA DI LATINA: in zona industriale, proponiamo in AFFITTO porzione di locale ad uso ufficio posto al piano primo con ascensore. L'immobile composto da ingresso, due stanze ad uso ufficio, un...
inserito il 30 dic 2025CISTERNA DI LATINA: Centrale AFFITTO Locale commerciale di 100 mq. Il costo di quest'immobile di ? 1000 APE G.
inserito il 30 dic 2025L'edificio commerciale-magazzino in affitto a Cisterna di Latina un'ampia struttura di circa 1.800 metri quadrati, di cui 1.700 metri quadrati calpestabili, distribuiti su tre piani con ampie...
inserito il 30 dic 2025AFFITTO TURISTICO. NETTUNO zona SANTA BARBARA Appartamento al 1° Piano in residence in palazzina con ascensore. Ingresso, soggiorno, cucina abitabile, corridoio, 2 camere, doppi servizi di cui uno in...
inserito il 30 dic 2025Appartamento al terzo piano in zona centrale composto da ingressi in salone living ampio una cucina abitabile con camino una camera da letto matrimoniale due camerette e due bagni uno con vasca e uno...
inserito il 30 dic 2025appartamento di nuova costruzione in zona centrale con ascensore. l'appartamento si trova al primo piano composto da ingresso in salone living con angolo cottura una camera da letto matrimoniale una...
inserito il 30 dic 2025locale deposito di circa mq 50 con bagno ideale per deposito merci o magazzino in zona centrale con facilita' di scarico e carico la zona e' centrale facilmente raggiungibile da asse mediano e in...
inserito il 30 dic 2025appartamento al primo piano in zona centrale di sant'antimo-na- composto da ingresso in salone living una cucina abitabile ampia 4 camere 2 bagni termo autonomo con caldaia possibilita' di posto auto...
inserito il 30 dic 2025
CISTERNA DI LATINA: in zona centralissima, vicina ai servizi, proponiamo in AFFITTO locale commerciale di mq 150 circa posto al piano terra. Il costo della locazione di ? 1.000,00 APE DA DEFINIRE
inserito il 30 dic 2025L'offerta riguarda un'ampia e funzionale soluzione immobiliare: PORZIONE DI un capannone artigianale in affitto a Cisterna di Latina, situato in una zona strategica e comoda per raggiungere i...
inserito il 30 dic 2025In via Merello proponiamo in locazione un locale commerciale con una vetrina su strada. Limmobile in oggetto composto da due ambienti distribuiti come accoglienza alla clientela, un retrobottega ed...
inserito il 30 dic 2025uffici: per maggiori informazioni rivolgersi all'ufficio 3283266299 rif: 140550c
inserito il 30 dic 2025Zona Centro Storico : si affitta splendido attico in zona centrale completamente arredato nuovo . L'immobile si compone di una ampia e luminosa zona giorno , con salone e cucina separati e con...
inserito il 30 dic 2025ZONA CENTRO: si affitta ampio spazio commerciale di circa 550 mq in ottimo stato. Dotato di termoconvettori caldo/freddo e impianto antincendio; uscita per carico/scarico merci. Sono gi presenti 3...
inserito il 30 dic 2025L'immobiliare Unika propone in locazione nel Comune di Altidona (FM), in zona servita, locale commerciale di circa 250 mq posto al piano terra con doppio ingresso indipendente e corte a servizio....
inserito il 30 dic 2025L'Immobiliare Unika propone in locazione nel Comune di Porto San Giorgio (FM) in zona Salvano, a due passi da tutti i servizi e dal Casello dell'autostrada A14, porzione di edificio di circa 250 mq...
inserito il 30 dic 2025L'Immobiliare Unika propone in locazione transitoria a Marina di Altidona, dal mese di Giugno, in una delle localit pi richieste della costa fermana, comodo appartamento di circa 110 mq in zona...
inserito il 30 dic 2025Affittasi a Tirrenia (PI) - Nostra esclusiva! In posizione centrale con forte passaggio, proponiamo 'temporary office' di 38 Mq. con ampie vetrine fronte strada ed aria condizionata. Ideale per...
inserito il 30 dic 2025L'immobiliare Unika propone in locazione nel Comune di Fermo (FM), in zona servita, locale di circa 118 mq posto al piano terra con doppio ingresso indipendente e doppia vetrina. L'immobile in...
inserito il 30 dic 2025L'immobiliare Unika propone in locazione a Porto San Giorgio (FM), nel quartiere di Salvano, a due passi dal casello autostradale A14, locale di circa 120 mq posto al piano secondo ed ultimo di...
inserito il 30 dic 2025Zona Centro Storico : si affitta splendido ristorante in contesto di palazzo storico. Il locale a richiesta viene concesso in locazione completamente arredato. Per maggiori informazioni 328/3266299 ....
inserito il 30 dic 2025L'Immobiliare Unika propone in locazione a Porto San Giorgio, zona sud, nei pressi del Centro Commerciale Oasi, locale commerciale di circa 190 mq, con h di circa 3,40 mt e corte antistante. Dotato...
inserito il 30 dic 2025Qualiano zona centralissima Corso Campano, proponiamo in affitto un ampio negozio con due serrande fronte strada con ottima visibilit. L'immobile si trova al piano terra di un edificio e dispone di...
inserito il 30 dic 2025Ufficio in affitto a Qualiano Disponibile in una traversa di Via Fratelli Rosselli, nei pressi del Municipio, un ufficio situato al piano rialzato, composto da: Sala d'attesa all'ingresso Due uffici...
inserito il 30 dic 2025UFFICIO IN AFFITTO - VIA ROSELLI, QUALIANO Situato nella centralissima e prestigiosa Via Rosselli, proponiamo in affitto un ampio e luminoso ufficio al terzo piano di un edificio esclusivo, destinato...
inserito il 30 dic 2025Locale artigianale in affitto a Qualiano di 150 mq. Il Locale situato in Via San Francesco A Patria ed composto da un unico ampio ambiente aperto con zona bagni (uomo e donna separati) e zona uffici....
inserito il 30 dic 2025Ariccia via delle Cerquette, di fronte l'Ospedale L. Spolverini, proponiamo il locazione uffico in coworking, di mq 8, sito all'interno di un attivit commerciale ben avviata di Poste Private(che si...
inserito il 30 dic 2025Qualiano zona centralissima nei pressi di Piazza Kennedy, proponiamo in affitto un ampio negozio con due serrande fronte strada situato nei pressi di Piazza Kennedy e Chiesa Santo Stefano ....
inserito il 30 dic 2025Locale deposito in affitto a Qualiano zona centralissima fronte strada, nelle immediate adiacenze del Corso Campano disponiamo ampio locale C/2 di 250 mq circa composto da un unico ambiente....
inserito il 30 dic 2025Giugliano via S- Nullo a pochi k m uscita tangenziale Licola e dalla Rotonda Maradona, proponiamo in locazione al secondo piano di uno stabile un ampio locale commerciale open space di 200 mq circa,...
inserito il 30 dic 2025Pozzuoli immediate adiacenze Corso campano , Parziale legnami, uffici inps e tangenziale , proponiamo in affitto un ampio terreno completamente pianeggiante di 6.675 mq circa. Questo terreno...
inserito il 30 dic 2025Locale commerciale in affitto a Qualiano fronte strada nei pressi di via Di Vittorio disponiamo ampio locale C/1 di 40 mq circa composto da 1 unico ambiente. Il locale si presenta in buono stato con...
inserito il 30 dic 2025Locale commerciale artigianale (C/3) sia in affitto che in vendita a Giugliano in Campania a Via Colonne a 300 mt dalla metropolitana il cespite in oggetto ha un' ampia metratura di 309 mq suddiviso...
inserito il 30 dic 2025Capannone artigianale in affitto Giugliano in Campania nelle adiacenze della Chiesa Annunziata disponiamo capannone di 200 mq con altezza di 10 mt. Inoltre a pochi passi dal capannone disponiamo di...
inserito il 30 dic 2025Ampio trilocale senza balcone, parzialmente arredato, primo piano, composto da: ingresso, soggiorno, cucina abitabile, due camere matrimoniali, bagno. Completa la propriet il solaio. Le spese...
inserito il 30 dic 2025Proponiamo in locazione negozio in contesto commerciale a San Vito al Tagliamento. Ubicato in un punto strategico vicino al centro del paese, il negozio si palesa alla vista di tantissimi passanti....
inserito il 30 dic 2025SARONNO: CENTRO Sezionnecasa affitta centralissimo locale commerciale con tre ingressi e cinque vetrine, oltre soppalco!! La soluzione cosi disposta: ingresso, ampio locale open-space, con tripla...
inserito il 30 dic 2025BUSTO ARSIZIO - CORSO ITALIA Prestigiosa soluzione commerciale di ampia metratura in vendita o locazione di c.a. 315 mq con vetrine fronte strada e posti auto privati! Nel cuore pulsante di Busto...
inserito il 30 dic 2025SARONNO: CENTRO PEDONALE Nel centro di Saronno, in contesto signorile, Sezionecasa propone in locazione, locale ad uso commerciale, disposto su due livelli e con due ampie vetrine, la soluzione cos...
inserito il 30 dic 2025SARONNO: CORSO ITALIA Sezionecasa affitta in centro pedonale, locale condiviso a uso ufficio, con reception, sala riunioni oltre servizio. LIBERO SUBITO - SOLO REFERENZIATI!!! Per ulteriori...
inserito il 30 dic 2025SARONNO: CENTRO In contesto signorile, Sezionecasa affitta ampio appartamento su due livelli: piano secondo con ingresso, cucina abitabile, luminoso soggiorno doppio con camino, camera matrimoniale...
inserito il 30 dic 2025SARONNO: In zona ben servita da FNM e comodo con tutti i servizi, In signorile contesto, Sezionecasa affitta locale oltre servizi a uso ufficio. Spese condominiali e riscaldamento compresi nel...
inserito il 30 dic 2025A ridosso di Piazza Garibaldi e a pochi metri dalla stazione della Circumvesuviana, l'agenzia Triade Immobiliare propone in affitto locale commerciale composto da un vano al piano terra con soppalco...
inserito il 30 dic 2025All'interno del villaggio Vesuvio , l'agenzia Triade Immobiliare propone in locazione locale ad uso deposito con una superficie di 150 mq. L'immobile dotato di due ingressi ad angolo tra due strade...
inserito il 30 dic 2025In zona centrale e a pochi metri dalla stazione della Circumvesuviana, l'agenzia Triade Immobiliare propone in locazione studio ubicato in un contesto signorile. L'immobile composto da una sala...
inserito il 30 dic 2025Sulla principale strada commerciale di S.Giuseppe ves.no , l'agenzia Triade Immobiliare propone in affitto porzione di studio composta da un ampio vano e una piccola sala reception. Sono in...
inserito il 30 dic 2025Al centro di Ottaviano e precisamente piazza Duca D'Aosta , l'agenzia Triade Immobiliare propone in affitto un locale commerciale con una superficie interna utile di 220 mq. Il locale dotato di tre...
inserito il 30 dic 2025Sulla principale strada commerciale di Ottaviano (NA) , l'agenzia Triade Immobiliare propone in affitto locale commerciale con una superficie di 50 mq. Il locale in ottimo stato manutentivo ed dotato...
inserito il 30 dic 2025L'agenzia Triade Immobiliare propone in affitto attico posto al secondo piano con circostante terrazzo di 350 mq. L'immobile composto da cucina, salone, due camere da letto , due bagni e due posti...
inserito il 30 dic 2025Monterotondo Stanza ad uso ufficio polifunzionale . Proponiamo in locazione una stanza ad uso ufficio , adatta a qualsiasi professionista . La stanza privata si sviluppa su circa 20 mq ed compresa di...
inserito il 30 dic 2025Sulla principale arteria commerciale del comune di Ottaviano (NA), l'agenzia Triade Immobiliare propone in affitto locale commerciale con una superficie interna utile di 600 mq. Il locale gode di un'...
inserito il 30 dic 2025Sul corso principale l'agenzia Triade Immobiliare propone in vendita locale commerciale di circa 65mq .Per ulteriori informazioni potete contattarci chiamando allo 0815289859 visitare il nostro sito...
inserito il 30 dic 2025L'agenzia Triade Immobiliare propone in affitto locale uso deposito di circa 120mq.Per ulteriori informazioni potete contattarci chiamando allo 0815289859 visitare il nostro sito...
inserito il 30 dic 2025L'agenzia Triade Immobiliare propone in affitto locale commerciale sulla principale strada commerciale di Ottaviano (NA) . L'immobile ha una superficie di circa 70mq ed dotato di un doppio ingresso...
inserito il 30 dic 2025In piazza proponiamo in affitto locale commerciale di circa 30 mq con retrostante bagno .Per ulteriori informazioni potete contattarci chiamando allo 0815289859 visitare il nostro sito...
inserito il 30 dic 2025Sul principale Corso Umberto e a pochi metri dai principali servizi del comune di Ottaviano , proponiamo in affitto di locale commerciale di circa 40mq con sottostante cantina . Per ulteriori...
inserito il 30 dic 2025In centro, disponiamo in vendita di locale commerciale di 110 mq con quattro vetrine fronte strade, cantina sottostante di 20mq.Per ulteriori informazioni potete contattarci allo 0815289859 oppure...
inserito il 30 dic 2025Villaricca Corso Italia con doppio accesso anche da Via Palermo proponiamo in vendita terreno pianeggiante di 2000 mq con possibilit di altri 1000 mq in zona F di realizzo strutture sportive. E' ben...
inserito il 30 dic 2025Villaricca, proponiamo in affitto capannone artigianale di 135 mq con annessa documentazione regolare e agibilit. Il locale dispone di ingresso con spazio antistante di 60 mq. La struttura si trova...
inserito il 30 dic 2025Giugliano in Campania ad.za Supermercato MO disponiamo in affitto terreno recintato con pedana di cemento per solo uso deposito di 2000 mq. La soluzione ubicata nelle prossimit di asse mediano e c.ne...
inserito il 30 dic 2025L'agenzia Triade Immobiliare propone in affitto immobile posto al piano terra utilizzabile come studio/ufficio. Il locale ha una superficie interna utile di circa 60 mq ed ubicato in una posizione...
inserito il 30 dic 2025L'agenzia Triade Immobiliare propone in affitto stabile commerciale da poter sfruttare come opificio, deposito e/o locale produttivo. Lo stabile dotato di regolare licenza edilizia ed composto da un...
inserito il 30 dic 2025L'agenzia Triade Immobiliare propone in affitto locale commerciale sito al piano terra di 40 mq con corte laterale in comune.Per ulteriori informazioni potete contattarci chiamando allo 0815289859...
inserito il 30 dic 2025PISTA NUOVA - ALESSANDRIA (AL): Nei pressi di zona pista si propone magazzino di ampia metratura, possibilit acquisto o locazione. Presente un ingresso privato con un parcheggio ampio davanti...
inserito il 30 dic 2025Negozio in affitto a Bassano del Grappa, in centro storico. Su via di passaggio pedonale e vicino alle piazze. In buone condizioni, Climatizzato.
inserito il 30 dic 2025Capannone in affitto a Treviso in zona Viale della Repubblica - Strada Ovest. Si tratta di capannone ottimo come magazzino, deposito, per lavorazioni. Ha 4 ingressi accessi con portone, ed uno spazio...
inserito il 30 dic 2025Locale commerciale negozio in affitto a Bassano del Grappa, centro storico. Posizione centrale su una delle principali via commerciali-pedonali-carrabili del centro storico. Si dispone al piano...
inserito il 30 dic 2025Rif, CBI073-604-130016 affittasi cantina 20 mq con due finestre piano s1
inserito il 30 dic 2025Rif.CBI073-1367-129886- Nel quartiere Pinciano, in posizione strategica e facilmente raggiungibile, nelle immediate vicinanze di Piazza Verdi, Via Giovanni Paisiello, Via Mercadante e Villa Borghese,...
inserito il 30 dic 2025Rif. CBI073-1367-129869 - PIAZZALE FLAMINIO - In Via Flaminia all'altezza del Ministero della Marina e di Piazzale Flaminio, la Coldwell Banker propone in esclusiva un elegante ufficio di...
inserito il 30 dic 2025San Vendemiamo affittiamo capannone disponibile da subito di mq 500 con uffici e parcheggio esterno
inserito il 30 dic 2025Fondo a destinazione commerciale e direzionale, realizzato fronte strada, con rifiniture di ottimo livello. Affittasi unit immobiliare ad uso commerciale/direzionale di circa 110 mq. lordi, utili...
inserito il 30 dic 2025Fondo a destinazione commerciale e direzionale, ubicato in edificio realizzato fronte strada, ma ubicato sul retro con rifiniture di ottimo livello. Affittasi unit immobiliare ad uso...
inserito il 30 dic 2025Locale commerciale negozio in affitto a Bassano del Grappa. Posizione centrale su una delle principali via commerciali-pedonali-carrabili del centro storico. Si dispone tutto al piano terra, poi ci...
inserito il 30 dic 2025Ufficio moderno in affitto a Castelfranco Veneto. In ottime condizioni. Buona visibilit. Ampio parcheggio.
inserito il 30 dic 2025Locale commerciale o ristorante in affitto a Bassano del Grappa. Su strada di grande passaggio veicolare. Il locale ha parcheggi adiacenti. Grande visibilit grazie alle ampie vetrine. Il negozio di...
inserito il 30 dic 202538AA 2030 GAGGIANO CENTRO adicenze Poste Italiane cediamo in locazione negozio commerciale plurivetrine disposto su due livelli canone annuo 12.000,00
inserito il 30 dic 2025Ascoli Piceno in via del Commercio, in centro direzionale, ufficio di mq 118 circa posto al piano secondo con ascensore, suddiviso internamente da ingresso-disimpegno, quattro locali ufficio, due...
inserito il 30 dic 2025Negozio in affitto in centro a Castelfranco Veneto, posizione centrale sotto i portici, con pi vetrine. Grande visibilit. Impiantistica funzionante. Area a magazzino.
inserito il 30 dic 2025A Mirano, proponiamo in affitto negozio da ristrutturare. L'immobile presenta 4 vetrine e ha al suo interno 2 bagni. Il negozio dotato di impianto di riscaldamento e raffreddamento canalizzato, da...
inserito il 30 dic 2025Ascoli Piceno, in palazzo di pregio a pochi passi da Piazza Arringo, caratteristico ufficio di mq 60 circa sito al piano primo con ascensore, completamente ristrutturato con volte reali in pietra a...
inserito il 30 dic 2025CAMPO PARIGNANO. Ufficio di 240 mq circa completamente ristrutturato disposto su due livelli. Al primo livello 4 vani di cui uno molto ampio, al secondo altri quattro vani, due ripostigli e due...
inserito il 30 dic 2025Ascoli Piceno, zona centralissima, nei pressi di Piazza del Popolo, con elevatissimo transito pedonale, affittasi locale commerciale di mq. 37 circa, oltre piano sottostrada di mq 18 circa, sito al...
inserito il 30 dic 2025Ascoli Piceno, centro storico, palazzo storico completamente ristrutturato di recente sia esternamente che internamente, a poca distanza dal tribunale, ufficio con volte reali a vista di mq. 135...
inserito il 30 dic 2025Ascoli Piceno, in via del Commercio, esclusivo ufficio di mq. 30, sito al primo piano con ascensore, piy bagno a norma. Ideale per studio professionale.
inserito il 30 dic 2025Ascoli Piceno, in via del commercio, locale commerciale di mq. 200 circa, di recente costruzione, sito al piano terra con quattro vetrine. Ideale per qualsiasi attivit commerciale.
inserito il 30 dic 2025
Ascoli Piceno, centro storico, in palazzo e in posizione di pregio, ufficio posto al primo piano, con doppio ingresso di mq 150, ottime condizioni.
inserito il 30 dic 2025Ascoli Piceno, centro storico, splendido e caratteristico locale con volte reali di mq 120 circa, possibilit di soppalcare una parte del locale, ideale per ristorante/pizzeria o pub. Possibilit di...
inserito il 30 dic 2025Ascoli Piceno, in posizione centralissima a pochi passi da Piazza del Popolo, appartamento di mq 70 circa ammobiliato con ascensore, cosl composto: ingresso/soggiorno con angolo cottura, camera...
inserito il 30 dic 2025Ascoli Piceno, in posizione centralissima a pochi passi da Piazza del Popolo, splendido attico di mq 70 circa ammobiliato con ascensore, cosl composto: ingresso/soggiorno con angolo cottura, camera...
inserito il 30 dic 2025Ascoli Piceno, locale commerciale di mq 500 circa, in posizione centralissima con alta visibilit, con vetrine fronte strada.
inserito il 30 dic 2025Luminoso appartamento in affitto al secondo piano di un edificio servito da ascensore, situato nel cuore di Francavilla al Mare, apochi passi dal mare. La sua posizione strategica permette di...
inserito il 30 dic 2025Il locale commerciale e' ubicato in Chieti zona via Federico Salomone,fronte strada, composto da due vani, ideali per ospitare una variet di attivit commerciali come negozi, uffici o studi...
inserito il 30 dic 2025Proponiamo in affitto in Chieti Scalo, zona via Pescara a due passi dall'universita' Gabriele D'Annunzio, attivita' commerciali e uffici di vario genere, tra cui Poste italiane centrali, locale...
inserito il 30 dic 2025L'immobile in questione un locale commerciale fronte strada situato nella zona di Chieti Scalo, via dei Vestini a due passi dall'universita' Gabriele D'Annunzio e Ospedale, ideale per avviare la...
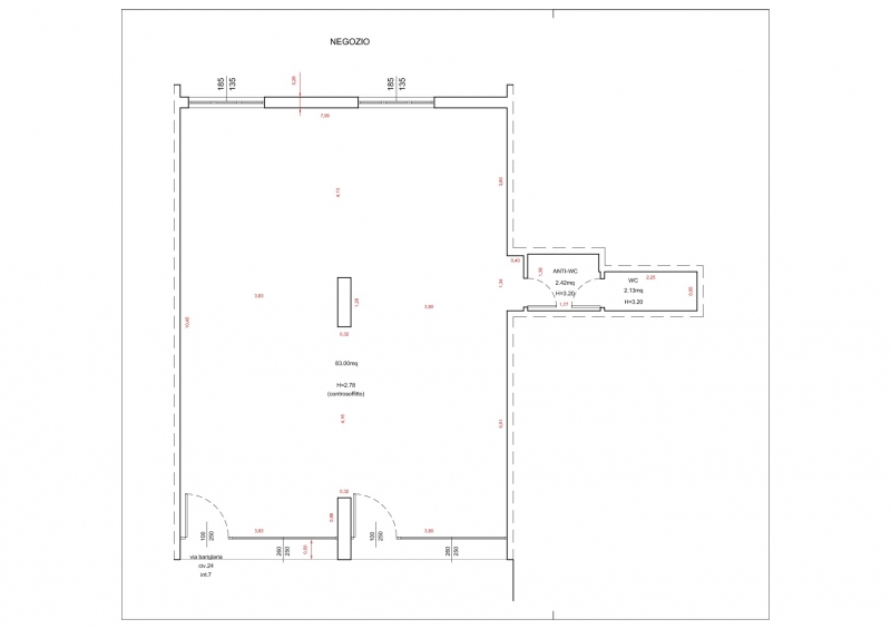
inserito il 30 dic 2025In zona Alanno Scalo, nelle vicinanze dell'ingresso autostradale, proponiamo in affitto un locale commerciale al piano terra di uno stabile di recente costruzione, con una superficie totale di 83...
inserito il 30 dic 2025Mediaffitti affitta locale commerciale di mq. 90 c.ca in buona posizione di passaggio , in Sambuceto via Aldo Moro, vicino ingresso asseattrezzato e attivita' commerciali, composto da unico vano e...
inserito il 30 dic 2025Mediaffitti propone in locazione locale commerciale fronte strada,di mq. 98 circa, in Montesilvano, inizio via Vestina , ottima zona di passaggio,composto da unico vano e servizio, due vetrine luce....
inserito il 30 dic 2025Mediaffitti affitta locale di nuova costruzione, al piano terra di un capannone, in zona Chieti alta nel Complesso Commerciale Centauro, composto da 4 vani, piccolo magazziono, corridoio e servizio....
inserito il 30 dic 2025MEDIAFFITTI promuove in locazione appartamento in complesso condominiale con rifiniture di prestigio. L'appartamento e' posizionato al 4° piano di un condominio, munito di ascensore , composto da:...
inserito il 30 dic 2025MEDIAFFITTI affitta in Chieti Scalo a due passi dall'Universita' Gabriele D'Annunzio, appartamento al primo piano di un condominio composto da: ingresso, piccolo soggiorno con angolo cottura, camera...
inserito il 30 dic 2025MEDIAFFITTI affitta appartamento in Chieti Scalo di nuova costruzione, a due passi Dall'Universita' Gabriele D'Annunzio, composto da: ingresso, soggiorno con angolo cottura, camera matrimoniale,...
inserito il 30 dic 2025MEDIAFFITTI affitta in Chieti Scalo zona Ciapi, vicino a negozi, centri commerciali, scuole e mezzi di trasporto, appartamento al secondo piano di un condominio composto da: ingresso, sala, cucina...
inserito il 30 dic 2025MEDIAFFITTI affitta appartamento in Chieti Scalo via Benedetto Croce , al secondo piano di un piccolo condominio, con ingresso indipendente. L'appartamento e' composto da: ingresso soggiorno con...
inserito il 30 dic 2025MEDIAFFITTI affitta in Castellana( Pianella) locale commerciale di nuova costruzione di mq. 300 c.ca in ottima posizione centrale, composto da tre vani, servizi, tre vetrine luce; seminterrato...
inserito il 30 dic 2025MEDIAFFITTI affitta appartamento ristrutturato al 4° piano di un condominio, in zona centro Chieti Scalo a due passi dalla stazione dei treni, composto da: ingresso, cucina, sala, due camere ,...
inserito il 30 dic 2025MEDIAFFITTI affitta in Chieti Scalo zona industriale, vicino ingresso asse-attrezzato, all'interno di una struttura commerciale con ampia area di parcheggi esterni, appartamento uso ufficio al primo...
inserito il 30 dic 2025MEDIAFFITTI affitta in Chieti Scalo in via Gissi,traversa di via Pescara a due passi dall'Universita' Gabriele D'Annunzio e vicino a negozi, farmacie, centri commerciali,mezzi di trasporti, ecc......
inserito il 30 dic 2025
MEDIAFFITTI affitta in Chieti Scalo (CH), via Pescara , a due passi dall'universita' Gabriele D'annunzio, al piano terzo di un condominio di nuova costruzione denominato "Residence D'Annunzio",...
inserito il 30 dic 2025