Preferiti

Sponsorizza

Stampa

Villa in vendita a Jesi in via carlo rosselli 20 - prato - stazione

  • 168.000€
  • zona prato - stazione
  • 16 locali
  • 372 mq
  • Vendesi

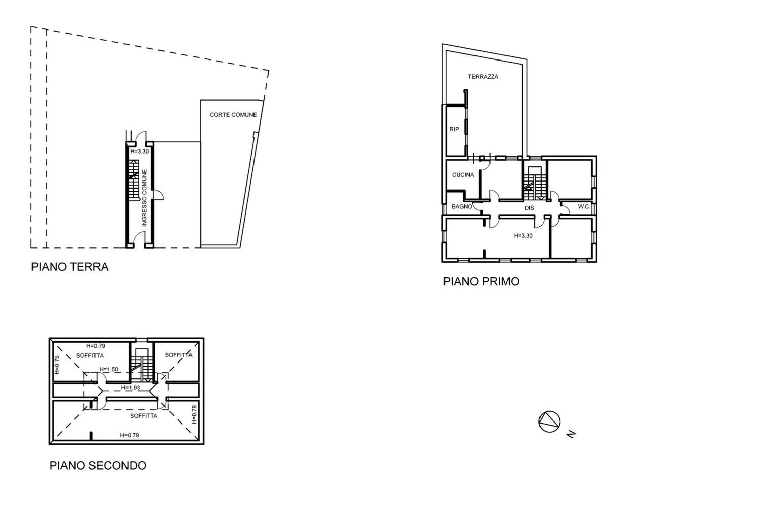
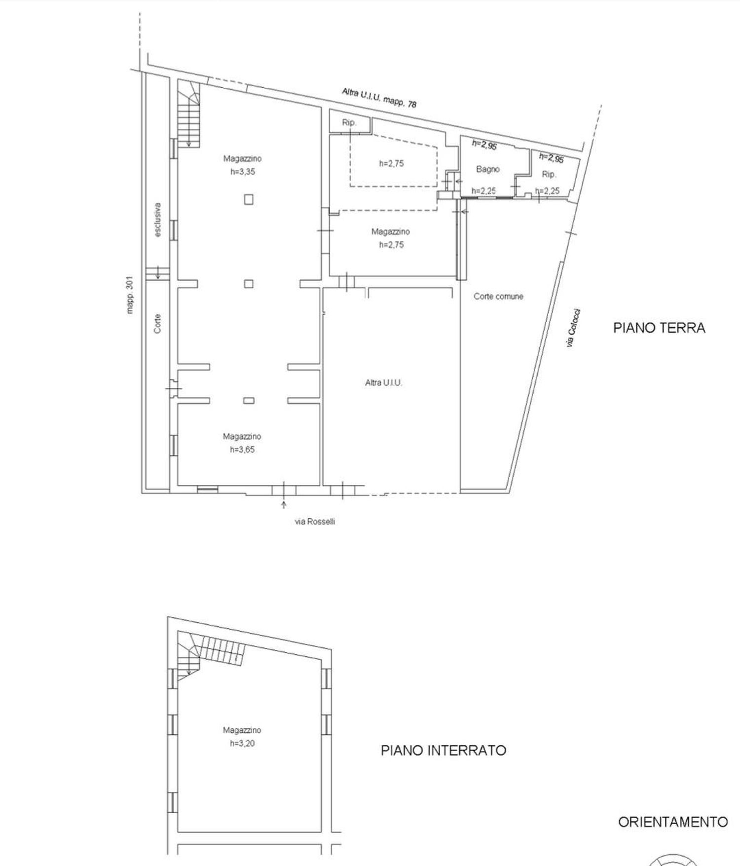
In zona altamente servita, proponiamo in vendita casa singola avente 2 appartamenti, 1 magazzino con corte esclusiva comune ai 3 subalterni.
Facilmente gestibile come unica proprietà, anche con fusione catastale se necessario.
Perfetta per un nucleo familiare numeroso o per genitori - figli.
La posizione a ridosso del centro storico e alle vie ingresso e di uscita dalla città, la rende particolarmente interessante anche per realizzare struttura ricettiva di affitta camere o B&B. sfruttando sia la corte al piano terra sia l'ampia terrazza del piano primo lato soggiorno.
Gli accessori esterni si prestano ottimamente per spazi ricreativi, colazione, aperitivi e cene all'***.*******.** casa in parte abitabile, necessita di ristrutturazione.
Gli ambienti sono ampi e luminosi, con a disposizione una bella corte che si sviluppa su 2 lati della casa, cantine ampie, alte e ben areate, con volte in mattoni e muratura.
Disponibilità immediata. Contatta l'inserzionista

Fiordelmondo ImmobiliareFiordelmondo Immobiliare
Via XXIV Ma
60035, Jesi (Ancona)
Visualizza Telefono

INFORMAZIONI SULL'IMMOBILE

  • Riferimento: JEROSSBRANCH
  • Tipologia: Villa in Vendita
  • Locali: 16 Locali
  • Bagni: 3
  • Prezzo: 168.000 €
  • Prezzo al mq: 452 €
  • Modificato il: 11/12/2025
  • Scheda: SC9515857

Stabile

  • Anno: 1920
  • Classe Energetica: n.d.

Mappa e indirizzo

Villa sito in via carlo rosselli 20
60035 Jesi (Ancona), zona prato - stazione
mappa mostra l'annuncio su mappa

Galleria Fotografica

Contatta l'inserzionista

Fiordelmondo Immobiliare

Fiordelmondo Immobiliare di Jesi propone in vendita questo immobile, contattali subito!

Annunci immobiliari a Jesi (AN)

Copyright Š 2026 PCase.it. All rights reserved. Sede operativa MILANO. P.IVA 08508420968 - Condizioni d'uso e privacy