Preferiti

Sponsorizza

Stampa

Villa in vendita con terrazzo a Diano Castello in via vicinale della valle regione santa lucia 15

  • 159.403€
  • 11 locali
  • 322 mq
  • Vendesi

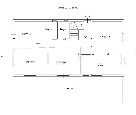
A) Villa singola della superficie commerciale di 322,48 mq. Il fabbricato si compone di una piano interrato e un sottotetto abitabile.
Il piano terra è composto da tre camere, sala, cucina e due bagni.
Il piano sottotetto è abitabile ma ancora in costruzione, privo di rifiniture ed è provvisto di un terrazzo.
B) Terreno agricolo, uliveto.
- Il Prezzo visualizzato è la Base d'Asta in quanto limmobile è oggetto di esecuzione immobiliare venduto tramite Asta Giudiziaria.
- L'immobile aggiudicato, viene venduto libero e sgombro da persone cose ed ipoteche nello stato di fatto e di diritto in cui si trova.
- Non rappresentiamo il Tribunale, ma lavoriamo nell'esclusivo interesse del potenziale acquirente per garantire un acquisto sicuro.
- I consulenti di ASTE ITALIA ti assisteranno in tutte le attività dell'iter giudiziario dalla visita dell'immobile fino alla consegna chiavi.
- Contatta il nostro Servizio Clienti , i nostri operatori sono a disposizione per chiarire i molteplici dubbi per partecipare alle ASTE. Contatta l'inserzionista

DOMY ONLINE S.R.L.DOMY ONLINE S.R.L.
Via San Lorenzo 5 Int. 41
16123, Genova (Genova)
Visualizza Telefono

INFORMAZIONI SULL'IMMOBILE

  • Riferimento: IM93/21LU-2205-26-16
  • Tipologia: Villa in Vendita
  • Locali: 11 Locali
  • Piano: Interrato
  • Stato: da Ristrutturare
  • Bagni: 2
  • Cucina: Abitabile
  • Prezzo: 159.403 €
  • Prezzo al mq: 495 €
  • Terrazzi: 1 - 20 Mq
  • Modificato il: 27/01/2026
  • Scheda: SC9422266

Stabile

  • Piano: Interrato
G

Mappa e indirizzo

Villa sito in via vicinale della valle regione santa lucia 15
18013 Diano Castello (Imperia)
mappa mostra l'annuncio su mappa

Galleria Fotografica

Contatta l'inserzionista

DOMY ONLINE S.R.L.

DOMY ONLINE S.R.L. di Genova propone in vendita questo immobile, contattali subito!

Annunci immobiliari a Diano Castello (IM)

Copyright Š 2026 PCase.it. All rights reserved. Sede operativa MILANO. P.IVA 08508420968 - Condizioni d'uso e privacy