Preferiti

Sponsorizza

Stampa

Villa in vendita con giardino a Montecarlo in via fornello

  • 520.000€
  • 5 locali
  • 270 mq
  • Vendesi

MONTECARLO frazione, in ottima posizione immersa nella campagna (ma non isolata) vendiamo bella villa edificata negli anni '70, ben tenuta e circondata da bellissimo giardino (con pozzo) e terreno ad uliveto per un totale di circa 12.000 mq. La casa si sviluppa principalmente al solo piano terra, che con una superficie di 180 mq offre ampie e luminose stanze.
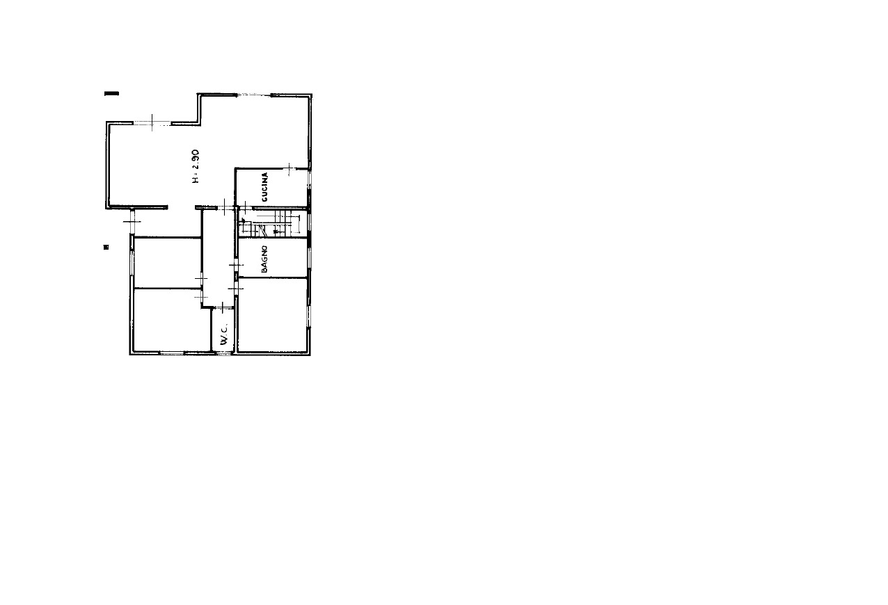
Dall'ingresso, si accede alla zona soggiorno pranzo con camino e loggiato, cucinotto, disimpegno per la zona notte, tre camere e due bagni.
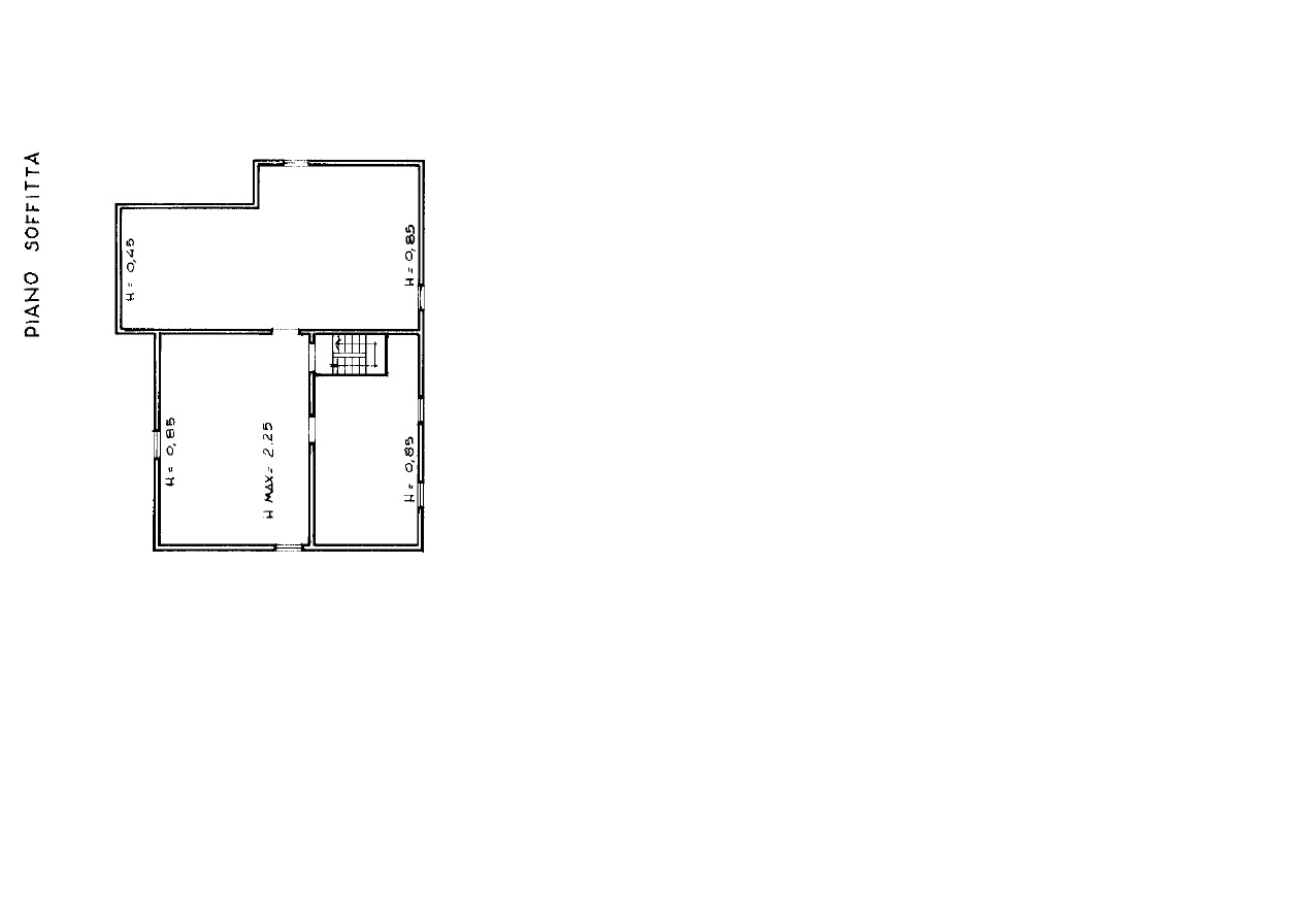
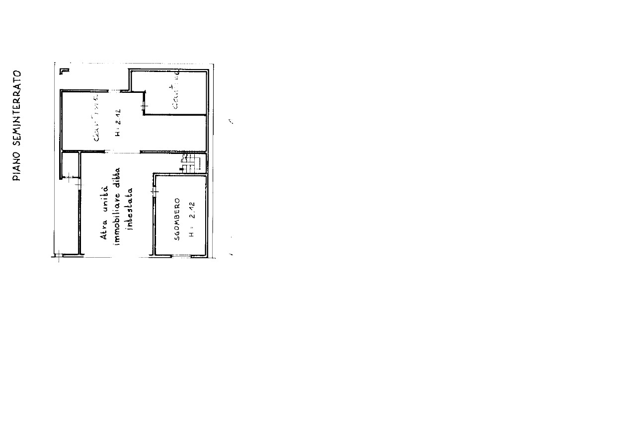
Tramite scala interna si accede al piano seminterrato dove troviamo un grande garage, un'ampia cantina, lavanderia e una taverna completamente arredata di cucina in muratura con forno (ideale per pranzi e cene con gli amici). Sempre tramite scale interne è possibile accedere alla grandissima soffitta, non abitabile, ma molto comoda per uso ripostiglio.
La villa è già abitabile, ma necessita di lavori di ammodernamento.
Bellissima zona per gli amanti della campagna Toscana! Contatta l'inserzionista

IMMOBILIARE MASTROMEIIMMOBILIARE MASTROMEI
Via Gavinana 41
55011, Altopascio (Lucca)

INFORMAZIONI SULL'IMMOBILE

  • Riferimento: 3568
  • Tipologia: Villa in Vendita
  • Locali: 5 Locali
  • Stato: Buono
  • Bagni: 3
  • Prezzo: 520.000 €
  • Prezzo al mq: 1.926 €
  • Riscaldamento: Autonomo
  • Giardino: Privato - 11000 Mq
  • Cantina: Si
  • Modificato il: 22/04/2026
  • Scheda: SC9407018

Stabile

  • Piani Totali: 3
G

Mappa e indirizzo

Villa sito in via fornello
55015 Montecarlo (Lucca)
mappa mostra l'annuncio su mappa

Galleria Fotografica

Contatta l'inserzionista

IMMOBILIARE MASTROMEI

IMMOBILIARE MASTROMEI di Altopascio propone in vendita questo immobile, contattali subito!

Annunci simili

Annunci immobiliari a Montecarlo (LU)

Copyright Š 2026 PCase.it. All rights reserved. Sede operativa MILANO. P.IVA 08508420968 - Condizioni d'uso e privacy