Preferiti

Sponsorizza

Stampa

Villa in vendita con giardino a Campi Bisenzio

  • 390.000€
  • 220 mq
  • Vendesi

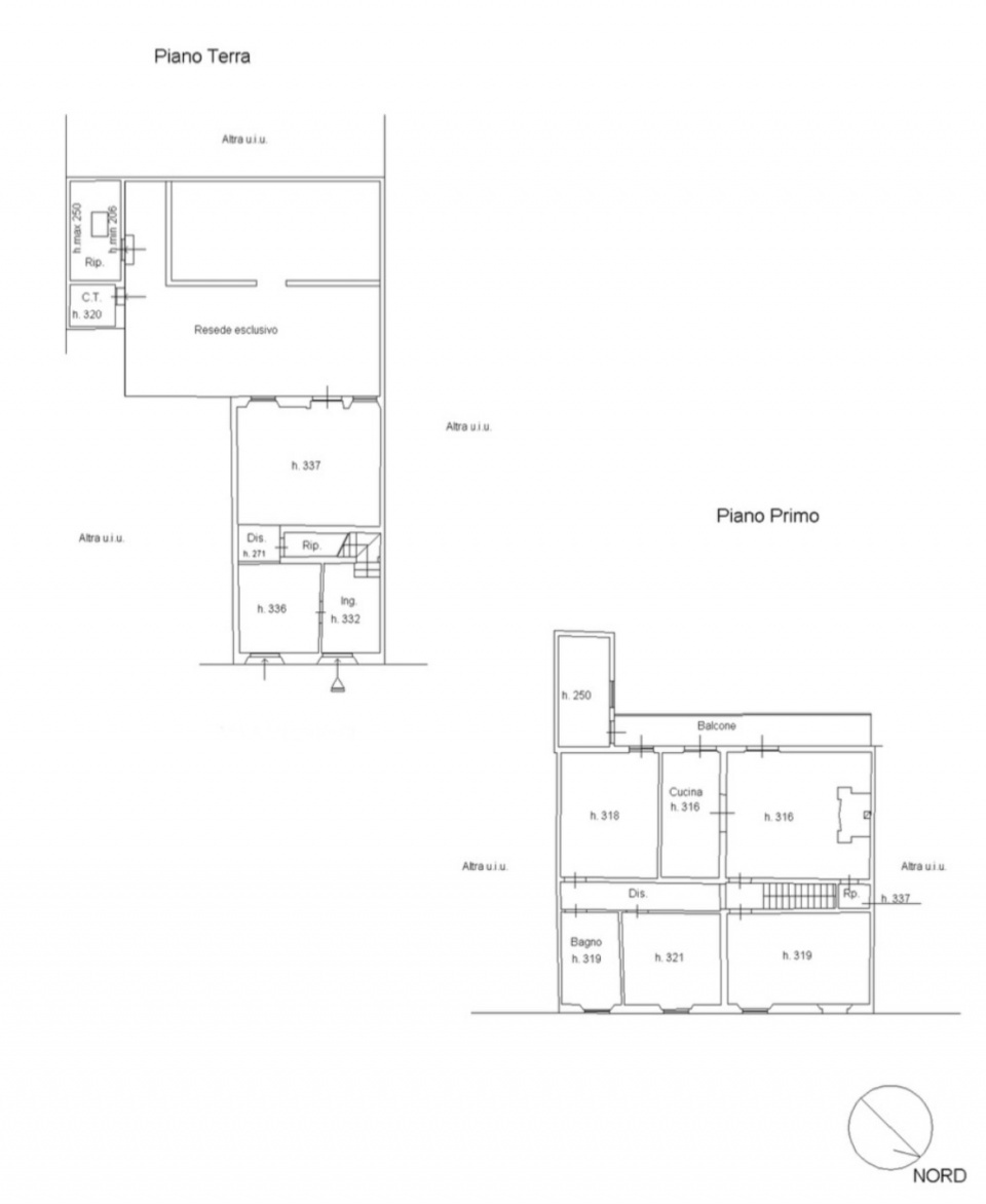
VILLINO A SCHIERA CON GIARDINO E LABORATORIO IN VENDITA A SAN PIERO A PONTI Campi Bisenzio, San Piero a Ponti, località San Cresci, in una strada tranquilla e vicino a tutti i servizi principali e ai mezzi pubblici, VENDESI VILLINO di 220 mq. Questa proprietà include un giardino tergale di 60mq ed un laboratorio di 60 mq. L'immobile dispone di due ingressi principali.
Al Piano Terra troviamo 2 stanze lasciate al grezzo con accesso al giardino tergale in parte lastricato in parte al verde con bagno e 2 locali a ripostiglio.
Sempre al piano terra, il laboratorio di 60 mq. con accesso indipendente e carrabile anche dalla strada, rendendolo ideale per attività professionali.
Il Primo Piano, raggiungibile tramite una comoda scala all'ingresso principale si apre su un disimpegno che conduce ad un luminoso grande soggiorno con camino e cucina abitabile con porte finestre che danno sul terrazzo che si affaccia sul giardino, fornito di un bagno/lavanderia finestrato.
La zona notte comprende un corridoio e tre ampie camere matrimoniali, oltre a un grande bagno finestrato con doccia doppia.
Completa la proprietà una soffitta e un ripostiglio.
L'immobile si presente in buone condizioni.
NON CI SONO SPESE CONDOMINIALI.
Prezzo richiesto 390.000 Contattaci per maggiori informazioni e per fissare un appuntamento per visitare l'immobile. Contatta l'inserzionista

FRA-MO IMMOBILIAREFRA-MO IMMOBILIARE
VIA PISTOIESE, 135
50058, Signa (Firenze)
Visualizza Telefono

INFORMAZIONI SULL'IMMOBILE

  • Riferimento: L1302_2
  • Tipologia: Villa in Vendita
  • Stato: Buono
  • Bagni: 3
  • Cucina: Abitabile
  • Prezzo: 390.000 €
  • Prezzo al mq: 1.773 €
  • Terrazzi: 1
  • Giardino: Privato - 60 Mq
  • Cantina: Si
  • Modificato il: 22/04/2026
  • Scheda: SC9507622

Stabile

  • Piani Totali: 1
G

Mappa e indirizzo

50013 Campi Bisenzio (Firenze)
mappa mostra l'annuncio su mappa

Galleria Fotografica

Contatta l'inserzionista

FRA-MO IMMOBILIARE

FRA-MO IMMOBILIARE di Signa propone in vendita questo immobile, contattali subito!

Annunci simili

Annunci immobiliari a Campi Bisenzio (FI)

Copyright Š 2026 PCase.it. All rights reserved. Sede operativa MILANO. P.IVA 08508420968 - Condizioni d'uso e privacy