Preferiti

Sponsorizza

Stampa

Ufficio in vendita a Lucca in via romana - est

  • 250.000€
  • zona est
  • 5 locali
  • 120 mq
  • Vendesi

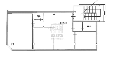
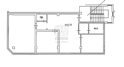
UF04011 - UFFICI RISTRUTTURATI IN POSIZIONE DI ALTA VISIBILITA' - Essegi Immobiliare propone in vendita fondo uso ufficio al piano primo ed ultimo di moderno edificio commerciale/direzionale ubicato su strada di grande passaggio e visibilità a 2 km dal centro di Lucca.
Gli uffici sono stati completamente ristrutturati tra il 2023 e il 2024, comprendendo l'installazione di pompa di calore ad alta efficienza energetica.
Superficie di 120 mq lordi, al momento così disposto: open space d'ingresso con zona di attesa, due uffici, antibagno-bagno, piccolo ripostiglio adibito a zona caffè/frigo, grande ufficio (divisibile) di rappresentanza.
Non ci sono spese condominiale, 3 posti auto in resede condominiale.
Dotato di allarme con video sorveglianza, completamente cablato.
Possibilità di acquisto completo di arredi.
Richiesta ? 250.000 N.B. : Si precisa che la localizzazione dellimmobile è approssimativa e non corrisponde allesatta ubicazione. Contatta l'inserzionista

Essegi Immobiliare S.r.l.Essegi Immobiliare S.r.l.
Viale Pacini 115
55100, Lucca (Lucca)
Visualizza Telefono

INFORMAZIONI SULL'IMMOBILE

  • Riferimento: UF04011
  • Tipologia: Ufficio in Vendita
  • Locali: 5 Locali
  • Piano: Primo
  • Stato: Ottimo
  • Bagni: 1
  • Prezzo: 250.000 €
  • Prezzo al mq: 2.083 €
  • Modificato il: 27/11/2025
  • Scheda: SC9506155

Stabile

  • Piano: 1
  • Classe Energetica: n.d.

Mappa e indirizzo

Ufficio sito in via romana
55100 Lucca (Lucca), zona est
Arancio, Ospedale-Stadio, San Filippo, San Marco
mappa mostra l'annuncio su mappa

Galleria Fotografica

Contatta l'inserzionista

Essegi Immobiliare S.r.l.

Essegi Immobiliare S.r.l. di Lucca propone in vendita questo immobile, contattali subito!

Annunci simili

Annunci immobiliari a Lucca (LU)

Copyright Š 2026 PCase.it. All rights reserved. Sede operativa MILANO. P.IVA 08508420968 - Condizioni d'uso e privacy