Preferiti

Sponsorizza

Stampa

Ufficio in affitto con posto auto scoperto a Modena

  • 2.500€
  • 225 mq
  • Affittasi

Per informazioni : 335/5336059.
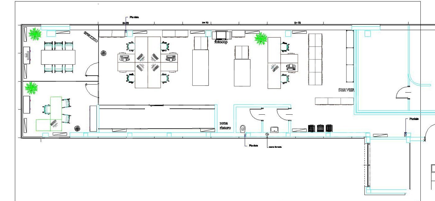
Proponiamo in locazione ampio e luminoso ufficio di circa mq 223 all'interno di un elegante contesto direzionale con Classe Energetica C L'ambiente open-space permette di utilizzare al meglio la superficie disponibile.
Eleganti pareti vetrate delimitano i due uffici direzionali presenti all' interno dei locali.
- I locali sono attualmente arredati e pertanto pronti all' usa nel caso ci fosse l'interesse ad insediarsi con gli attuali arredi.
In questo caso verr richiesta una quota mensile per l'utilizzo delle postazioni di lavoro e degli arredi . - I locali sono dotati di impianto di riscaldamento e di condizionamento centralizzato mediante fan-coil, con contabilizzatori di consumo.
- E' presente una rete cablata via cavo con server dedicato e Rack. - centralino telefonico digitale con 10 interni.
- Linea Ups Nella locazione compreso anche l'utilizzo di un comodo garage ed un posto auto al piano interrato del fabbricato . Spese condominiali annue di godimento euro 5000 circa comprensive di riscaldamento e condizionamento.
Si precisa che l'indirizzo indicato nell'annuncio non quello esatto ma puramente indicativo della zona. Contatta l'inserzionista

FASP SrlFASP Srl
Viale Pietro Gobetti 117
, Modena (Modena)
Visualizza Telefono

INFORMAZIONI SULL'IMMOBILE

  • Riferimento: 1503LocComACU
  • Tipologia: Ufficio in Affitto
  • Piano: Primo con ascensore
  • Stato: Ristrutturato
  • Prezzo: 2.500 €
  • Prezzo al mq: 11 €
  • Riscaldamento: Centralizzato
  • Spazio Auto: Posto auto scoperto
  • Modificato il: 17/04/2026
  • Scheda: SC9639176

Stabile

  • Piano: 1 su 2 totali
  • Ascensore: Si
  • Classe Energetica: n.d.

Mappa e indirizzo

41100 Modena (Modena)
Villaggio Giardino, Cognento, Cittanova, Baggiovara
mappa mostra l'annuncio su mappa

Galleria Fotografica

Contatta l'inserzionista

FASP Srl

FASP Srl di Modena propone in affitto questo immobile, contattali subito!

Annunci simili

Annunci immobiliari a Modena (MO)

Copyright Š 2026 PCase.it. All rights reserved. Sede operativa MILANO. P.IVA 08508420968 - Condizioni d'uso e privacy