Preferiti

Sponsorizza

Stampa

Ufficio in vendita da ristrutturare a Capannori - guamo

  • 99.000€
  • zona guamo
  • 140 mq
  • Vendesi

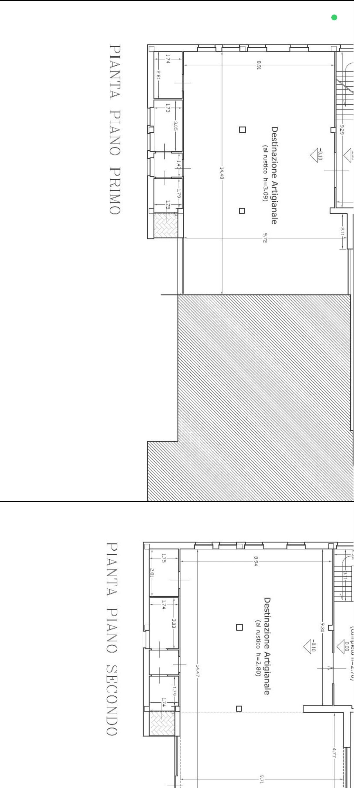
***.*******.** CF06 - GUAMO, ufficio di circa 150 mq posto al piano primo attualmente al grezzo diviso in unico vano con predisposizione per ricavare 1/2 bagni, corredato da 2 posti auto esclusivi, con possibilita' di realizzare ascensore.
Situato in una posizione strategica, questo ufficio rappresenta un'opportunità unica per chi cerca uno spazio funzionale e versatile sia per uso lavorativo sia per investimento.
Possibilita' di acquistare anche il secondo piano identico e sempre nelle stesse condizioni, con 2 posti auto esclusivi.
esente al momento da classe energetica non avendo ancora impianto di luce e acqua, Si precisa che l'indirizzo pubblicato nell'annuncio non corrisponde all'esatta geolocalizzazione dell'immobile, preghiamo quindi di contattarci telefonicamente o via email per avere informazioni più dettagliate.
Riferimento CF06 Contatta l'inserzionista

CasaInRealEstateCasaInRealEstate
Via Pesciatina, 42
, Capannori (Lucca)
Visualizza Telefono

INFORMAZIONI SULL'IMMOBILE

  • Riferimento: 1386124/2118/CF06
  • Tipologia: Ufficio in Vendita
  • Piano: Primo
  • Stato: da Ristrutturare
  • Prezzo: 99.000 €
  • Prezzo al mq: 707 €
  • Modificato il: 18/02/2026
  • Scheda: SC9604837

Stabile

  • Piano: 1 su 2 totali
  • Classe Energetica: n.d.

Mappa e indirizzo

55012 Capannori (Lucca), zona guamo
mappa mostra l'annuncio su mappa

Galleria Fotografica

Contatta l'inserzionista

CasaInRealEstate

CasaInRealEstate di Capannori propone in vendita questo immobile, contattali subito!

Annunci simili

Annunci immobiliari a Capannori (LU)

Copyright Š 2026 PCase.it. All rights reserved. Sede operativa MILANO. P.IVA 08508420968 - Condizioni d'uso e privacy