Preferiti

Sponsorizza

Stampa

Ufficio in affitto a Udine

  • 900€
  • 5 locali
  • 150 mq
  • Affittasi

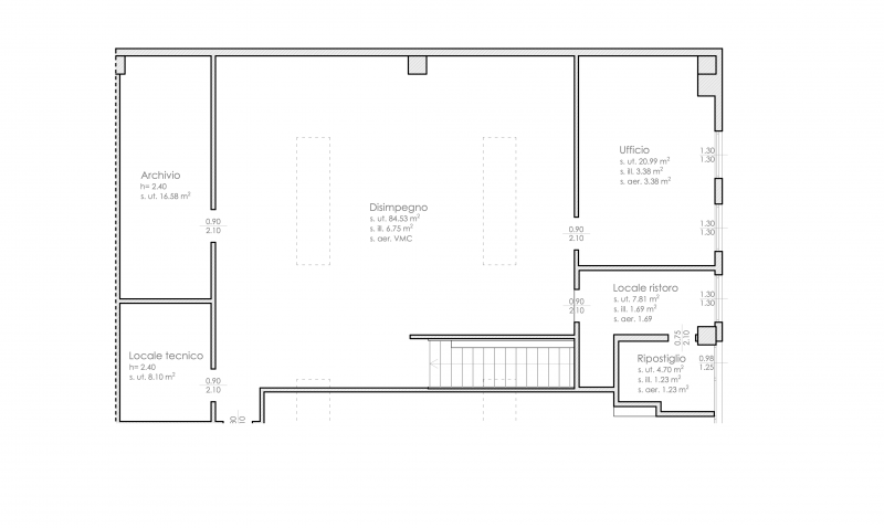
L'immobile si trova al primo piano in zona commerciale su strada di scorrimento ed è così composto: ingresso autonomo, ampia zona open space, uffici separati, ripostiglio, servizi igienici con antibagno.
Interni con ottima luce naturale, un lato interamente finestrato e lucernai sul soffitto.
Grande parcheggio destinato all'attività. Spese condominiali 50 Euro al mese comprensive di amministrazione, illuminazione e manutenzione degli spazi comuni.
Si affitta da persona fisica con contratto 6+6 senza IVA. Metrature: 150 mq di ufficio al primo piano.
Caratteristiche: parcheggio libero, termoautonomo, climatizzato, ventilazione forzata, infissi con vetrocamera, accessibile a portatori di disabilità. APE in fase di definizione. Contatta l'inserzionista

Immobigo srlImmobigo srl
Via Nazionale )
33010, Tavagnacco (Udine)
Visualizza Telefono

INFORMAZIONI SULL'IMMOBILE

  • Riferimento: 2808
  • Tipologia: Ufficio in Affitto
  • Locali: 5 Locali
  • Piano: Primo
  • Stato: Buono
  • Prezzo: 900 €
  • Prezzo al mq: 6 €
  • Spese: 600,00 € (annuali)
  • Riscaldamento: Autonomo
  • Modificato il: 04/05/2026
  • Scheda: SC9619662

Stabile

  • Piano: 1 su 2 totali
  • Portineria: No
  • Classe Energetica: n.d.

Galleria Fotografica

Contatta l'inserzionista

Immobigo srl

Immobigo srl di Tavagnacco propone in affitto questo immobile, contattali subito!

Annunci immobiliari a Udine (UD)

Copyright Š 2026 PCase.it. All rights reserved. Sede operativa MILANO. P.IVA 08508420968 - Condizioni d'uso e privacy