Preferiti

Sponsorizza

Stampa

Ufficio in affitto a Udine

  • 2.500€
  • 3 locali
  • 350 mq
  • Affittasi

Locale commerciale nei pressi del Duomo di Udine.
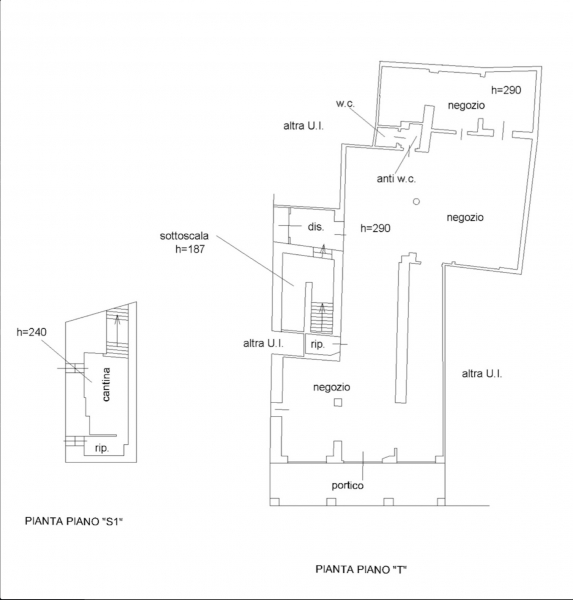
Si propone in locazione locale commerciale di circa 350mq con fronte vetrinato con tre grandi vetrine.
Attualmente l'immobile è al grezzo avanzato ed è possibile personalizzarlo in base alle proprie necessità. Spese condominiali Euro 50/mese. Il locale è usufruibile da subito.
Metrature: Piano terra 340mq, cantina 10mq. Altezza interna 2,90m. Certificazione energetica Classe E. Ulteriori informazioni presso i nostri uffici. Contatta l'inserzionista

Immobigo srlImmobigo srl
Via Nazionale )
33010, Tavagnacco (Udine)
Visualizza Telefono

INFORMAZIONI SULL'IMMOBILE

  • Riferimento: 2707
  • Tipologia: Ufficio in Affitto
  • Locali: 3 Locali (2 camere)
  • Prezzo: 2.500 €
  • Prezzo al mq: 7 €
  • Spese: 600,00 € (annuali)
  • Cantina: Si
  • Modificato il: 23/04/2026
  • Scheda: SC9612375

Stabile

  • Piani Totali: 3
  • Portineria: No
E

Galleria Fotografica

Contatta l'inserzionista

Immobigo srl

Immobigo srl di Tavagnacco propone in affitto questo immobile, contattali subito!

Annunci immobiliari a Udine (UD)

Copyright Š 2026 PCase.it. All rights reserved. Sede operativa MILANO. P.IVA 08508420968 - Condizioni d'uso e privacy