Preferiti

Sponsorizza

Stampa

Appartamento in vendita a Gabicce Mare

  • 400.000€
  • 3 locali
  • 86 mq
  • Vendesi

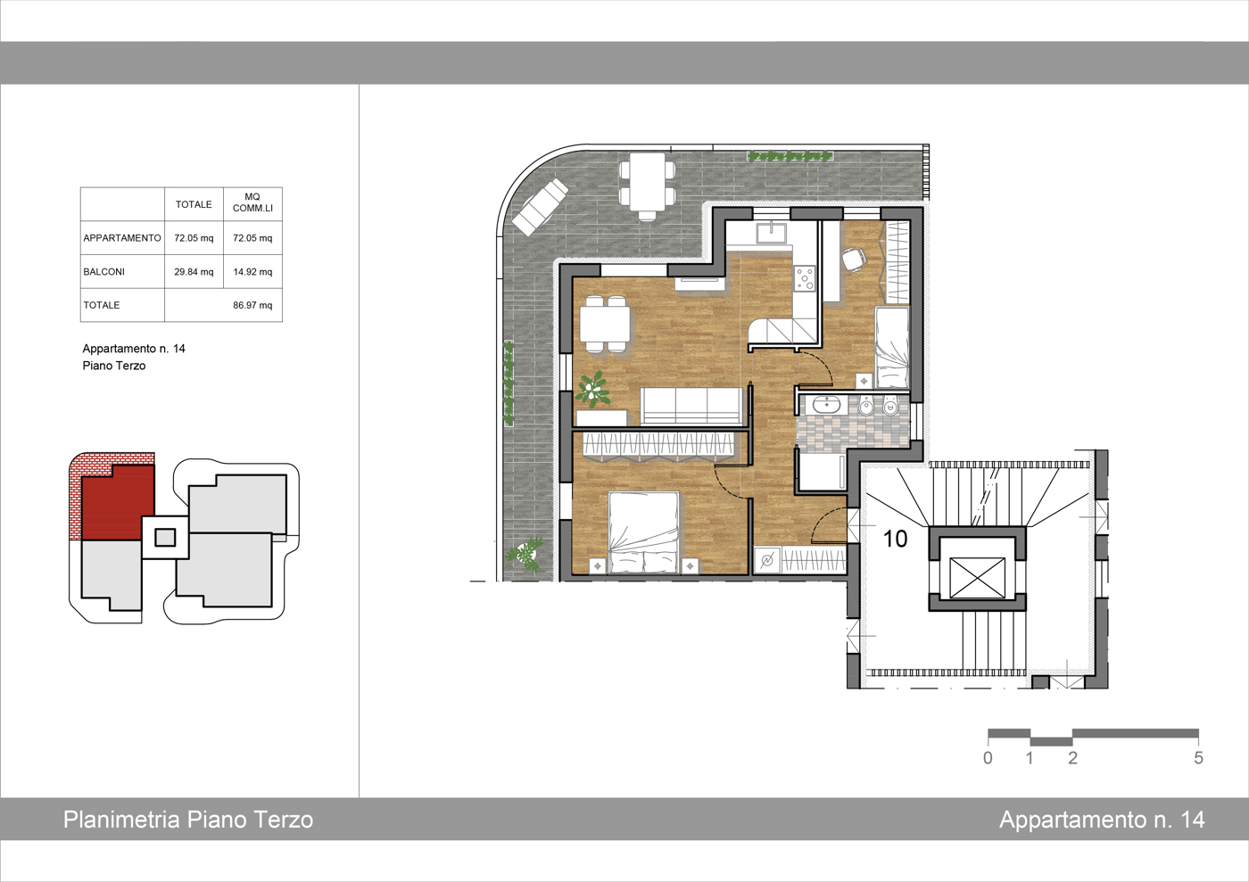
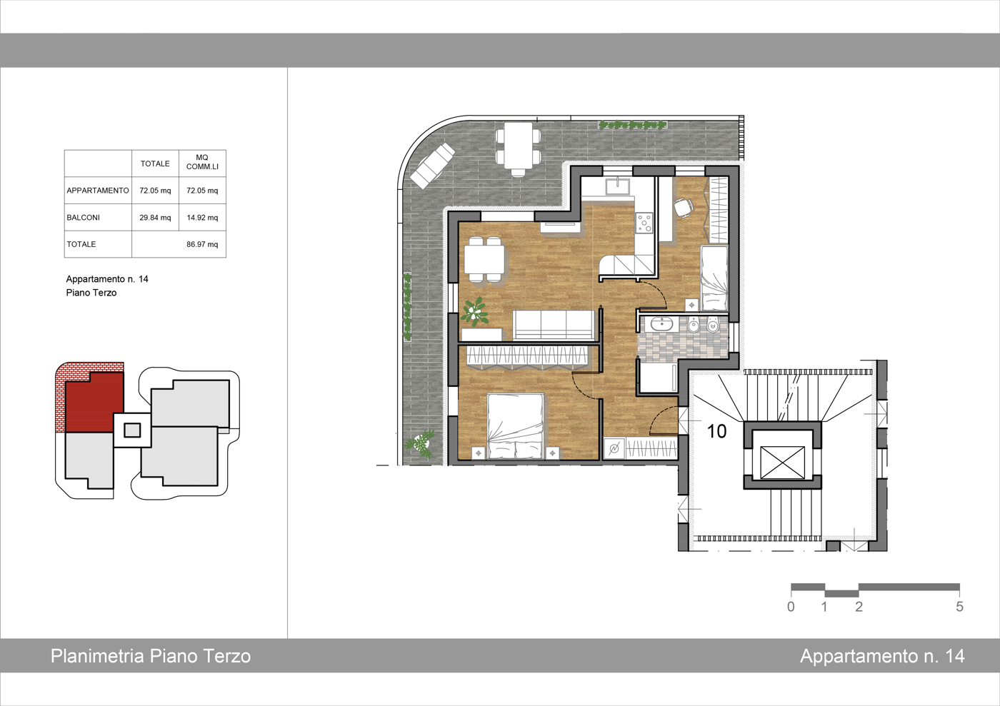
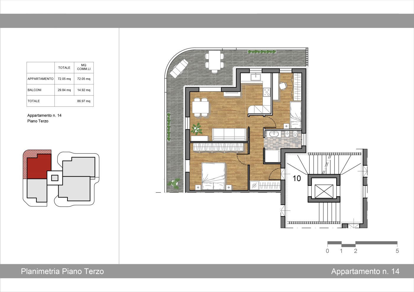
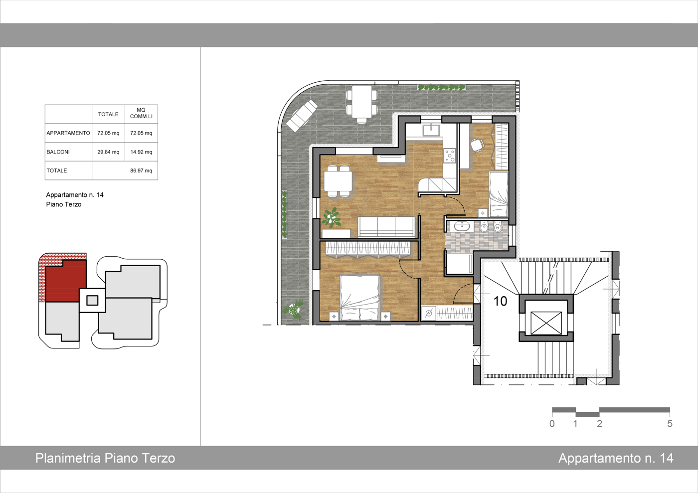
GABICCE MARE | RESIDENZA SAVANAS | NUOVA COSTRUZIONE CLASSE A4 | Riferimento: MI012/A14 Proponiamo in vendita un elegante appartamento di nuova generazione, parte dellesclusiva Residenza Savanas, realizzato con tecnologie allavanguardia e finiture di altissimo pregio.
- Classe energetica A4, - riscaldamento a pavimento, - ventilazione meccanica controllata e infissi ad altissima prestazione.
Il massimo del comfort, con il minimo impatto ambientale.
Situato al terzo piano, il trilocale si compone da ingresso, zona living con cucina a vista, una camera padronale, una seconda camera, un bagno e ampio balcone che circonda l'appartamento.
La sua posizione strategica, nel cuore del centro mare di Gabicce, a pochi passi dalla spiaggia e dai principali servizi, rappresenta linvestimento perfetto sia come soluzione residenziale che come casa vacanze di alto livello.
Possibilit di acquisto Box e Posti Auto. Contatta l'inserzionista

Adriatic Real Estate SrlAdriatic Real Estate Srl
Via della Stazione 2/D
, Misano Adriatico (Rimini)
Visualizza Telefono

INFORMAZIONI SULL'IMMOBILE

  • Riferimento: MI012/A14VRG
  • Tipologia: Appartamento in Vendita
  • Locali: 3 Locali (2 camere, cucina abitabile e un bagno)
  • Piano: Secondo con ascensore
  • Prezzo: 400.000 €
  • Prezzo al mq: 4.651 €
  • Balconi: 1
  • Riscaldamento: Autonomo
  • Spazio Auto: No
  • Modificato il: 25/02/2026
  • Scheda: SC9589030

Stabile

  • Anno: 2025
  • Piano: 2
  • Ascensore: Si
  • Portineria: No
  • Classe Energetica: n.d.

Mappa e indirizzo

61011 Gabicce Mare (Pesaro e Urbino)
mappa mostra l'annuncio su mappa

Contatta l'inserzionista

Adriatic Real Estate Srl

Adriatic Real Estate Srl di Misano Adriatico propone in vendita questo immobile, contattali subito!

Annunci simili

Annunci immobiliari a Gabicce Mare (PU)

Copyright Š 2026 PCase.it. All rights reserved. Sede operativa MILANO. P.IVA 08508420968 - Condizioni d'uso e privacy