Preferiti

Sponsorizza

Stampa

Appartamento in vendita a Gabicce Mare

  • 420.000€
  • 4 locali
  • 98 mq
  • Vendesi

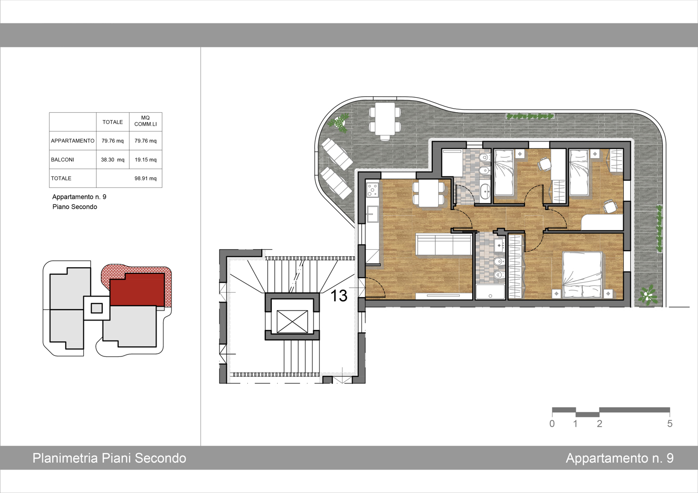
GABICCE MARE | RESIDENZA SAVANAS | NUOVA COSTRUZIONE CLASSE A4 | Riferimento: MI012/A8 Proponiamo in vendita un elegante appartamento di nuova generazione, parte dellesclusiva Residenza Savanas, realizzato con tecnologie allavanguardia e finiture di altissimo pregio.
Situato al secondo piano, lappartamento composto da ingresso su zona giorno con cucina a vista, camera padronale, due camere singole, due bagni, comoda zona lavanderia e ampio balcone dove poter accogliere i propri ospiti per cene all'aperto o da dedicare al proprio relax.
- Classe energetica A4, - riscaldamento a pavimento, - ventilazione meccanica controllata e infissi ad altissima prestazione.
La sua posizione strategica, nel cuore del centro mare di Gabicce, a pochi passi dalla spiaggia e dai principali servizi, rappresenta linvestimento perfetto sia come soluzione residenziale che come casa vacanze di alto livello.
Possibilit di acquisto Box e Posti Auto. Contatta l'inserzionista

Adriatic Real Estate SrlAdriatic Real Estate Srl
Via della Stazione 2/D
, Misano Adriatico (Rimini)
Visualizza Telefono

INFORMAZIONI SULL'IMMOBILE

  • Riferimento: MI012/A9VRG
  • Tipologia: Appartamento in Vendita
  • Locali: 4 Locali (3 camere, cucina abitabile con doppi servizi)
  • Piano: Secondo con ascensore
  • Prezzo: 420.000 €
  • Prezzo al mq: 4.286 €
  • Balconi: 1
  • Riscaldamento: Autonomo
  • Spazio Auto: No
  • Modificato il: 17/03/2026
  • Scheda: SC9620861

Stabile

  • Anno: 2025
  • Piano: 2 su 4 totali
  • Ascensore: Si
  • Portineria: No
  • Classe Energetica: n.d.

Mappa e indirizzo

61011 Gabicce Mare (Pesaro e Urbino)
mappa mostra l'annuncio su mappa

Galleria Fotografica

Contatta l'inserzionista

Adriatic Real Estate Srl

Adriatic Real Estate Srl di Misano Adriatico propone in vendita questo immobile, contattali subito!

Annunci simili

Annunci immobiliari a Gabicce Mare (PU)

Copyright Š 2026 PCase.it. All rights reserved. Sede operativa MILANO. P.IVA 08508420968 - Condizioni d'uso e privacy