Preferiti

Sponsorizza

Stampa

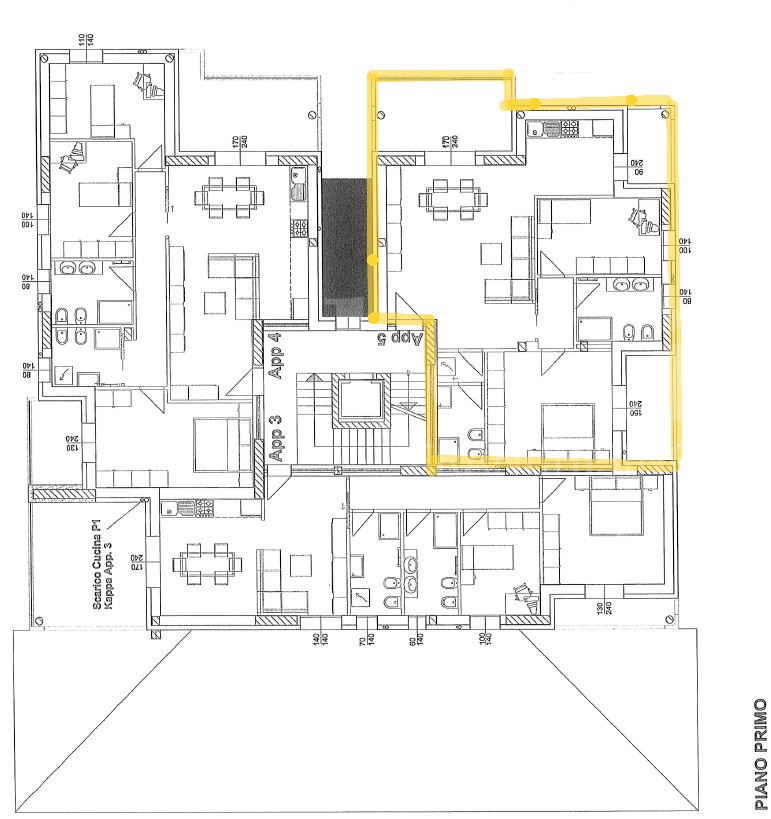
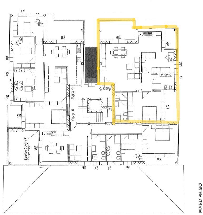
Appartamento in vendita con posto auto coperto a Nonantola

  • 279.000€
  • 3 locali
  • 108 mq
  • Vendesi

Splendido appartamento in vendita ad uso abitativo con 3 locali, situato nel cuore di Nonantola (MO). Con una superficie di 108 mq, questo appartamento si trova in una palazzina di nuova costruzione con consegna prevista per luglio 2026. L'appartamento al piano primo offre una luminosa sala con accesso alla loggia, garantendo spazi aperti e comfort.
L'appartamento composto da una camera matrimoniale, una camera singola, due bagni e zona lavanderia e garage a piano terra compreso nel prezzo.
Questa un'opportunit unica per chi cerca un'abitazione moderna e funzionale in una zona ben servita e in continua crescita.
Contattaci per maggiori informazioni e per prenotare una visita! Anastasia 3420507482 Contatta l'inserzionista

FASP SrlFASP Srl
Viale Pietro Gobetti 117
, Modena (Modena)
Visualizza Telefono

INFORMAZIONI SULL'IMMOBILE

  • Riferimento: Cod. rif NONAN. P1VR
  • Tipologia: Appartamento in Vendita
  • Locali: 3 Locali (2 camere, cucina angolo cottura con doppi servizi)
  • Piano: Primo con ascensore
  • Stato: Nuovo
  • Prezzo: 279.000 €
  • Prezzo al mq: 2.583 €
  • Balconi: 1
  • Riscaldamento: Centralizzato
  • Spazio Auto: Posto auto coperto
  • Modificato il: 20/12/2025
  • Scheda: SC9547421

Stabile

  • Anno: 2025
  • Piano: 1 su 2 totali
  • Ascensore: Si
  • Portineria: No
  • Classe Energetica: n.d.

Mappa e indirizzo

41015 Nonantola (Modena)
mappa mostra l'annuncio su mappa

Galleria Fotografica

Contatta l'inserzionista

FASP Srl

FASP Srl di Modena propone in vendita questo immobile, contattali subito!

Annunci immobiliari a Nonantola (MO)

Copyright Š 2026 PCase.it. All rights reserved. Sede operativa MILANO. P.IVA 08508420968 - Condizioni d'uso e privacy