Preferiti

Sponsorizza

Stampa

Appartamento in vendita da ristrutturare a Carrara

  • Prezzo ribassato -4%
  • € 68.000 65.000€
  • 3 locali
  • 55 mq
  • Vendesi

***.*******.** 1837c - Carrara zona ztl In posizione strategica e centrale, questo affascinante appartamento di tre locali si presenta come un'opportunità imperdibile per chi cerca un'abitazione nel cuore di Carrara.
Con una superficie di 55 mq, questo spazio offre una combinazione ideale di comfort e funzionalità, pronto per accogliere la tua famiglia.
Il prezzo competitivo di 69.000 Euro rende questa proposta irresistibile.
Immobile al secondo piano da riverede internamente no ascensore ideale per uso investimento Contatta l'inserzionista

BROKER X TEBROKER X TE
Viale Galilei, 122
, Carrara (Massa-Carrara)
Visualizza Telefono

INFORMAZIONI SULL'IMMOBILE

  • Riferimento: 1402828/1109/1837c
  • Tipologia: Appartamento in Vendita
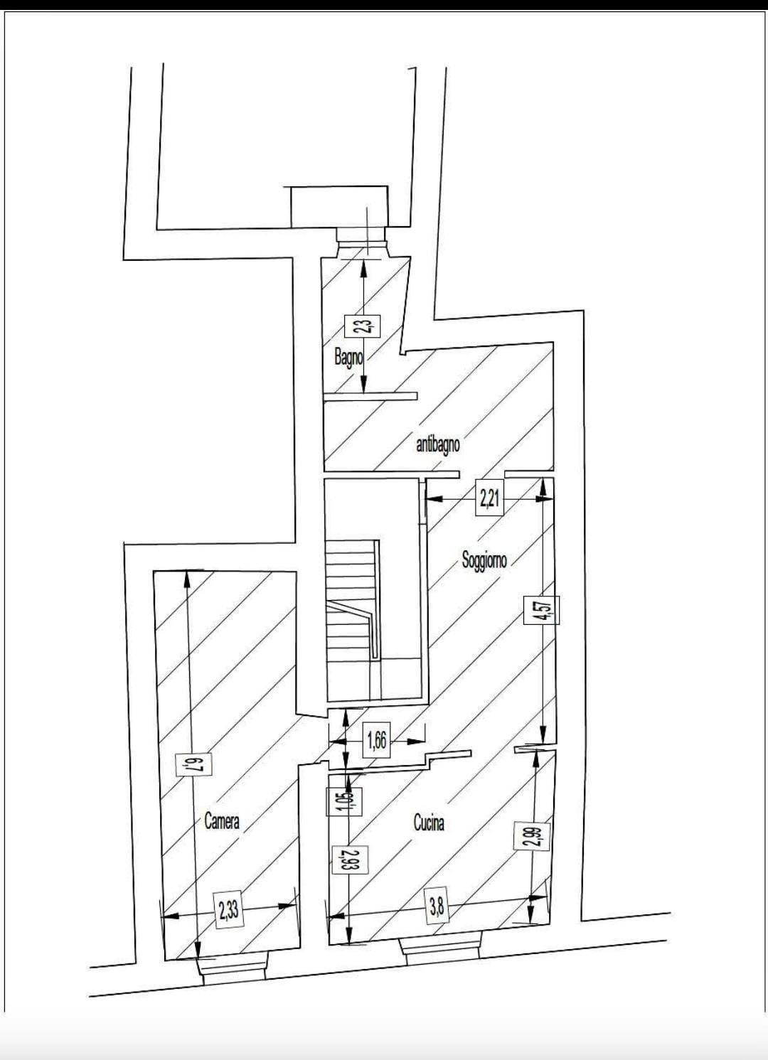
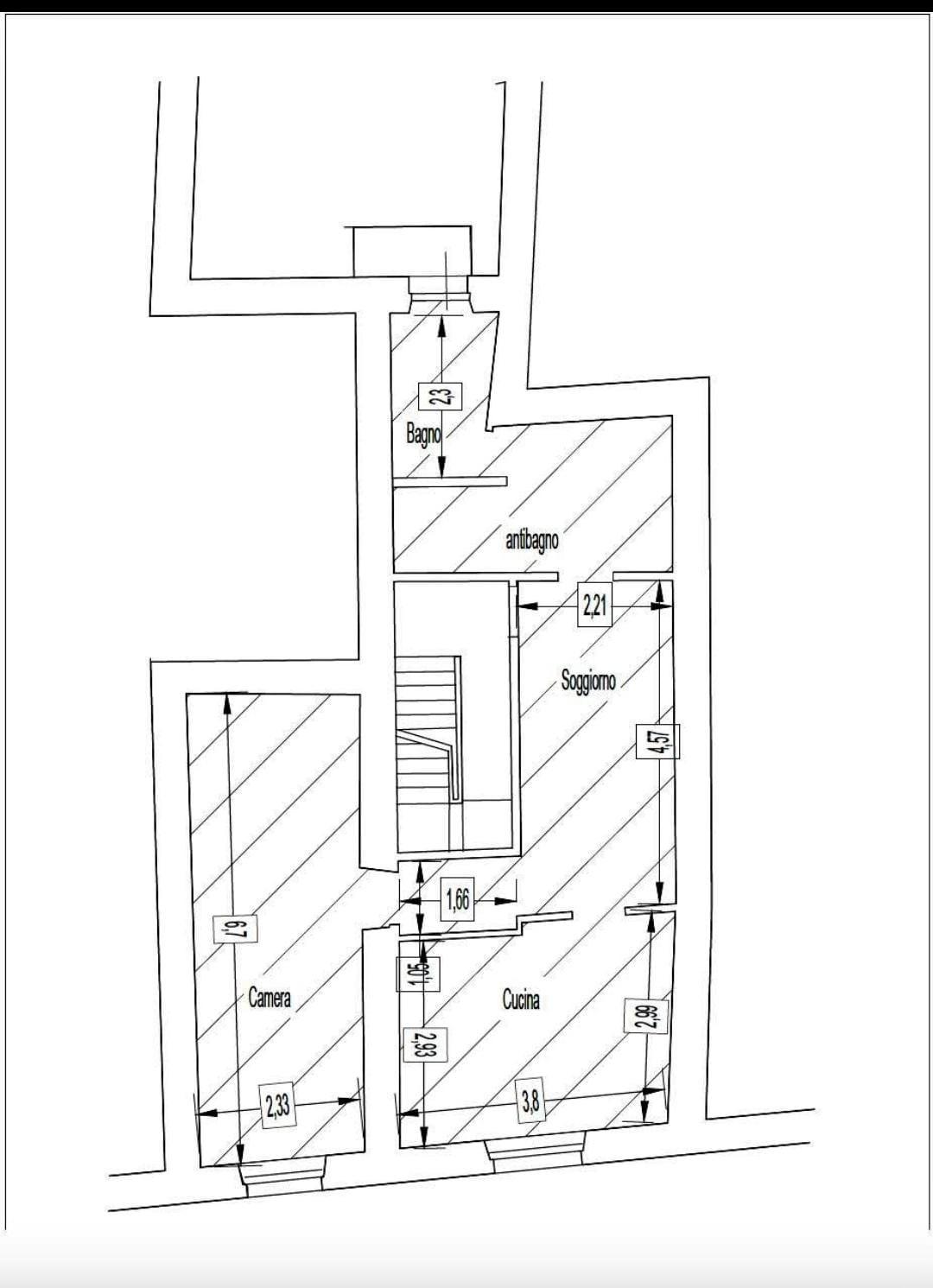
  • Locali: 3 Locali (2 camere, cucina abitabile e un bagno)
  • Piano: Secondo
  • Stato: da Ristrutturare
  • Prezzo: 65.000 €
  • Prezzo al mq: 1.182 €
  • Riscaldamento: Autonomo
  • Modificato il: 23/03/2026
  • Scheda: SC9623268

Stabile

  • Piano: 2 su 3 totali
  • Classe Energetica: n.d.

Mappa e indirizzo

54033 Carrara (Massa-Carrara)
mappa mostra l'annuncio su mappa

Galleria Fotografica

Contatta l'inserzionista

BROKER X TE

BROKER X TE di Carrara propone in vendita questo immobile, contattali subito!

Annunci simili

Annunci immobiliari a Carrara (MS)

Copyright Š 2026 PCase.it. All rights reserved. Sede operativa MILANO. P.IVA 08508420968 - Condizioni d'uso e privacy