Preferiti

Sponsorizza

Stampa

Appartamento in vendita da ristrutturare a Capannori - tassignano

  • 120.000€
  • zona tassignano
  • 3 locali
  • 60 mq
  • Vendesi

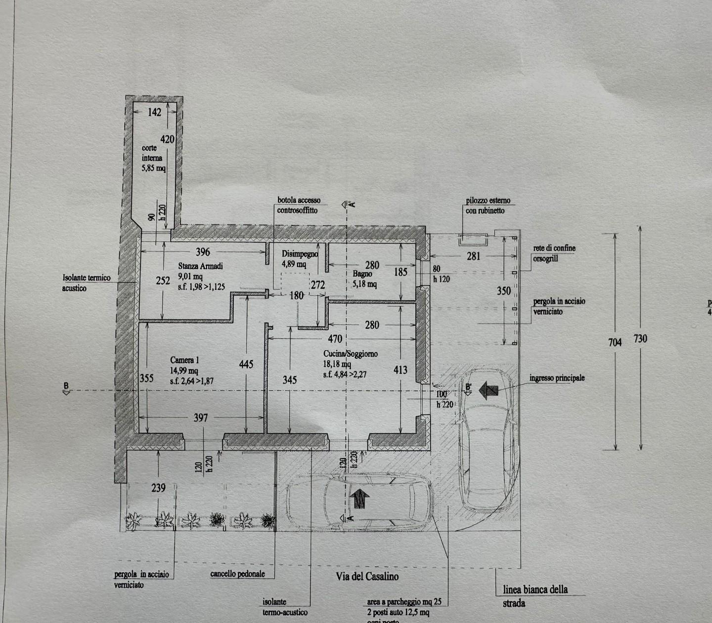
***.*******.** AP TAS 120 - TASSIGNANO, ideale per investimento, proponiamo in fondo commerciale con PROGETTO APPROVATO E ONERI PAGATI per il cambio di destinazione in appartamento di 60 mq al piano terra con ingresso indipendente (NO CONDOMINIO), composto da: soggiorno con angolo cottura, disimpegno, una camera matrimoniale, una camera singola con accesso ad una corte interna di 5 mq e bagno.
A corredo dell'abitazione due posti auto esclusivi, e piccola resede su due lati (circa 20 mq) L'immobile viene venduto da ristrutturare. Contatta l'inserzionista

PM Casa ImmobiliarePM Casa Immobiliare
Via Cardinal Pacini, 12
, Capannori (Lucca)
Visualizza Telefono

INFORMAZIONI SULL'IMMOBILE

  • Riferimento: 1393464/1140/AP TAS
  • Tipologia: Appartamento in Vendita
  • Locali: 3 Locali (2 camere, cucina angolo cottura e un bagno)
  • Piano: Terra
  • Stato: da Ristrutturare
  • Prezzo: 120.000 €
  • Prezzo al mq: 2.000 €
  • Modificato il: 09/02/2026
  • Scheda: SC9598132

Stabile

  • Piano: Terra su 2 totali
  • Classe Energetica: n.d.

Mappa e indirizzo

55012 Capannori (Lucca), zona tassignano
mappa mostra l'annuncio su mappa

Galleria Fotografica

Contatta l'inserzionista

PM Casa Immobiliare

PM Casa Immobiliare di Capannori propone in vendita questo immobile, contattali subito!

Annunci simili

Annunci immobiliari a Capannori (LU)

Copyright Š 2026 PCase.it. All rights reserved. Sede operativa MILANO. P.IVA 08508420968 - Condizioni d'uso e privacy