Preferiti

Sponsorizza

Stampa

Appartamento in vendita con giardino a Camaiore - lido di

  • 480.000€
  • zona lido di
  • 3 locali
  • 55 mq
  • Vendesi

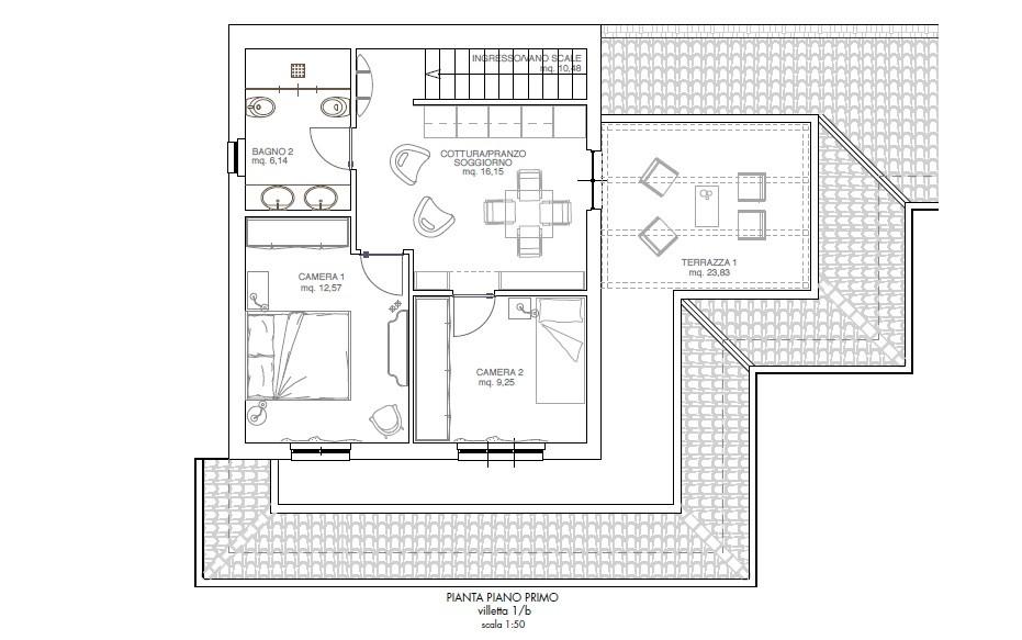
***.*******.** LDC3554 - Nostra Esclusiva di Vendita - Nuova realizzazione con spazio esterno CASA CON TERRAZZA ABITABILE POSTO AUTO === Ad appena 200 metri dal mare, in località Lido di Camaiore, disponiamo in vendita di una casa posta a piano primo corredata da un grande terrazza pranzabile.
L'ingresso avviene per mezzo della scala esterna posta nel resede di proprietà dove può trovare parcheggio anche un'autovettura oltre che a biciclette/scooter.
Il progetto prevede la realizzazione di una generosa zona giorno suddivisa in angolo cottura, sala pranzo e soggiorno TV. Attraverso l'apertura si fuoriesce sulla terrazza.
La zona notte dispone di due stanze letto.
Il bagno è finestrato.
La proprietà include n. 1 posto auto oltre che una generosa resede di pertinenza La consegna dell'immobile è prevista per il mese di gennaio 2026. Contatta l'inserzionista

Case Belle VersiliaCase Belle Versilia
Via Italica 9
, Camaiore (Lucca)
Visualizza Telefono

INFORMAZIONI SULL'IMMOBILE

  • Riferimento: 1258508/1147/LDC3554
  • Tipologia: Appartamento in Vendita
  • Locali: 3 Locali (2 camere, cucina angolo cottura e un bagno)
  • Piano: Primo
  • Stato: Nuovo
  • Prezzo: 480.000 €
  • Prezzo al mq: 8.727 €
  • Riscaldamento: Autonomo
  • Giardino: Privato - 65 Mq
  • Modificato il: 19/02/2026
  • Scheda: SC9502009

Stabile

  • Piano: 1
  • Classe Energetica: n.d.

Mappa e indirizzo

55041 Camaiore (Lucca), zona lido di
mappa mostra l'annuncio su mappa

Galleria Fotografica

Contatta l'inserzionista

Case Belle Versilia

Case Belle Versilia di Camaiore propone in vendita questo immobile, contattali subito!

Annunci immobiliari a Camaiore (LU)

Copyright Š 2026 PCase.it. All rights reserved. Sede operativa MILANO. P.IVA 08508420968 - Condizioni d'uso e privacy