Preferiti

Sponsorizza

Stampa

Terreno Edificabile in vendita a Montecarlo

  • 250.000€
  • 1000 mq
  • Vendesi

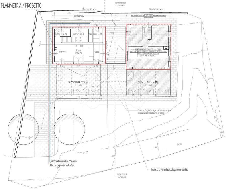
***.*******.** 5812-TE - MONTECARLO - A soli 20 minuti da Porta Elisa, in splendida posizione collinare e panoramica, proponiamo in vendita due lotti di terreno su cui insistono fabbricati esistenti oggetto di un progetto già approvato (validità fino a novembre 2029) che prevede la demolizione e la ricostruzione dei volumi per la realizzazione di due ville unifamiliari.
Caratteristiche del Progetto: Le due unità abitative saranno indipendenti sia dal punto di vista urbanistico che catastale, collegate elegantemente da un porticato architettonico.
Unità A: Sviluppata su due livell per totali 140mq, oltre serra solare di 52mq. Unità B: Sviluppata al piano terra per ca. 70mq totali, oltre 45mq di serra solare, con possibilità di realizzare un garage sottostante.
Entrambe le ville saranno corredate da giardino privato.
Dettagli Economici e Oneri: La soluzione viene venduta con i permessi pronti all'uso, permettendo un inizio lavori immediato.
Gli oneri di costruzione sono già stati stimati: Oneri Unità su due livelli: circa ? 20.000,00 Oneri Unità piccola: circa ? 7.000,00 Punto di forza: Una soluzione ideale per chi cerca l'indipendenza e il fascino della campagna lucchese, associato alla comodità di un progetto moderno con un panorama mozzafiato.
L'indirizzo pubblicato potrebbe non corrispondere all'esatta ubicazione dell'immobile: contattateci per avere informazioni più dettagliate. Contatta l'inserzionista

DIMENSIONE CASA ImmobiliareDIMENSIONE CASA Immobiliare
Via Romana, 2360
, Lucca (Lucca)
Visualizza Telefono

INFORMAZIONI SULL'IMMOBILE

  • Riferimento: 1403099/1178/5812-TE
  • Tipologia: Terreno edif. residenziale in Vendita
  • Locali: Edificabile di 1000 m²
  • Prezzo: 250.000 €
  • Prezzo al mq: 250 €
  • Modificato il: 23/03/2026
  • Scheda: SC9624321

Stabile

  • Classe Energetica: n.d.

Mappa e indirizzo

55015 Montecarlo (Lucca)
mappa mostra l'annuncio su mappa

Galleria Fotografica

Contatta l'inserzionista

DIMENSIONE CASA Immobiliare

DIMENSIONE CASA Immobiliare di Lucca propone in vendita questo immobile, contattali subito!

Annunci immobiliari a Montecarlo (LU)

Copyright Š 2026 PCase.it. All rights reserved. Sede operativa MILANO. P.IVA 08508420968 - Condizioni d'uso e privacy