Preferiti

Sponsorizza

Stampa

Terreno Edificabile in vendita a Lucca - centro storico

  • trattativa riservata
  • zona centro storico
  • 1200 mq
  • Vendesi

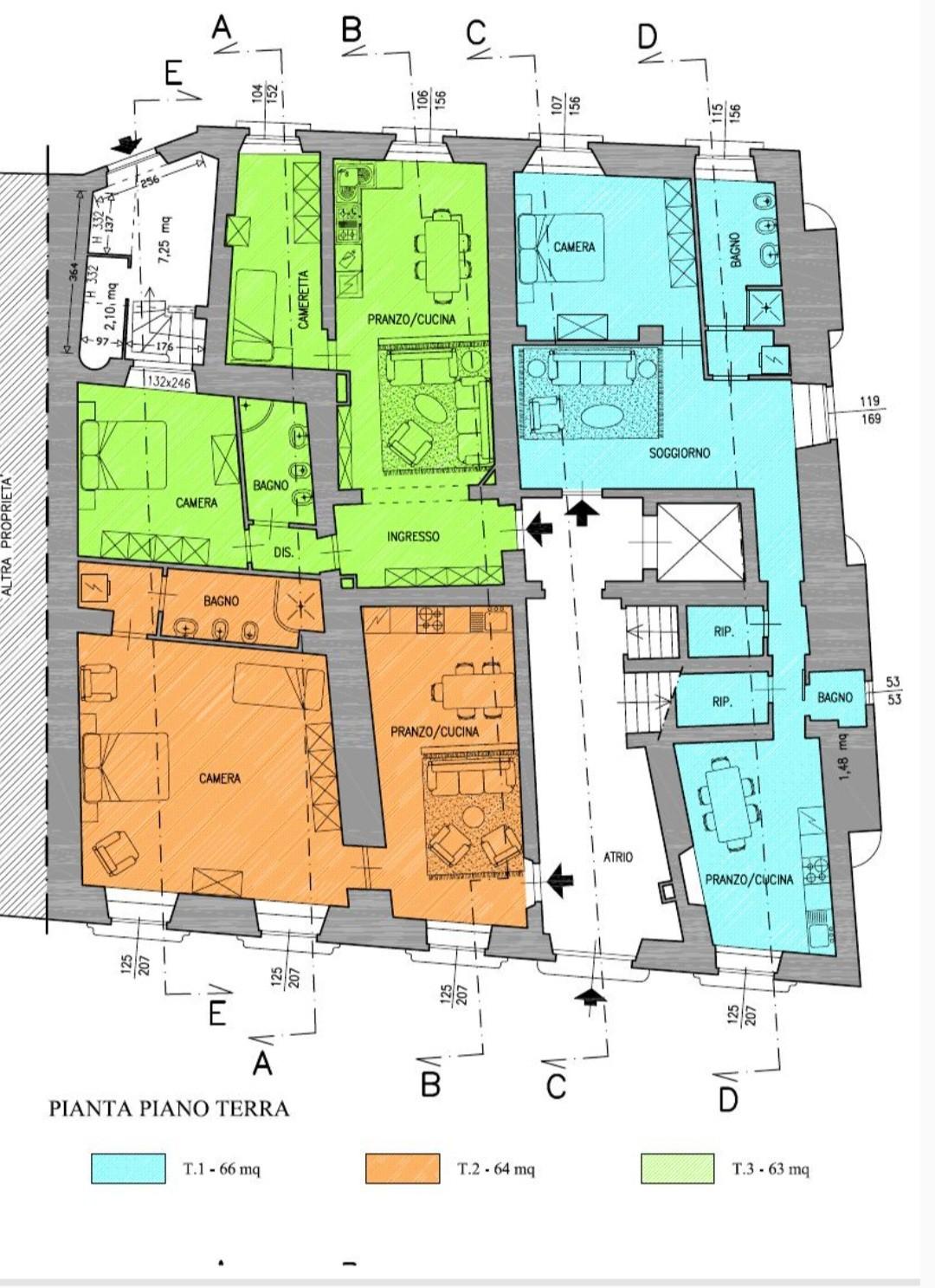
***.*******.** T21 - Centro Storico di Lucca, proponiamo in vendita un intero palazzo di circa 1.200 mq su tre livelli più soffitta, con grandi potenzialità sia residenziali che commerciali.
Il piano terra, di circa 300 mq, è attualmente adibito a uffici; al primo piano 300 mq divisi in due appartamenti; al secondo piano 300 mq con un unico appartamento; al terzo piano soffitta di circa 300 mq, di cui 100 mq abitabili con altezza media di 2,70 m. La struttura è ideale per realizzare fino a 11 appartamenti, perfetta per investitori o per chi desidera creare una soluzione plurifamiliare nel cuore della città. Si precisa che lindirizzo indicato nellannuncio non corrisponde allesatta geolocalizzazione dellimmobile Riferimento T21 Contatta l'inserzionista

CasaInRealEstateCasaInRealEstate
Via Pesciatina, 42
, Capannori (Lucca)
Visualizza Telefono

INFORMAZIONI SULL'IMMOBILE

  • Riferimento: 1385995/2118/T21
  • Tipologia: Terreno edif. residenziale in Vendita
  • Locali: Edificabile di 1200 m²
  • Modificato il: 15/01/2026
  • Scheda: SC9582906

Stabile

  • Classe Energetica: n.d.

Mappa e indirizzo

55100 Lucca (Lucca), zona centro storico
Arancio, Ospedale-Stadio, San Filippo, San Marco
mappa mostra l'annuncio su mappa

Galleria Fotografica

Contatta l'inserzionista

CasaInRealEstate

CasaInRealEstate di Capannori propone in vendita questo immobile, contattali subito!

Annunci simili

Annunci immobiliari a Lucca (LU)

Copyright Š 2026 PCase.it. All rights reserved. Sede operativa MILANO. P.IVA 08508420968 - Condizioni d'uso e privacy