Preferiti

Sponsorizza

Stampa

Appartamento in vendita con terrazzo a Modica in via sacro cuore 1611 - sorda quartiere

  • 355.000€
  • zona sorda quartiere
  • 4 locali
  • 131 mq
  • Vendesi

In zona centrale e servita di Modica Sorda, proponiamo in vendita appartamenti di nuova costruzione in uno stabile residenziale che unisce design contemporaneo, tecnologie di ultima generazione ed elevata efficienza energetica.
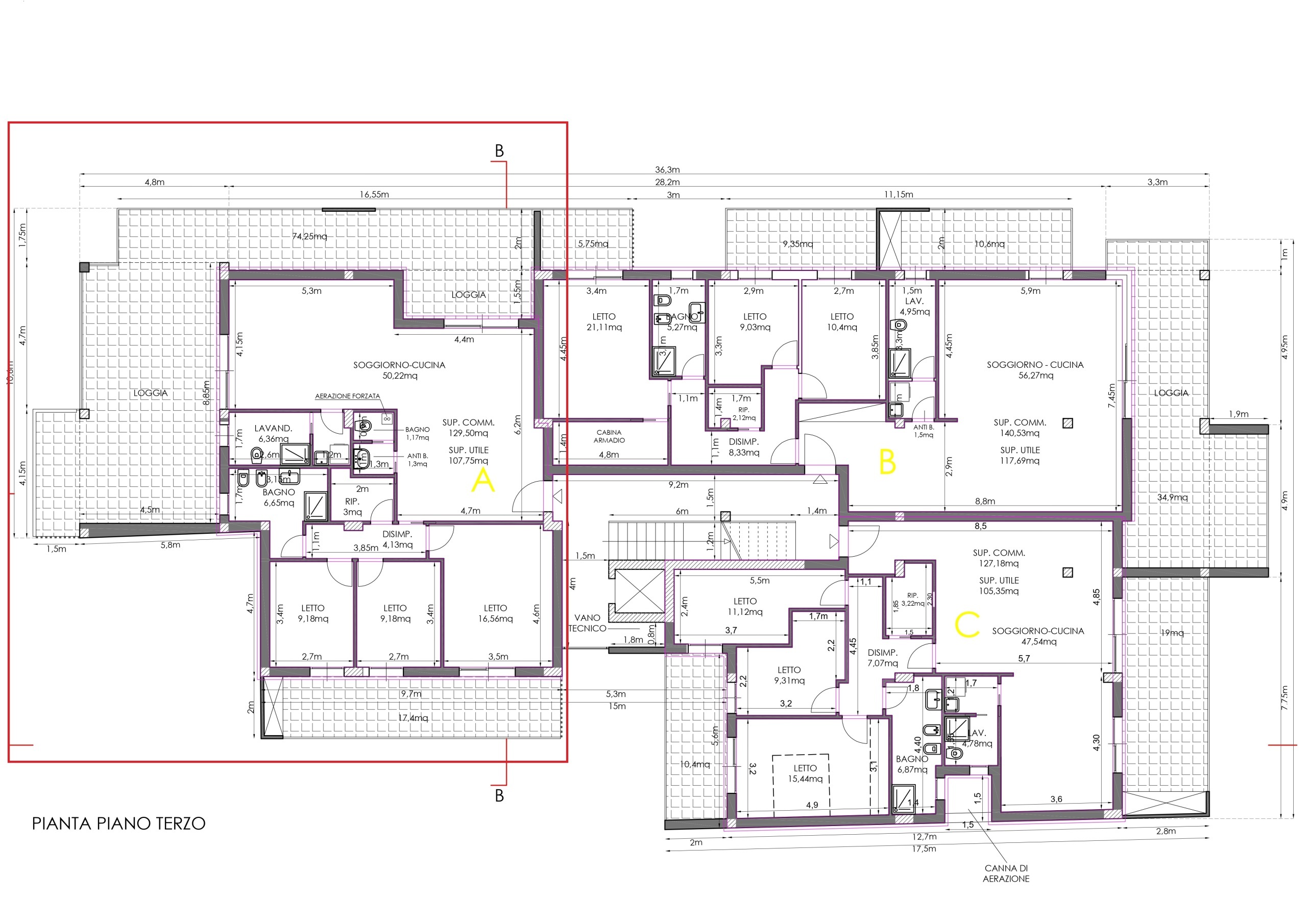
Lappartamento proposto è situato al terzo piano; è composto da ampio e luminoso living con soggiorno/cucina, tre camere da letto, due bagni, doppio servizio/lavanderia e ripostiglio.
Completano la proprietà un grande terrazzo a livello di circa 75 mq ed uno più piccolo di circa 18 mq. Ledificio, realizzato in classe energetica A++++, ospita appartamenti di diverse metrature tutti dotati di ampie verande o balconi, ideali per vivere gli spazi esterni in totale privacy.
Inoltre, grazie alle nuove tecnologie garantisce massimo comfort e consumi ridotti grazie a: - Riscaldamento a pavimento radiante con pompe di calore aria-acqua; - Produzione di acqua calda sanitaria con pompe di calore e boiler in acciaio inox da 200 litri; - Impianto fotovoltaico indipendente da 3 kW per ogni appartamento; - Isolamento termo-acustico di ultima generazione con sistema a secco (cartongesso e lana minerale); - Infissi in PVC ad alte prestazioni con chiusure oscuranti in PVC dotati di motorizzazione elettrico; - Predisposizione domotica; - Predisposizione climatizzazione estiva.
Disponibili appartamenti di diverse metrature, tutti dotati di ampie verande o balconi e box auto riservato di circa 15 mq, con possibilità di avere metrature più grandi pagando la differenza.
Una soluzione moderna, sostenibile e destinata a mantenere nel tempo il proprio valore, in una zona centrale e perfettamente servita.
Consegna prevista fine 2027. Limmobile può beneficiare di detrazione fiscale fino a ? 48.000 in 10 anni, secondo le condizioni e i requisiti previsti dalla normativa vigente. Contatta l'inserzionista

GFA REAL ESTATE S.R.L.S.GFA REAL ESTATE  S.R.L.S.
PIAZZA LIBERTA', 9
97015, Modica (Ragusa)
Visualizza Telefono

INFORMAZIONI SULL'IMMOBILE

  • Riferimento: 11693-3-A
  • Tipologia: Appartamento in Vendita
  • Locali: 4 Locali (3 camere con doppi servizi)
  • Piano: Terzo
  • Stato: Nuovo
  • Prezzo: 355.000 €
  • Prezzo al mq: 2.710 €
  • Terrazzi: 2
  • Spazio Auto: Box singolo
  • Modificato il: 01/04/2026
  • Scheda: SC9602046

Stabile

  • Anno: 2027
  • Piano: 3 su 5 totali
A4

Mappa e indirizzo

Appartamento sito in via sacro cuore 1611
97015 Modica (Ragusa), zona sorda quartiere
mappa mostra l'annuncio su mappa

Galleria Fotografica

Contatta l'inserzionista

GFA REAL ESTATE  S.R.L.S.

GFA REAL ESTATE S.R.L.S. di Modica propone in vendita questo immobile, contattali subito!

Annunci simili

Annunci immobiliari a Modica (RG)

Copyright Š 2026 PCase.it. All rights reserved. Sede operativa MILANO. P.IVA 08508420968 - Condizioni d'uso e privacy