Preferiti

Sponsorizza

Stampa

Appartamento in affitto a Arezzo in via ristoro d'arezzo

  • 650€
  • 4 locali
  • 90 mq
  • Affittasi

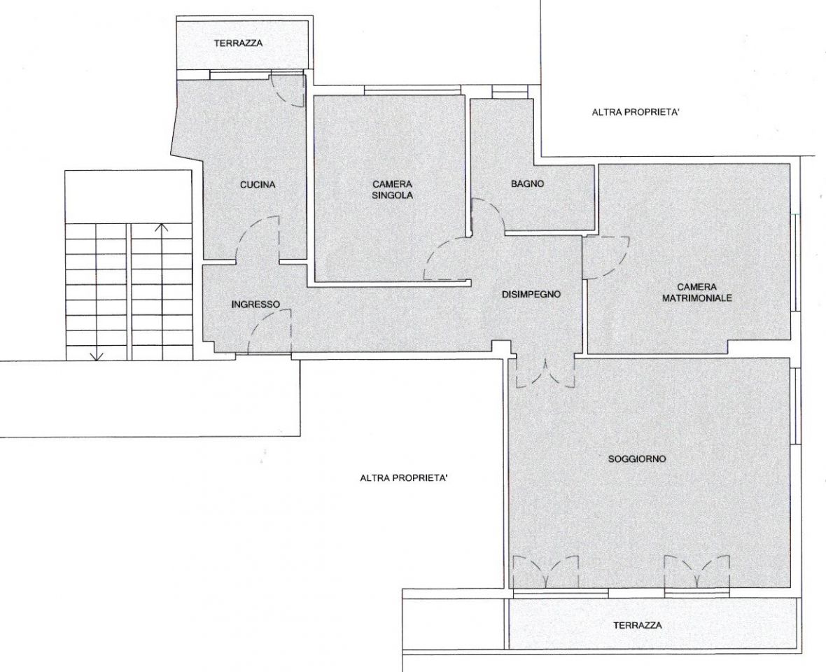
Proponiamo in affitto in via ristoro d'arezzo a Arezzo, appartamento 4 locali di 90 mq composto da: soggiorno, tre camere da letto e bagno. Appartamento in ottimo stato di uno stabile a Arezzo. Contatta l'inserzionista

Zona Giotto, appartamento parzialmente arredato (solo cucina) a piano primo con ascensore composto da ingresso, cucina, ampio soggiorno, 2 camere, bagno e 2 balconi. Disponibile da Aprile

AREA IMMOBILIAREAREA IMMOBILIARE
Viale Giotto 7
52100, Arezzo (Arezzo)
Visualizza Telefono

INFORMAZIONI SULL'IMMOBILE

  • Riferimento: AFF. 854
  • Tipologia: Appartamento in Affitto
  • Locali: 4 Locali (3 camere e un bagno)
  • Stato: Ottimo
  • Prezzo: 650 €
  • Prezzo al mq: 7 €
  • Balconi: 1
  • Modificato il: 25/03/2026
  • Scheda: SC9625616

Stabile

  • Classe Energetica: n.d.

Mappa e indirizzo

Appartamento sito in via ristoro d'arezzo
52100 Arezzo (Arezzo)
Prima Periferia
mappa mostra l'annuncio su mappa

Contatta l'inserzionista

AREA IMMOBILIARE

AREA IMMOBILIARE di Arezzo propone in affitto questo immobile, contattali subito!

Annunci immobiliari a Arezzo (AR)

Copyright Š 2026 PCase.it. All rights reserved. Sede operativa MILANO. P.IVA 08508420968 - Condizioni d'uso e privacy