
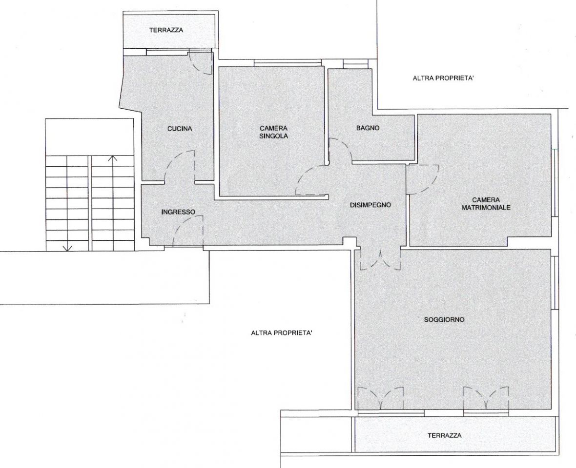
Zona Giotto, appartamento parzialmente arredato (solo cucina) a piano primo con ascensore composto da ingresso, cucina, ampio soggiorno, 2 camere, bagno e 2 balconi. Disponibile da Aprile
inserito il 02 apr 2026 in Quadrilocali in affitto ad ArezzoStai cercando Quadrilocali in affitto ad Arezzo? Su PCase.it puoi trovare diversi annunci immobiliari di Quadrilocali in affitto ad Arezzo affini alla tua ricerca, ogni giorno tanti nuovi inserimenti e abbassamenti di prezzo da agenzie immobiliari di fiducia, costruttori esperti e privati che offrono i migliori quadrilocali in affitto ad arezzo corredati da descrizioni complete, foto, video e mappe. Scopri com'è facile trovare subito la tua nuova casa online in affitto a Arezzo.
La tua nuova casa in affitto a Arezzo è a portata di clic!