Preferiti

Sponsorizza

Stampa

Negozio in vendita a Palermo

  • 190.000€
  • 2 locali
  • 65 mq
  • Vendesi

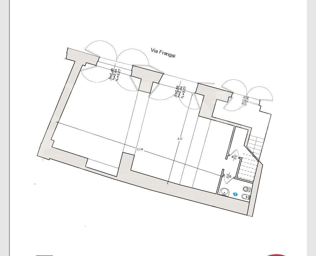
Palermo- Opportunit unica nel cuore del centro storico , proponiamo in vendita locali commerciali ideali per attivit commerciali o come spazi di archiviazione in fase di totale ristrutturazione a Palazzo Sperlinga, un gioiello storico situato nella vibrante Piazza Garraffello, a due passi dalla Vucciria e dal porto turistico della Cala. Negozio 65 mq, 2 locali con 3 vetrine su Piazza Garraffello e Via Argenteria.
Cod. Rif. NP/26. Contatta l'inserzionista

Palermo PoliteamaPalermo Politeama
Prossima Apertura
, Palermo (Palermo)
Visualizza Telefono

INFORMAZIONI SULL'IMMOBILE

  • Riferimento: NP/26VCG
  • Tipologia: Negozio in Vendita
  • Locali: 2 Locali ( 1 camera e un bagno)
  • Piano: Terra
  • Prezzo: 190.000 €
  • Prezzo al mq: 2.923 €
  • Spazio Auto: No
  • Modificato il: 01/12/2025
  • Scheda: SC9466884

Stabile

  • Piano: Terra
  • Classe Energetica: n.d.

Mappa e indirizzo

90131 Palermo (Palermo)
Centro
mappa mostra l'annuncio su mappa

Galleria Fotografica

Contatta l'inserzionista

Palermo Politeama

Palermo Politeama di Palermo propone in vendita questo immobile, contattali subito!

Annunci immobiliari a Palermo (PA)

Copyright Š 2026 PCase.it. All rights reserved. Sede operativa MILANO. P.IVA 08508420968 - Condizioni d'uso e privacy