Preferiti

Sponsorizza

Stampa

Negozio in vendita a Udine

  • 175.000€
  • 3 locali
  • 195 mq
  • Vendesi

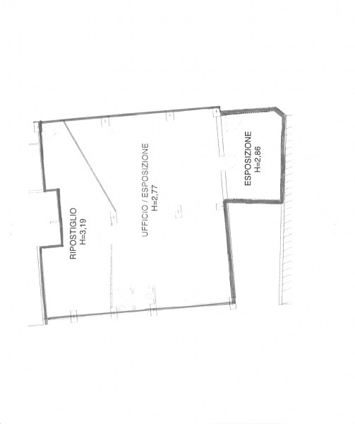
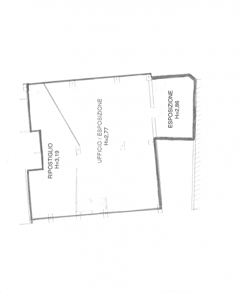
Negozio vetrinato ( 4 vetrine ) fronte strada di 195 mq con comodo parcheggio fronte negozio.
Posizione assolutamente strategica ampiamente servito anche da mezzi pubblici ed attività ad alto flusso di clientela.
Conduttore storico dal 2005 con contratto di locazione commerciale 6+6, copertura assicurativa prevista per legge regolarmente rinnovato e fideiussione annuale a garanzia della locazione.
Riscaldamento autonomo.
Spese condominiali influenti.
Rendita garantita 7,7%. Metrature: Negozio 195mq Si vende da società in reverse charge Classificazione Energetica G Vorresti lavorare in Agenzia Immobiliare? - Ti piacerebbe diventare un Agente Immobiliare? Guarda le nostre offerte di lavoro nella sezione del nostro sito Lavora con Noi Compila subito il format nella pagina oppure invia la tua candidatura direttamente al nostro indirizzo mail. Sarai ricontattato entro 2gg Contatta l'inserzionista

Immobigo srlImmobigo srl
Via Nazionale )
33010, Tavagnacco (Udine)
Visualizza Telefono

INFORMAZIONI SULL'IMMOBILE

  • Riferimento: 9911_1091840
  • Tipologia: Negozio in Vendita
  • Locali: 3 Locali (2 camere)
  • Piano: Terra
  • Stato: Buono
  • Prezzo: 175.000 €
  • Prezzo al mq: 897 €
  • Riscaldamento: Autonomo
  • Modificato il: 16/04/2026
  • Scheda: SC9508303

Stabile

  • Piano: Terra su 1 totali
  • Portineria: No
A4

Galleria Fotografica

Contatta l'inserzionista

Immobigo srl

Immobigo srl di Tavagnacco propone in vendita questo immobile, contattali subito!

Annunci simili

Annunci immobiliari a Udine (UD)

Copyright Š 2026 PCase.it. All rights reserved. Sede operativa MILANO. P.IVA 08508420968 - Condizioni d'uso e privacy