Preferiti

Sponsorizza

Stampa

Negozio in affitto a Udine

  • 1.600€
  • 5 locali
  • 300 mq
  • Affittasi

Spazioso negozio vetrinato con magazzino situato su fronte strada ad altissima visibilità all'interno di un centro commerciale, con grande parcheggio gratuito antistante.
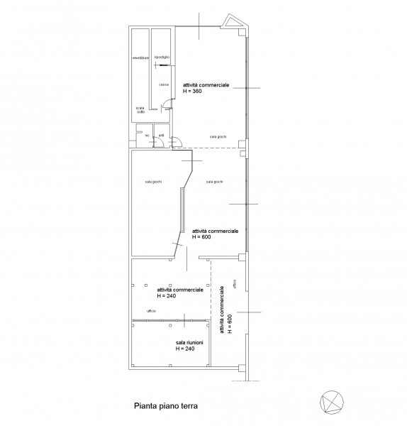
L'immobile di testa è composto da ampia area vendita con zona casse separata, secondo spazio finestrato open space, ufficio, magazzino con soppalco e ampio accesso carrabile per carico/scarico, servizi igienici con antibagno e zona tecnica cablata per server.
Termoautonomo con impianto di riscaldamento e raffrescamento, cablato, molto luminoso grazie alla doppia esposizione, finestrato su due lati. Spese condominiali pari a 50 euro mensili comprensive di amministrazione, illuminazione e manutenzione delle parti comuni.
Contratto di locazione 6+6 anni con IVA, locazione da società. Metrature: 300mq Caratteristiche: alta visibilità su strada trafficata, ampio parcheggio gratuito, termoautonomo con riscaldamento/raffrescamento, cablato, illuminazione naturale, finestrato su due lati, immobile di testa, magazzino APE in fase di definizione Contatta l'inserzionista

Immobigo srlImmobigo srl
Via Nazionale )
33010, Tavagnacco (Udine)
Visualizza Telefono

INFORMAZIONI SULL'IMMOBILE

  • Riferimento: 0109_1091762
  • Tipologia: Negozio in Affitto
  • Locali: 5 Locali
  • Piano: Terra
  • Stato: Buono
  • Prezzo: 1.600 €
  • Prezzo al mq: 5 €
  • Spese: 600,00 € (annuali)
  • Riscaldamento: Autonomo
  • Modificato il: 20/04/2026
  • Scheda: SC9508337

Stabile

  • Piano: Terra su 1 totali
  • Portineria: No
  • Classe Energetica: n.d.

Galleria Fotografica

Contatta l'inserzionista

Immobigo srl

Immobigo srl di Tavagnacco propone in affitto questo immobile, contattali subito!

Annunci immobiliari a Udine (UD)

Copyright Š 2026 PCase.it. All rights reserved. Sede operativa MILANO. P.IVA 08508420968 - Condizioni d'uso e privacy