Preferiti

Sponsorizza

Stampa

Casa indipendente in vendita con giardino a Forte dei Marmi

  • trattativa riservata
  • Vendesi

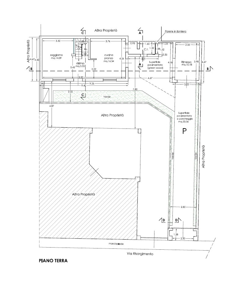
Villa Achi, posta all'interno del centro storico di Forte dei Marmi è un importante villino terra tetto con dependance in corpo staccato, sviluppato su due piani fuori terra collegato internamente da scala interna.
L'immobile ha accesso carrabile e pedonale dove nel lungo l'illuminato viale privato possono trovare sosta due vetture, oltre a restante resede che circonda per due lati l'edificio.
La dependance ad uso rimessa è utilizzata come locale pluriuso soggiorno-camera all'occorrenza, la villa al piano terra è suddivisa in cucina con zona pranzo, disimpegno di ingresso, soggiorno living, ripostiglio sottoscala, centrale termica con accessori e scala che conduce al piano primo dove si sviluppano due camere con due bagni, la scala da qui prosegue nella zona sottotetto dove si trovano due piccoli ripostigli per deposito valigie, tutta l'abitazione è stata progettata nei minimi particolari con impianto di riscaldamento e raffrescamento a pompa di calore con ulteriore pompa di calore per la produzione di acqua calda sanitaria, l'impianto elettrico realizzato è completamente automatizzato, con impianto dolby surround un tutti gli ambienti, persiane esterne motorizzate e tende interne elettriche azionabili a distanza, impianto di videosorveglianza interna ed esterna, allarme perimetrale ed alle finestre con barriere, videocitofono con rilevamento di presenza, illuminazione esterna notturna, impianto di irrigazione, impianti antizanzare , pozzo artesiano con cisterna di accumulo ed autoclave.
L'immobile risulta in classe a4 con fotovoltaico e colonnina di ricarica esterna. Contatta l'inserzionista

IMMOBILIARE MARIU'IMMOBILIARE MARIU'
VIA TRENTO 3/A
, Forte dei Marmi (Lucca)
Visualizza Telefono

INFORMAZIONI SULL'IMMOBILE

  • Riferimento: V8
  • Tipologia: Casa indipendente in Vendita
  • Stato: Nuovo
  • Bagni: 3
  • Cucina: Angolo cottura
  • Terrazzi: 1
  • Riscaldamento: Autonomo
  • Giardino: Privato
  • Spazio Auto: Posto auto scoperto
  • Arredato: Si
  • Modificato il: 21/05/2025
  • Scheda: SC9383073

Stabile

  • Classe Energetica: n.d.

Galleria Fotografica

Contatta l'inserzionista

IMMOBILIARE MARIU'

IMMOBILIARE MARIU' di Forte dei Marmi propone in vendita questo immobile, contattali subito!

Annunci simili

Annunci immobiliari a Forte dei Marmi (LU)

Copyright Š 2026 PCase.it. All rights reserved. Sede operativa MILANO. P.IVA 08508420968 - Condizioni d'uso e privacy