Preferiti

Sponsorizza

Stampa

Capannone in vendita a Tavagnacco

  • 1.250.000€
  • 13 locali
  • 1630 mq
  • Vendesi

Capannone industriale/artigianale con 3 carroponti da 5t (2 Omis e 1 Bonfanti), inserito in un lotto di 5.500mq completamente recintato, con ampia area di manovra per la logistica e la movimentazione dei bilici.
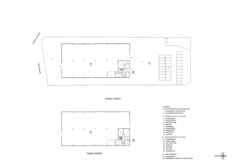
Il capannone misura 1.630mq ed è dotato di due portoni automatizzati fronte/retro (4,6mq x 4,5mq ). Al suo interno troviamo gli uffici disposti su due livelli, in perfette condizioni: Piano Terra: uffici, archivio, magazzino, spogliatoi, mensa e servizi.
Piano Primo: presidenza, due uffici indipendenti, archivio, sala riunioni e servizi.
Caratteristiche: Ottimamente manutenzionato, impianti a norma, accesso per bilici, 3 carroponti da 5 t, uffici climatizzati, sala server, spogliatoi per il personale, allarme volumetrico e perimetrale, videosorveglianza, cancelli automatizzati.
Lotto completamente recintato.
Metrature: capannone 1.630mq; uffici PT 106mq; uffici P1 174mq; 11 posti auto scoperti 154mq; 19 posti auto coperti 266mq, area di manovra 1700mq, lotto recintato 5500mq Contatta l'inserzionista

Immobigo srlImmobigo srl
Via Nazionale )
33010, Tavagnacco (Udine)
Visualizza Telefono

INFORMAZIONI SULL'IMMOBILE

  • Riferimento: 0175
  • Tipologia: Capannone in Vendita
  • Locali: 13 Locali
  • Stato: Buono
  • Prezzo: 1.250.000 €
  • Prezzo al mq: 767 €
  • Modificato il: 16/04/2026
  • Scheda: SC9510893

Stabile

  • Piani Totali: 2
  • Portineria: No
  • Classe Energetica: n.d.

Galleria Fotografica

Contatta l'inserzionista

Immobigo srl

Immobigo srl di Tavagnacco propone in vendita questo immobile, contattali subito!

Annunci immobiliari a Tavagnacco (UD)

Copyright Š 2026 PCase.it. All rights reserved. Sede operativa MILANO. P.IVA 08508420968 - Condizioni d'uso e privacy