Preferiti

Sponsorizza

Stampa

Capannone in vendita a Fagagna

  • 1.200.000€
  • 18 locali
  • 1500 mq
  • Vendesi

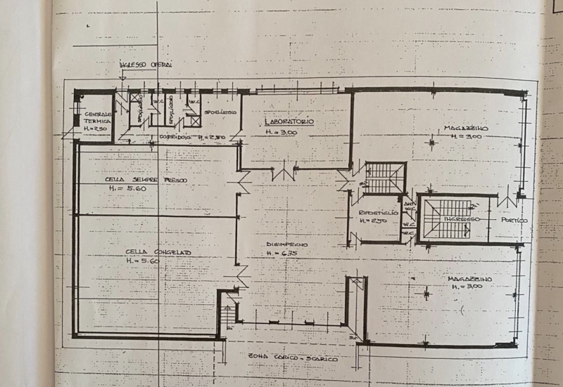
Capannone indipendente con celle frigo e area scoperta di 5.000 mq nella zona industriale di Fagagna.
Immobile ideale per attività alimentari o logistiche, composto al piano terra da circa 250 mq di celle frigorifere monopanel piastrellate, laboratori di lavorazione, zona vendita commerciale, doppi spogliatoi maschili e femminili e tre bocche di carico/scarico merci per la logistica.
Al primo piano uffici direzionali con reception, ambienti luminosi e cablati, servizi igienici maschili e femminili, oltre ad ulteriori magazzini serviti da montacarichi, area server dedicata e centrale termica.
Completa la proprietà un ampio scoperto di circa 5.000 mq con parcheggi, ampia area di manovra per mezzi pesanti e zona rifornimento dotata di cisterna interrata per gasolio da 3.000 litri.
Metrature: 700mq di piano terra, 300mq di piano primo, 5.000mq di scoperto, 250mq di celle frigo, altezza piano terra zona carico scarico 6,35m; Caratteristiche: capannone indipendente, impianti a norma, celle frigo con monopanel, laboratori a norma CEE, uffici cablati e area server, area rifornimento e bocche di carico e scarico APE in classe E Contatta l'inserzionista

Immobigo srlImmobigo srl
Via Nazionale )
33010, Tavagnacco (Udine)
Visualizza Telefono

INFORMAZIONI SULL'IMMOBILE

  • Riferimento: 2810
  • Tipologia: Capannone in Vendita
  • Locali: 18 Locali
  • Stato: Buono
  • Prezzo: 1.200.000 €
  • Prezzo al mq: 800 €
  • Modificato il: 30/04/2026
  • Scheda: SC9619660

Stabile

  • Piani Totali: 2
  • Portineria: No
E

Galleria Fotografica

Contatta l'inserzionista

Immobigo srl

Immobigo srl di Tavagnacco propone in vendita questo immobile, contattali subito!

Annunci immobiliari a Fagagna (UD)

Copyright Š 2026 PCase.it. All rights reserved. Sede operativa MILANO. P.IVA 08508420968 - Condizioni d'uso e privacy