Preferiti

Sponsorizza

Stampa

Capannone in vendita da ristrutturare a San Giovanni al Natisone

  • 75.000€
  • 4 locali
  • 1600 mq
  • Vendesi

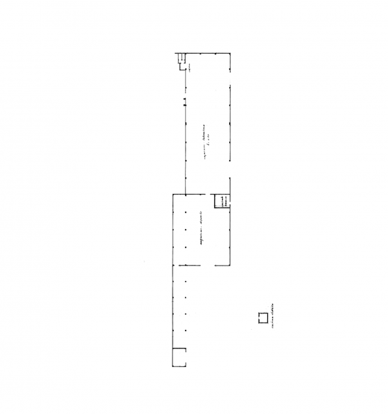
Capannone di 1010mq con altezza (h4,1 e h3,8) con ampio spazio di manovra di 2200mq, edificato nel 1980 e a soli 15 minuti dall'accesso autostradale Udine NORD (A23) e di Villesse (A4). Lotto di proprietà recintato di 3100mq con accesso da Via Bolzano.
Possibilità di ottimo sviluppo commerciale inserito in posizione strategica.
Zona H3 su Piano Regolatore (destinazione commerciale-direzionale flessibile, permette retail, uffici, artigianato servizi - alta versatilità investimento). Investimento con potenziale espansione e retrofit sostenibile.
L'immobile si trova nel cluster industriale del distretto della sedia con altezza compatibile per la logistica commerciale e rappresenta un investimento con potenziale di espansione e sviluppo sostenibile perfetto per e-commerce, automotive, furniture retail e business hub in una delle zone più dinamiche del Friuli.
Presente una pesa a ponte già installata.
Metrature: Capannone 830mq (h 3,8) più 180mq (h 4,10), spazio di manovra 2.200mq, lotto edificabile di proprietà 3.100mq recintato Attrezzature: Pesa a ponte Classificazione Energetica: Capannoni classe G Contatta l'inserzionista

Immobigo srlImmobigo srl
Via Nazionale )
33010, Tavagnacco (Udine)
Visualizza Telefono

INFORMAZIONI SULL'IMMOBILE

  • Riferimento: 0084_1091694
  • Tipologia: Capannone in Vendita
  • Locali: 4 Locali (3 camere)
  • Piano: Terra
  • Stato: da Ristrutturare
  • Prezzo: 75.000 €
  • Prezzo al mq: 47 €
  • Modificato il: 13/04/2026
  • Scheda: SC9508302

Stabile

  • Piano: Terra su 1 totali
  • Portineria: No
G

Galleria Fotografica

Contatta l'inserzionista

Immobigo srl

Immobigo srl di Tavagnacco propone in vendita questo immobile, contattali subito!

Annunci immobiliari a San Giovanni al Natisone (UD)

Copyright Š 2026 PCase.it. All rights reserved. Sede operativa MILANO. P.IVA 08508420968 - Condizioni d'uso e privacy