Preferiti

Sponsorizza

Stampa

Capannone in affitto a Udine

  • 15.000€
  • 13 locali
  • 5000 mq
  • Affittasi

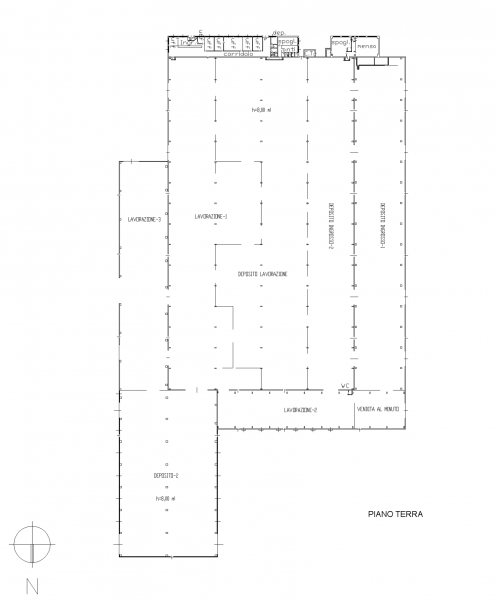
Si affittano due campate di 5.000mq complessivi ad uso esclusivo in capannone, separate dalle altre aree, dotate di carroponti da 10 tonnellate, con ampio ingresso per carico scarico e spazio di manovra.
Uffici annessi e parcheggio comune.
Possibilità di metrature superiori fino a 7.500mq coperti su richiesta, contratto 6+6 anni con IVA da azienda.
Zona strategica di Udine Sud (località Pradamano) comoda a tangenziale, autostrada e centro città. Metrature: 5.000mq (metrature superiori su richiesta) Caratteristiche: carroponte 10t, zona strategica da un punto di vista logistico, ampio parcheggio, pannelli fotovoltaici APE in fase di verifica. Contatta l'inserzionista

Immobigo srlImmobigo srl
Via Nazionale )
33010, Tavagnacco (Udine)
Visualizza Telefono

INFORMAZIONI SULL'IMMOBILE

  • Riferimento: 0115_1091754
  • Tipologia: Capannone in Affitto
  • Locali: 13 Locali
  • Piano: Terra
  • Stato: Buono
  • Prezzo: 15.000 €
  • Prezzo al mq: 3 €
  • Modificato il: 28/05/2026
  • Scheda: SC9508253

Stabile

  • Piano: Terra su 1 totali
  • Portineria: No
  • Classe Energetica: n.d.

Galleria Fotografica

Contatta l'inserzionista

Immobigo srl

Immobigo srl di Tavagnacco propone in affitto questo immobile, contattali subito!

Annunci immobiliari a Udine (UD)

Copyright Š 2026 PCase.it. All rights reserved. Sede operativa MILANO. P.IVA 08508420968 - Condizioni d'uso e privacy