Preferiti

Sponsorizza

Stampa

Appartamento in vendita con posto auto coperto a Civita Castellana

  • 97.000€
  • 5 locali
  • 100 mq
  • Vendesi

Proponiamo in vendita un luminoso appartamento ad uso abitativo nel cuore di Civita Castellana.
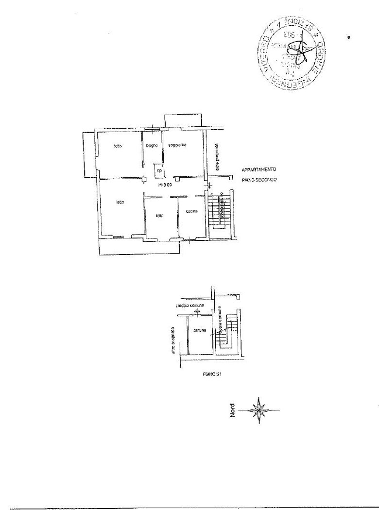
Con 5 locali spaziosi e 1 bagno, l'immobile si estende su una superficie di 100 mq., inoltre completa la propriet un garage e un ripostiglio.
Situato in una zona comoda e servita, nelle immediate vicinanze si trovano bar, scuole, parcheggi e farmacie.
L'appartamento offre un'ottima soluzione abitativa per famiglie o professionisti che desiderano vivere in un contesto tranquillo e ben collegato. Contatta l'inserzionista

Studio Immobiliare Lazzarini D.I.Studio Immobiliare Lazzarini D.I.
Via Giovanni XXIII 2/b
, Civita Castellana (Viterbo)
Visualizza Telefono

INFORMAZIONI SULL'IMMOBILE

  • Riferimento: Cod. rif 3106056VRG
  • Tipologia: Appartamento in Vendita
  • Locali: 5 Locali
  • Piano: Secondo
  • Stato: Buono
  • Bagni: 1
  • Cucina: Abitabile
  • Prezzo: 97.000 €
  • Prezzo al mq: 970 €
  • Balconi: 1
  • Spazio Auto: Posto auto coperto
  • Modificato il: 25/03/2026
  • Scheda: SC9509231

Stabile

  • Piano: 2
  • Classe Energetica: n.d.

Mappa e indirizzo

01033 Civita Castellana (Viterbo)
mappa mostra l'annuncio su mappa

Galleria Fotografica

Contatta l'inserzionista

Studio Immobiliare Lazzarini D.I.

Studio Immobiliare Lazzarini D.I. di Civita Castellana propone in vendita questo immobile, contattali subito!

Annunci simili

Annunci immobiliari a Civita Castellana (VT)

Copyright Š 2026 PCase.it. All rights reserved. Sede operativa MILANO. P.IVA 08508420968 - Condizioni d'uso e privacy