Preferiti

Sponsorizza

Stampa

Appartamento in vendita da ristrutturare a Pietrasanta

  • 310.000€
  • 5 locali
  • 80 mq
  • Vendesi

PIETRASANTA, centro: in vendita appartamento posto al secondo ed ultimo piano di una palazzina comprendente due unità immobiliari.
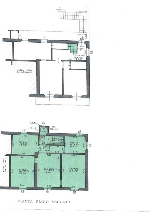
L'appartamento si presenta da ristrutturare, la caratteristica principale è la luminosità avendo finestre sia dal lato monti che verso mare. L'immobile è libero su tre lati , si compone di 4 grandi vani ed un bagno, oltre a locale tecnico, comprende una piccola resede a piano terra con ripostiglio per rimessaggio bici ecc... Contatta l'inserzionista

BAGNOLI BY VITTORIABAGNOLI BY VITTORIA
V.LE APUA 353
55045, Pietrasanta (Lucca)
Visualizza Telefono

INFORMAZIONI SULL'IMMOBILE

  • Riferimento: 348/V
  • Tipologia: Appartamento in Vendita
  • Locali: 5 Locali
  • Stato: da Ristrutturare
  • Bagni: 1
  • Cucina: Abitabile
  • Prezzo: 310.000 €
  • Prezzo al mq: 3.875 €
  • Riscaldamento: Autonomo
  • Spazio Auto: No
  • Modificato il: 18/04/2026
  • Scheda: SC9639753

Stabile

  • Classe Energetica: n.d.

Galleria Fotografica

Contatta l'inserzionista

BAGNOLI BY VITTORIA

BAGNOLI BY VITTORIA di Pietrasanta propone in vendita questo immobile, contattali subito!

Annunci simili

Annunci immobiliari a Pietrasanta (LU)

Copyright Š 2026 PCase.it. All rights reserved. Sede operativa MILANO. P.IVA 08508420968 - Condizioni d'uso e privacy