Preferiti

Sponsorizza

Stampa

Appartamento in vendita con terrazzo a Lucca in via della chiesa ix 164 - monte san quirico

  • 290.000€
  • zona monte san quirico
  • 5 locali
  • 130 mq
  • Vendesi

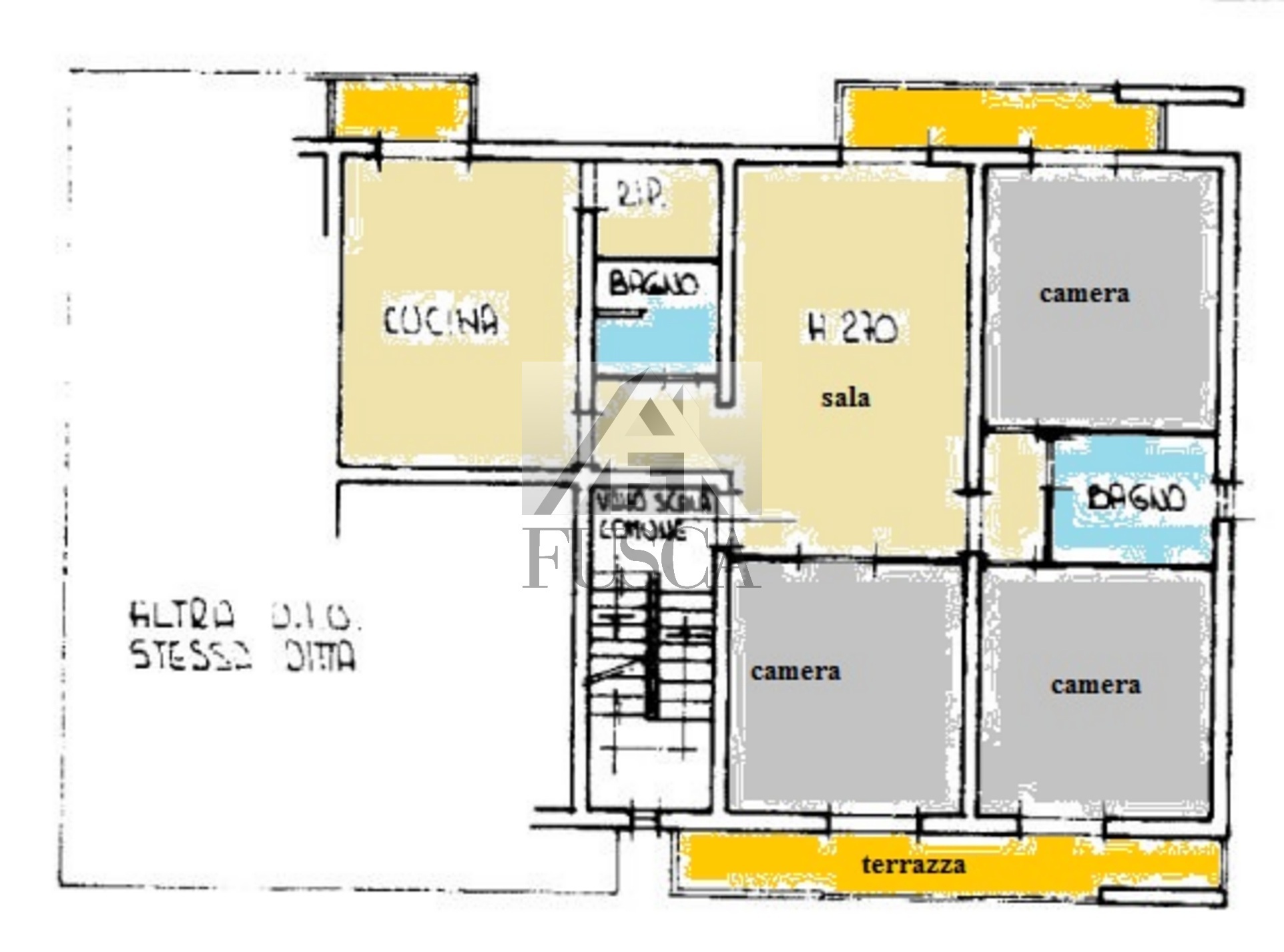
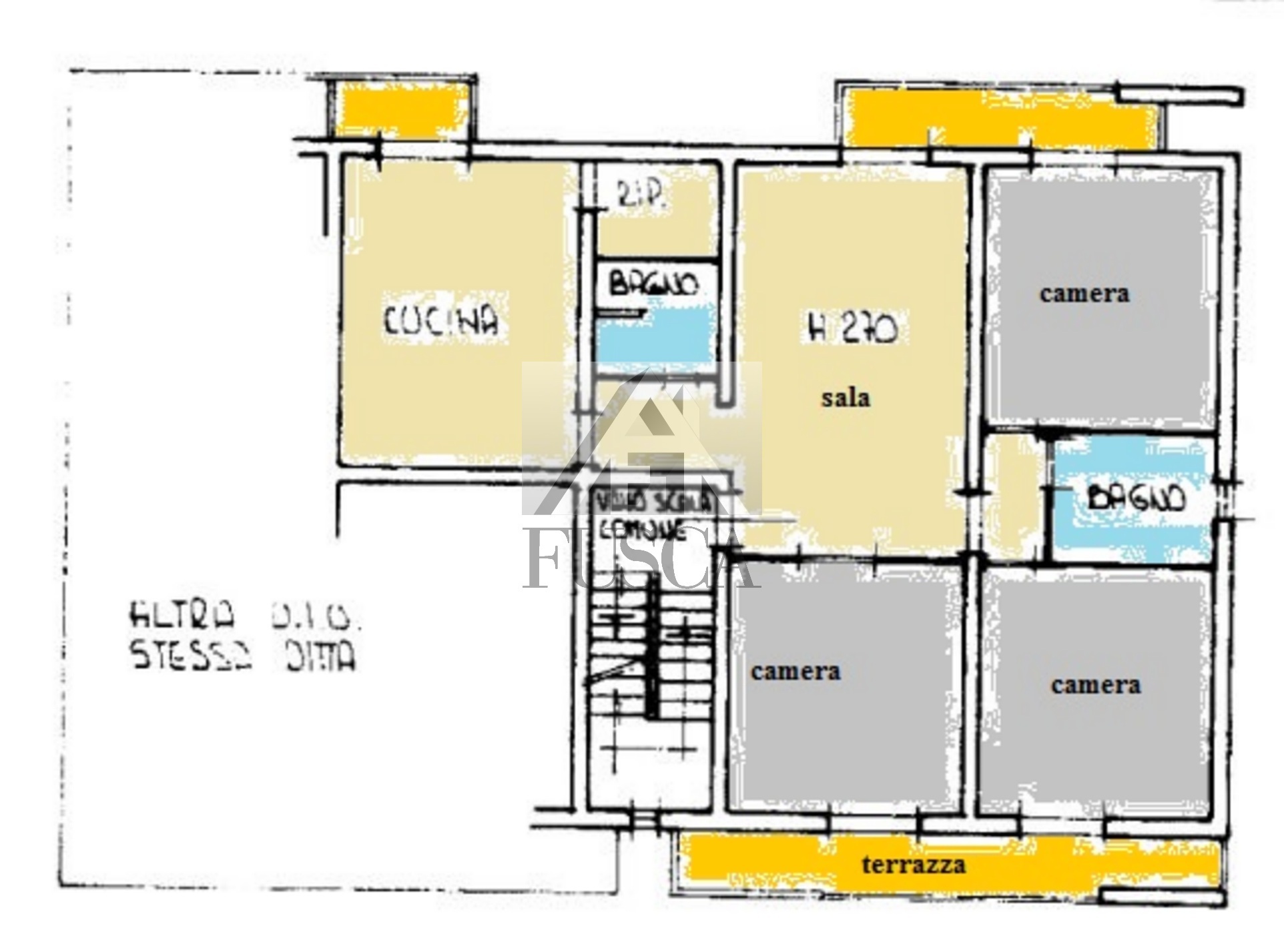
Lucca Vicinanze Monte San Quirico zona tranquilla in elegante e piccolo edificio luminoso appartamento in ottime condizioni posto al piano primo di mq 130 con accesso da ampio e elegante vano scale.
Si compone di : ingresso, ampia sala con terrazzo e caminetto, cucina abitabile con ripostiglio, 3 ampie camere, disimpegno, 2 bagni e 2 balconi.
Dotato di condizionamento porta blindata ,parquet , bagni con vasca e doccia.
Corredato da due posti auto garage di mq 23 cancello automatico.
Lastrico solare esclusivo di mq 50. Buone condizioni subito disponibile.
? 290.000 rif.6437 Contatta l'inserzionista

Agenzia Immobiliare FuscaAgenzia Immobiliare Fusca
Viale Puccini 461
55100, Lucca (Lucca)
Visualizza Telefono

INFORMAZIONI SULL'IMMOBILE

  • Riferimento: 6437
  • Tipologia: Appartamento in Vendita
  • Locali: 5 Locali
  • Piano: Terzo
  • Stato: Ottimo
  • Bagni: 2
  • Cucina: Abitabile
  • Prezzo: 290.000 €
  • Prezzo al mq: 2.231 €
  • Terrazzi: 2 - 15 Mq
  • Modificato il: 06/02/2026
  • Scheda: SC9588685

Stabile

  • Piano: 3
G

Mappa e indirizzo

Appartamento sito in via della chiesa ix 164
55100 Lucca (Lucca), zona monte san quirico
Camaiore, Mutigliano-Torre, Pieve Santo Stefano
mappa mostra l'annuncio su mappa

Galleria Fotografica

Contatta l'inserzionista

Agenzia Immobiliare Fusca

Agenzia Immobiliare Fusca di Lucca propone in vendita questo immobile, contattali subito!

Annunci simili

Annunci immobiliari a Lucca (LU)

Copyright Š 2026 PCase.it. All rights reserved. Sede operativa MILANO. P.IVA 08508420968 - Condizioni d'uso e privacy