Preferiti

Sponsorizza

Stampa

Villa in vendita con giardino a Carbonera in vascon di carbonera

  • 415.000€
  • 13 locali
  • 190 mq
  • Vendesi

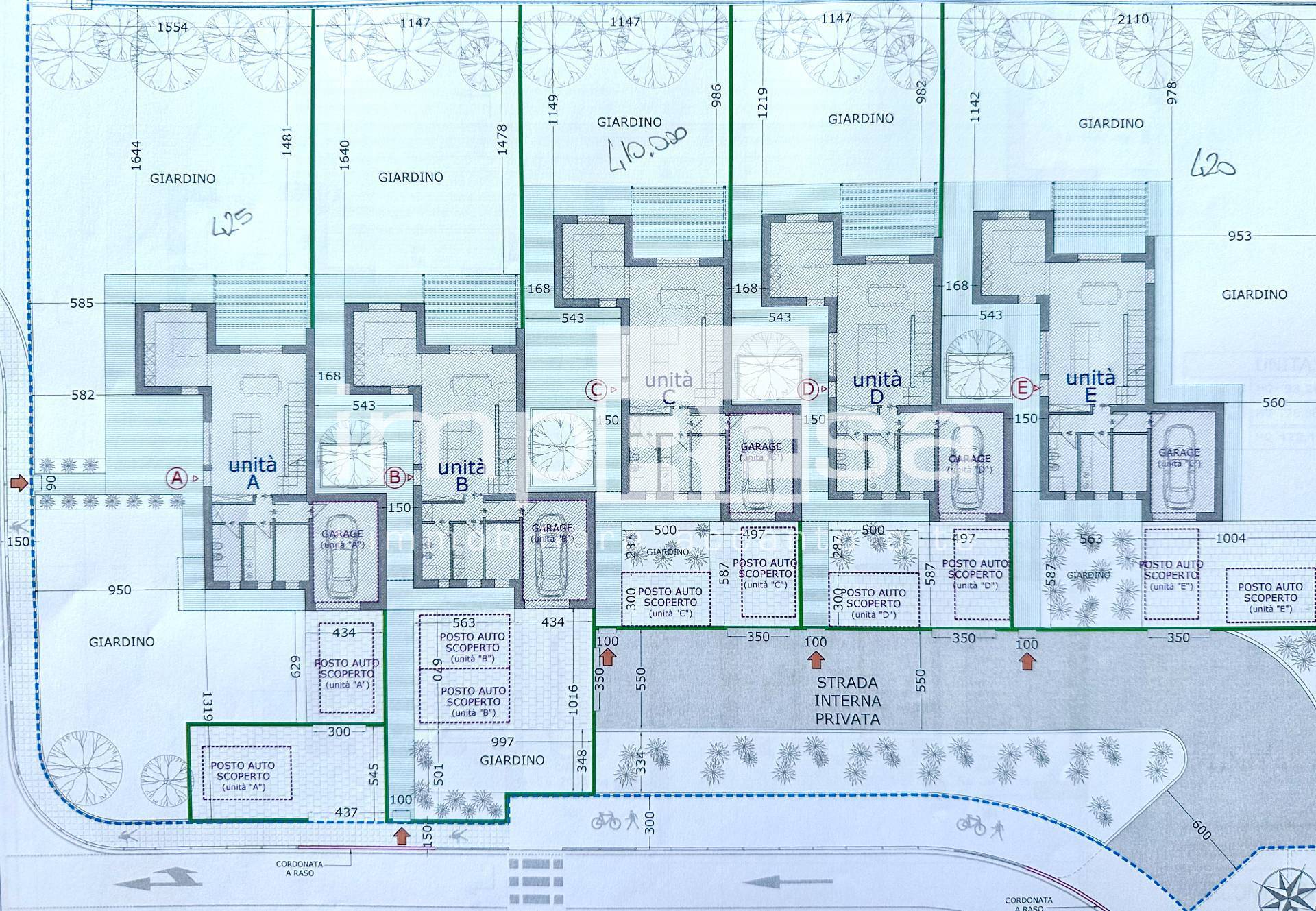
In vendita 3 schiere centrali in vendita nel Comune di Carbone, localit Vascon, a due passi dal casello di Tv Nord, in fase di costruzione in una nuova lottizzazione a ridosso di un'area agricola.
Attualmente il cantiere alla fase iniziale, ossia c' la pi vasta possibilit di scelta sia per le tipologie sia per qualsiasi tipo di rifinitura a livello architettonico e impiantistico.
Le unit abitative saranno rifinita in classe "A4" con riscaldamento a pavimento in pompa di calore, zanzariere su tutti i fori, tende oscuranti ove previste, impianto di aria condizionata canalizzata sui due piani, impianto d'allarme sia volumetrico che perimetrale, impianto di aspirazione centralizzata, impianto di ventilazione meccanica centralizzata (VMC), pannelli solari e fotovoltaico per 5,5 Kw. Il prezzo in pubblicit inteso per l'immobile con tutte gli impianti installati, "chiavi in mano", pi iva (come previsto da legge). Finiture ad alto livello: listoni in legno con colore a scelta, sanitari sospesi e infissi monoblocco bianchi, con anta/ribalta e alcuni scorrevoli, e travatura a vista in entrambi i piani con travi in legno spazzolate chiare.
Metratura generosa, complessivi 190 mq. commerciali, di cui netti 172 mq.: ingresso, zona giorno di mq. 37 circa con cucina separata di mq. 14,50, lavanderia/c.t., deposito attrezzi, 4 camere, di cui due matrimoniali, 3 bagni, cabina armadio, terrazzo coperto al piano primo, pergolato scoperto al piano terra e garage singolo.
All'esterno giardino privato di circa 200 mq, comprensivo di posto auto esterno privato: l'area verde sar piantumanta con siepe, tappeto erboso e completo di impianto di irrigazione.
Consegna inizio 2027. Per visionare i progetti, fare una visita in loco e in altre abitazioni gi vendute dall'impresa, chiamare il numero 0422.412819 con Rif. I/LC495 oppure visitate il nostro sito ***.*******.** dove trovare molte altre soluzioni abitative. Contatta l'inserzionista

impREsa VillorbaimpREsa Villorba
Largo 1 Maggio, 3/2
31020, Villorba (Treviso)
Visualizza Telefono

INFORMAZIONI SULL'IMMOBILE

  • Riferimento: I/LC495
  • Tipologia: Villa in Vendita
  • Locali: 13 Locali
  • Stato: Ottimo
  • Bagni: 3
  • Prezzo: 415.000 €
  • Prezzo al mq: 2.184 €
  • Riscaldamento: Autonomo
  • Giardino: Privato - 150 Mq
  • Spazio Auto: Box singolo
  • Modificato il: 16/07/2025
  • Scheda: SC9552793

Stabile

  • Anno: 2025
  • Piani Totali: 2
A4

Mappa e indirizzo

Villa sito in vascon di carbonera
31030 Carbonera (Treviso)
mappa mostra l'annuncio su mappa

Galleria Fotografica

Contatta l'inserzionista

impREsa Villorba

impREsa Villorba di Villorba propone in vendita questo immobile, contattali subito!

Annunci simili

Annunci immobiliari a Carbonera (TV)

Copyright Š 2026 PCase.it. All rights reserved. Sede operativa MILANO. P.IVA 08508420968 - Condizioni d'uso e privacy