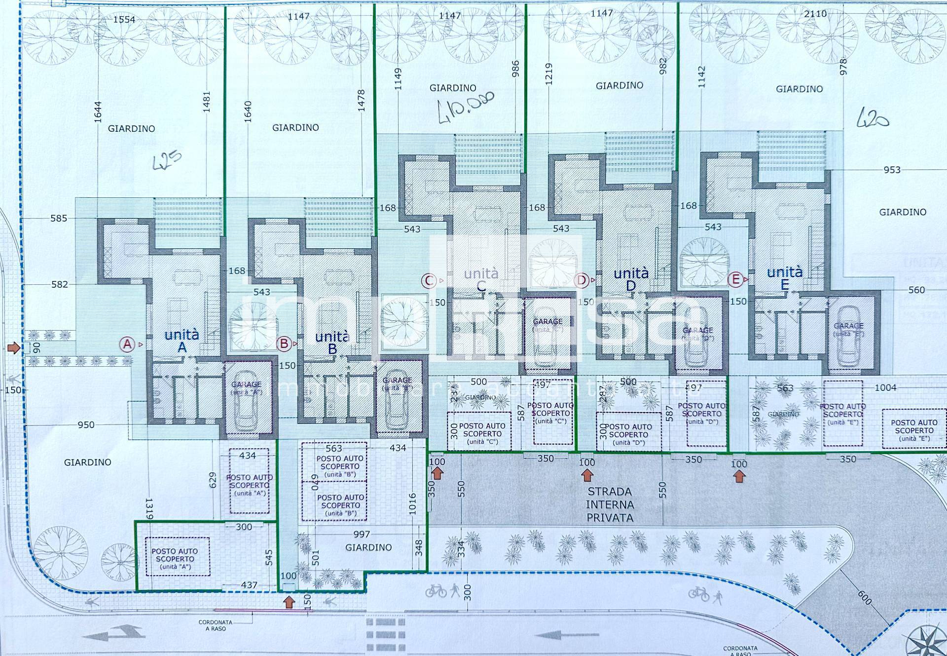
In vendita 3 schiere centrali in vendita nel Comune di Carbone, localit Vascon, a due passi dal casello di Tv Nord, in fase di costruzione in una nuova lottizzazione a ridosso di un'area agricola....
Circondata dal verde nella caratteristica zona di Carbonera, in vendita questa villa in chiave moderna. Di nuova realizzazione con la possibilit di personalizzare spazi e finiture questa villa ha una...
VILLA INDIPENDENTE Lagenzia immobiliare Etika, lieta di presentare questa elegante soluzione indipendente, caratterizzata da ambienti ampi, luminosi e perfettamente distribuiti, con privacy in un...
inserito il 17 apr 2026 in Ville in vendita a CarboneraSituata in una zona tranquilla di Carbonera, presisamente a Vascon, proponiamo in vendita una splendida villa di nuova costruzione , attualmente in fase di realizzazione e prevista consegna entro il...
Ribassato -5% COMUNE DI CARBONERA (MIGNAGOLA) VILLETTA DANGOLO Villetta d'angolo su trifamiliare con 368 mq di giardino. Labitazione stata realizzata nel 1983 e offre gli spazi ed i comfort delle case pensate in...
CARBONERA localit Vascon - Villa singola circondata da giardino di circa 640 mq. inserita in tranquilla zona residenziale e comoda ai servizi. La casa disposta su due livelli: al piano terra zona...
BIFAMILIARE NUOVA COSTRUZIONE A CARBONERA SM50A --In zona tranquilla e a pochi passi da tutti i principali servizi, proponiamo in vendita una bifamiliare di nuova costruzione, progettata per offrire...
BIFAMILIARE NUOVA COSTRUZIONE A CARBONERA SM50B --In zona tranquilla e a pochi passi da tutti i principali servizi, proponiamo in vendita una bifamiliare di nuova costruzione, progettata per offrire...
Cerchi Ville in vendita a Carbonera ma non hai trovato nulla di tuo interesse?
Utilizza il nostro modulo di richiesta generica ed invia una email di richiesta alle nostra agenzie affiliate!

In zona tranquilla ed immersa nel verde vi proponiamo questa villa singola disposta su due livelli. Realizzata a misura in ogni suo mq, proprio come un abito sartoriale, sapr soddisfare qualsiasi vs...
Stai cercando Ville in vendita a Carbonera? Su PCase.it puoi trovare diversi annunci immobiliari di Ville in vendita a Carbonera affini alla tua ricerca, ogni giorno tanti nuovi inserimenti e abbassamenti di prezzo da agenzie immobiliari di fiducia, costruttori esperti e privati che offrono le migliori ville in vendita a carbonera corredate da descrizioni complete, foto, video e mappe. Scopri com'è facile trovare subito la tua nuova villa monofamiliare, bifamiliare, trifamiliare o quadrifamiliare online in vendita a Carbonera.
Specifica meglio la tua ricerca di Ville a Carbonera aggiungendo una caratteristica delle seguenti: