Preferiti

Sponsorizza

Stampa

Villa in vendita con giardino a Latisana

  • 315.000€
  • 6 locali
  • 150 mq
  • Vendesi

Immagina la tua nuova casa a pochi minuti dal centro di Latisana, senza rinunciare a stile e modernit.
Questo esclusivo progetto propone ville indipendenti con spazi ampi e luminosi, pensati per chi ama vivere in totale comfort e armonia.
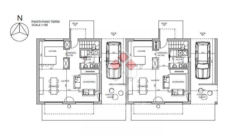
Al piano terra, un accogliente open space permette di organizzare la vita quotidiana con libert: cucina, zona relax e area conviviale si fondono in un ambiente caldo e luminoso.
Al piano superiore, camere spaziose e un bagno moderno garantiscono intimit e comodit per tutta la famiglia.
Allesterno, ogni villa dispone di un giardino privato che circonda la casa su tre lati, perfetto per momenti allaperto, mentre il porticato offre comodit per i parcheggi.
La costruzione punta su qualit, sostenibilit e tecnologia, con materiali selezionati e soluzioni eco-efficienti per risparmio energetico e comfort quotidiano.
Le finiture possono essere scelte e personalizzate secondo il tuo stile, e in pochi mesi potresti trasferirti nella tua nuova abitazione pronta da vivere.
Unopportunit unica per chi cerca una casa moderna, senza rinunciare a tutte le comodit della vita cittadina.
Scopri come trasformare questo progetto nella tua nuova casa: contattaci oggi stesso! Contatta l'inserzionista

immobiliare LIGNANOimmobiliare LIGNANO
Piazza Caduti della Julia, 13
33053, Latisana (Udine)
Visualizza Telefono

INFORMAZIONI SULL'IMMOBILE

  • Riferimento: 543
  • Tipologia: Villa in Vendita
  • Locali: 6 Locali
  • Bagni: 2
  • Prezzo: 315.000 €
  • Prezzo al mq: 2.100 €
  • Riscaldamento: Autonomo
  • Giardino: Privato - 250 Mq
  • Modificato il: 31/03/2026
  • Scheda: SC9629959

Stabile

  • Anno: 2026
A4

Galleria Fotografica

Contatta l'inserzionista

immobiliare LIGNANO

immobiliare LIGNANO di Latisana propone in vendita questo immobile, contattali subito!

Annunci immobiliari a Latisana (UD)

Copyright Š 2026 PCase.it. All rights reserved. Sede operativa MILANO. P.IVA 08508420968 - Condizioni d'uso e privacy