Preferiti

Sponsorizza

Stampa

Villa in vendita con giardino a Fabriano in frazione ciaramella

  • trattativa riservata
  • 4 locali
  • 120 mq
  • Vendesi

Fabriano:A circa 7/8 Km da Fabriano, immersa nel verde delle nostre colline, l'agenzia immobiliare Sognocasa propone in esclusiva ville unifamiliari di nuova costruzione di circa 120 mq con accesso indipendente sia pedonale che carrabile.
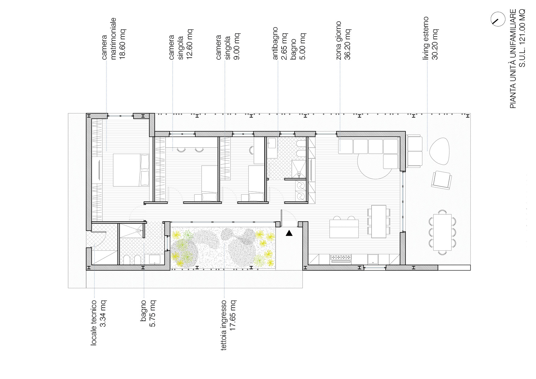
L'edificio composto da un unico volume ad un solo piano.
Caratteristiche La progettazione architettonica si sviluppa su determinati concetti base: - grandi spazi verdi -nuova lettura del casolare della campagna marchigiana -attenzione ai dettagli e ai materiali in rispetto con l'ambiente - risparmio energetico La struttura principale dell'immobile (pilastri e travi) in acciaio mentre la struttura secondaria in legno lamellare.
La scelta dell'acciaio ci permette di ottenere edifici altamente elastici e leggeri per una costruzione perfettamente anti-sismica, oltre che duraturi in quanto l'acciaio non necessita di manutenzioni.
L'uso del legno una scelta consapevole di sfruttamento delle risorse naturali nel rispetto dell'ambiente globale.
Inotre il legno garantisce la salubrit interna dell'immobile (assenza di muffe o di emissioni nocive), oltre ad essere una scelta elastica ben precisa.
Seguendo il vialetto pedonale che costeggia il prospetto ovest dell'abitazione si giunge alla zona d'ingresso.
Questo spazio delimitato da una nuova pelle dell'involiucro caratterizzato da un piccolo giardino che ha lo scopo di introdurre gradualmente all'interno dello spazio abitativo mantenendo un continuo contatto con lo spazio esterno.
L'ingresso viene posto all'inizio del lungo ambiente di distribuzione che in questo caso stato ideato non solo con lo scopo funzionale, ma anche con l'idea di un vero e proprio spazio da vivere quotidianamente, caratterizzando l'intero progetto.
A sud viene inserita un'ampia zona giorno in cui sono collocate rispettivamente la zona cucina e la zona living.
L'ambiente risulta molto luminoso in quanto presenta due lati finestrati e un'ampia vetrata sul prospetto sud, collegato con lo spazio esterno coperto da una grande tettoia.
La copertura consente di aver un secondo soggiorno all'aperto direttamente collegato con quello interno senza soluzione di continuit.
Riteniamo questo un elemento fondamentale della villa che non solo sottolinea lo stretto rapporto tra costruito e il verde, ma rende quest'ultimo spazio vivibile per la maggior parte dell'anno. La zona notte presenta tre camere di cui una matrimoniale e due singole.
I servizi sono distribuiti lungo le due fascie longitudinali.
Il bagno di servizio presenta un antibagno con funzione lavanderia/ripostiglio.
L'intero edificio inoltre stato progettato nel rispetto dell'ambiente dunque in maniera sostenibile.
La forma e lo sviluppo planimetrico dell'intervento garantiscono il pieno soleggiamento invernale ottimizzando l'apporto solare e minimizzando il livello di riscaldamento.
Nei prospetti longitudinali dunque sono stati inseriti degli elementi verticali con lo scopo di schermare la radiazione solare olre che creare dei giochi di luce nei diversi ambienti interni.
L'involucro pensato con un'elevata resistenza ed inerzia termica al fine di favorire il risparmio energetico.
Dunque anche le superfici trasparenti saranno realizzate con infissi a taglio termico e con vetri a trattamento bassoemissivo, garantendo un alto isolamento.
Anche l'impianto che si andr ad inserire gode di un'alta efficenza energetica basato sull'utilizzo di biomasse. Contatta l'inserzionista

SognocasaSognocasa
Viale IV Novembre n. 100
60044, Fabriano (Ancona)
Visualizza Telefono

INFORMAZIONI SULL'IMMOBILE

  • Riferimento: 1058
  • Tipologia: Villa in Vendita
  • Locali: 4 Locali (3 camere con doppi servizi)
  • Giardino: Privato - 800 Mq
  • Modificato il: 25/01/2024
  • Scheda: SC9550630

Stabile

  • Anno: 2020
A1

Mappa e indirizzo

Villa sito in frazione ciaramella
60044 Fabriano (Ancona)
mappa mostra l'annuncio su mappa

Galleria Fotografica

Contatta l'inserzionista

Sognocasa

Sognocasa di Fabriano propone in vendita questo immobile, contattali subito!

Annunci simili

Annunci immobiliari a Fabriano (AN)

Copyright Š 2026 PCase.it. All rights reserved. Sede operativa MILANO. P.IVA 08508420968 - Condizioni d'uso e privacy