Preferiti

Sponsorizza

Stampa

Villa in vendita con giardino a Camporosso

  • trattativa riservata
  • 15 locali
  • 500 mq
  • Vendesi

Villa moderna Alma con piscina e vista sulle montagne, vicino al mare! A pochi chilometri dal mare, in una zona tranquilla e riservata, in vendita la moderna villa di nuova costruzione Alma, dotata di piscina e di una splendida vista sulle montagne.
La villa attualmente in fase di costruzione e sar completamente pronta in tempi brevi.
La superficie totale di circa 500 m e presenta il vantaggio di poter essere suddivisa in due unit abitative indipendenti.
Laccesso da due lati, le finestre panoramiche a tutta altezza con vista sulle montagne, il terreno con giardino, la piscina e i posti auto aggiuntivi allinterno della propriet conferiscono a questo immobile un carattere esclusivo.
Ampio garage per 2 auto, con possibilit di trasformazione in garage per 3 veicoli.
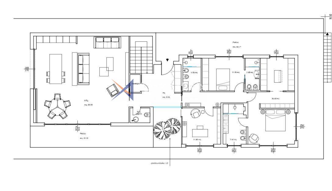
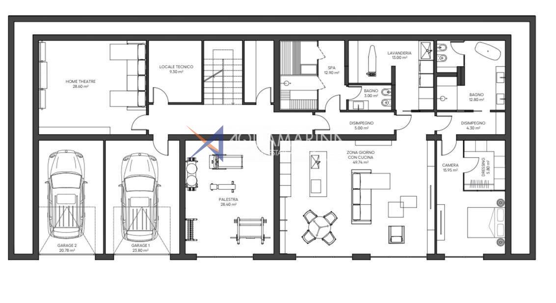
La villa si sviluppa su 2 piani: Piano terra: Ampio soggiorno con cucina, camera da letto, bagno, lavanderia con bagno di servizio, zona SPA, palestra / sala giochi, locale tecnico, ripostiglio, 2 garage.
Piano primo: Open space soggiorno con cucina, bagno per gli ospiti, 2 camere da letto, 2 bagni, studio (o camera da letto aggiuntiva), grande cabina armadio.
possibile apportare modifiche al progetto in base alle esigenze individuali dellAcquirente.
Il prezzo include la costruzione completamente ultimata senza finiture interne, nonch la piscina.
Su richiesta dellAcquirente e con un costo aggiuntivo, la villa pu essere completata chiavi in mano. La casa realizzata utilizzando tecnologie moderne e materiali di alta qualit.
il luogo ideale per chi apprezza la tranquillit, la pace e la privacy, pur trovandosi a pochi minuti dal mare e da tutte le infrastrutture necessarie.
Una proposta esclusiva, perfetta sia come residenza principale che come investimento. Contatta l'inserzionista

Aquamarina Real Estate BordigheraAquamarina Real Estate Bordighera
Via Vittorio Emanuele II, 302
18012, Udine (Udine)
Visualizza Telefono

INFORMAZIONI SULL'IMMOBILE

  • Riferimento: 14108
  • Tipologia: Villa in Vendita
  • Locali: 15 Locali
  • Piano: Terra
  • Stato: Buono
  • Bagni: 6
  • Riscaldamento: Autonomo
  • Giardino: Privato
  • Cantina: Si
  • Modificato il: 07/01/2026
  • Scheda: SC9548809

Stabile

  • Anno: 2025
  • Piano: Terra su 2 totali
  • Classe Energetica: n.d.

Mappa e indirizzo

18033 Camporosso (Imperia)
mappa mostra l'annuncio su mappa

Galleria Fotografica

Contatta l'inserzionista

Aquamarina Real Estate Bordighera

Aquamarina Real Estate Bordighera di Udine propone in vendita questo immobile, contattali subito!

Annunci simili

Annunci immobiliari a Camporosso (IM)

Copyright Š 2026 PCase.it. All rights reserved. Sede operativa MILANO. P.IVA 08508420968 - Condizioni d'uso e privacy