Preferiti

Sponsorizza

Stampa

Terreno Edificabile in vendita a Paese in via ongarine

  • 130.000€
  • 1053 mq
  • Vendesi

Terreno edificabile di 1053 mq. con progetto a Castagnole di Paese.
A 5 minuti di auto dal centro di Castagnole proponiamo in esclusiva terreno edificabile di 1053 mq. per la realizzazione di due case singole i cui progetti sono gi stati approvati.
Il terreno fa parte di pi ampie particelle che saranno soggette a frazionamento sulle quali possibile realizzare due case singole con rispettive aree verdi esclusive di 414mq e 300 mq. oltre ad una porzione di terreno comune ai due lotti da 135 mq. sul quale dovranno essere realizzate le opere di urbanizzazione su cui prevista la realizzazione di 2 posti auto scoperti.
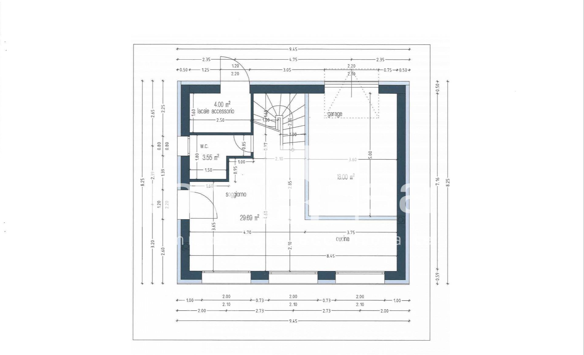
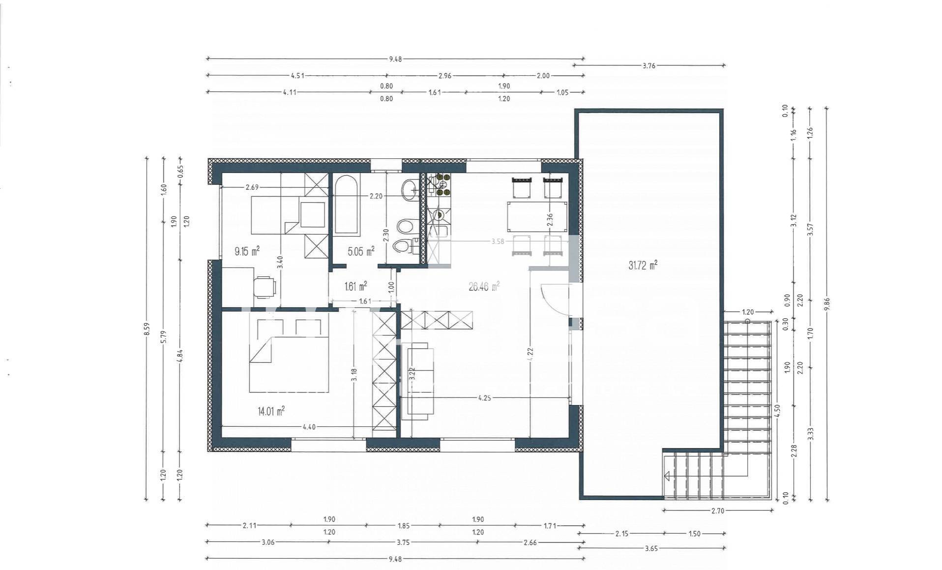
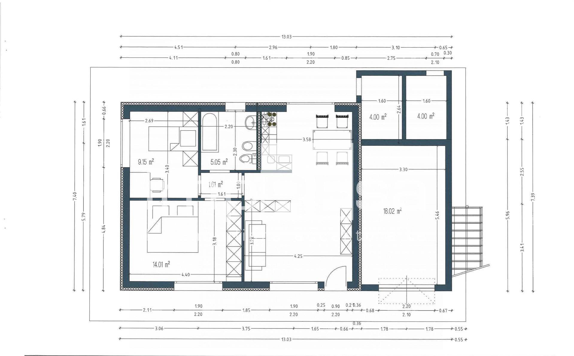
Il terreno in questione sar classificato come bene comune non censibile ai due lotti denominati "A" e "B". Il lotto denominato "A" ha una superficie di 540 mq. sul quale stato progettato la realizzazione di una casa singola sviluppata su 2 livelli di 169 mq. commerciali oltre ad un terrazzo abitabile da 32 mq. ed un'area scoperta ad uso esclusivo di 414 mq. Il lotto denominato "B" ha una superficie di 378 mq. sul quale stato progettato la realizzazione di una casa singola sviluppata su 2 livelli di 138 mq. commerciali ed un'area scoperta ad uso esclusivo di 300 mq. Progetti e capitolato presso i nostri uffici impREsa di Treviso in Piazza delle istituzioni 41 e Paese (TV) in Via Roma 148/B. Per maggiori informazioni su questo terreno edificabile, contattare il numero 04221784050 oppure visitate il nostro sito web. ***.*******.** RIF.I/AL287 Contatta l'inserzionista

impREsa Treviso Quartiere LatinoimpREsa Treviso Quartiere Latino
Piazza del Quartiere Latino, 14
31100, Treviso (Treviso)
Visualizza Telefono

INFORMAZIONI SULL'IMMOBILE

  • Riferimento: I/AL287
  • Tipologia: Terreno in Vendita
  • Locali: Edificabile di 1053 m²
  • Prezzo: 130.000 €
  • Prezzo al mq: 123 €
  • Modificato il: 14/02/2025
  • Scheda: SC9568208

Stabile

  • Classe Energetica: n.d.

Mappa e indirizzo

Terreno sito in via ongarine
31038 Paese (Treviso)
mappa mostra l'annuncio su mappa

Galleria Fotografica

Contatta l'inserzionista

impREsa Treviso Quartiere Latino

impREsa Treviso Quartiere Latino di Treviso propone in vendita questo immobile, contattali subito!

Annunci simili

Annunci immobiliari a Paese (TV)

Copyright Š 2026 PCase.it. All rights reserved. Sede operativa MILANO. P.IVA 08508420968 - Condizioni d'uso e privacy