Preferiti

Sponsorizza

Stampa

Stabile/Palazzo in vendita a Montechiaro d'Asti in via piesenzana 39

  • 49.000€
  • 15 locali
  • 385 mq
  • Vendesi

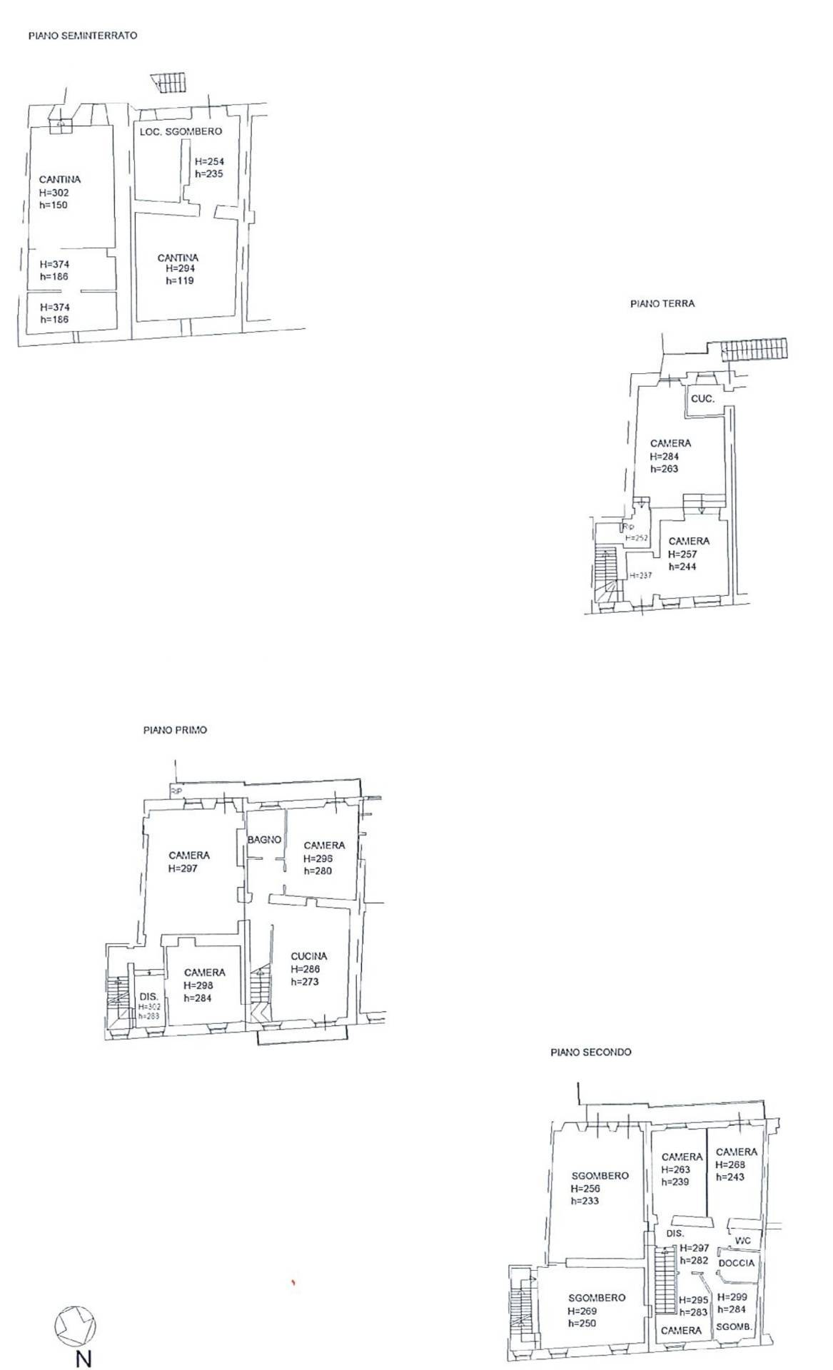
In via Piesenzana, nel centro di Montechiaro d'Asti, ampio immobile completamente da ristrutturare, ideale per chi cerca un investimento nel cuore del Monferrato, con molteplici possibilit, adatto per investitori, imprese edili o privati.
Caratteristiche principali: Posizione centralissima, comoda ai servizi; Struttura da riqualificare con spazi ampi e versatili; Ottima esposizione; Possibilit di frazionamento. Contatta l'inserzionista

Internau Monferrato - RBVG SRLInternau Monferrato - RBVG SRL
Localita' Viatosto, 30
14100, Asti (Asti)
Visualizza Telefono

INFORMAZIONI SULL'IMMOBILE

  • Riferimento: 14818
  • Tipologia: Stabile/Palazzo in Vendita
  • Locali: 15 Locali
  • Stato: da Ristrutturare
  • Bagni: 2
  • Prezzo: 49.000 €
  • Prezzo al mq: 127 €
  • Cantina: Si
  • Modificato il: 30/01/2026
  • Scheda: SC9556733

Stabile

  • Piani Totali: 3
  • Giardino: Condominiale
  • Classe Energetica: n.d.

Mappa e indirizzo

Stabile/Palazzo sito in via piesenzana, 39
14025 Montechiaro d'Asti (Asti)
mappa mostra l'annuncio su mappa

Galleria Fotografica

Contatta l'inserzionista

Internau Monferrato - RBVG SRL

Internau Monferrato - RBVG SRL di Asti propone in vendita questo immobile, contattali subito!

Annunci immobiliari a Montechiaro d'Asti (AT)

Copyright Š 2026 PCase.it. All rights reserved. Sede operativa MILANO. P.IVA 08508420968 - Condizioni d'uso e privacy